Выполненные проекты
Проект отопления, водоснабжения и канализации таунхауса площадью 265 м.кв.
![]() |
![]() |
![]() |
![]() |
![]() |
![]() |
Объект: таунхаус площадью 265 кв.м. в КП "Парк Авеню" Московской области
Вариант отопления: «Комфортный»
Стоимость проекта: 48 550 руб. (проект котельной – бесплатно)
Проект отопления, водоснабжения и канализации выполнен: 15.09.2015
Состав проекта:
1. Пояснительная записка. Общие данные
2. Теплотехнический расчет таунхауса.
3. Тепломеханическая схема котельной с размещением оборудования.
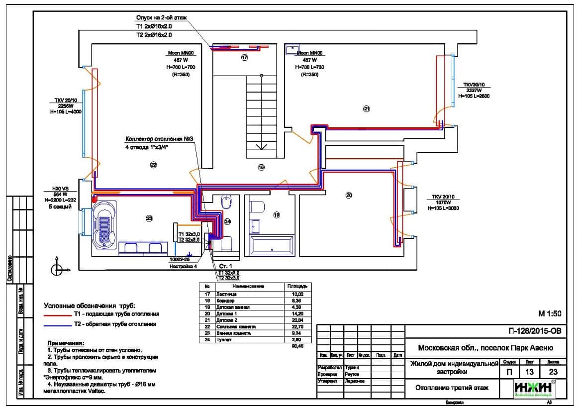
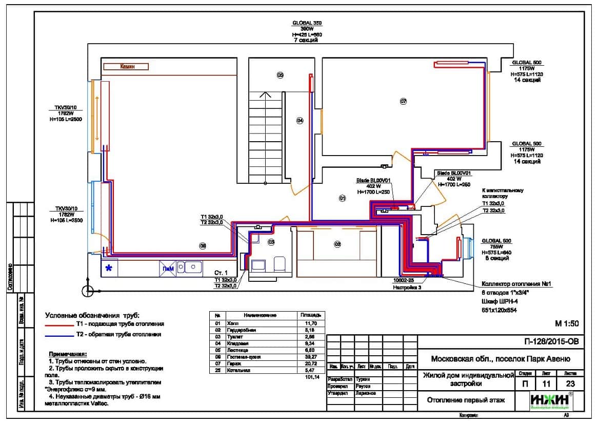
4. Комплект чертежей радиаторного отопления.
5. Комплект чертежей водяного теплого пола.
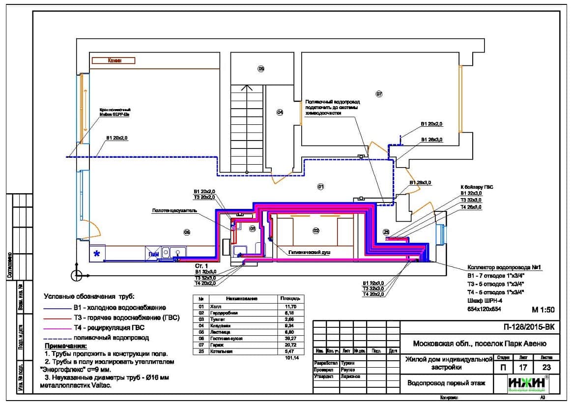
6. Комплект чертежей внутреннего водопровода и канализации.
7. Схема системы канализации (аксонометрия).
8. Спецификация материалов и оборудования.
Объем проекта: 48 листов.
Технические решения, принятые в проекте котельной отопления, водоснабжения и канализации таунхаусав соответствие с заданием Заказчика.
Котельная таунхауса.
o На базе напольного газового котла Buderus Logano G234WS мощностью 38 кВ (в наличии на объекте);
o Контуры котельной – отопление дома, водяной теплый пол и горячее водоснабжение (бойлер);
o Приготовление горячей воды при помощи бойлера Buderus Logalux LT200, объемом 200 литров (в наличии на объекте);
o Расширительные баки отопления и водоснабжения Reflex;
o Насосное оборудование Grundfos;
o Трубы дымоходные Rosinox, из нержавеющей стали;
o Распределительная гребенка Oventrop с насосно-смесительными узлами Regumat;
o Автоматика котельной – Buderus Logamatic 4211 с дополнительным модулем FM442.
Автоматизация (вариант «Комфортный»).
o Автоматическое регулирование отопления по наружной температуре (погодное регулирование);
o Автоматическое поддержание заданной температуры в контурах отопления, теплого пола и горячего водоснабжения.
Система отопления таунхауса (расчет отопления).
o Отопление дома радиаторное, использованы встроенные в пол конвекторы Hidria Klima, секционные биметаллические радиаторы Global Style, а также дизайн-радиаторы ANTRAX, модели Blade и Moon;
o Схема радиаторного отопления двухтрубная, коллекторно-лучевая, с принудительной циркуляцией теплоносителя;
o Температурный график отопления 80/60°С;
o Трубопроводы отопления – металлопластик Valtec;
o Теплоизоляция трубопроводов Энергофлекс Супер, толщиной 9мм.
Водяной теплый пол.
Водяной теплый пол в таунхаусе спроектирован на площади 100 м.кв., 8 петель;
Теплоснабжение теплого пола запроектировано отдельным контуром котельной;
Трубопроводы теплого пола - сшитый полиэтилен PEX-EVON Valtec;
Использовано две коллекторные группы в сборе с расходомерами Valtec на 3 и 5 отводов;
Основание теплого пола – маты из ламинированного пенополистирола «Формат FT40/20L».
Регулирование температуры теплого пола – общее, контуром котельной.
Внутренний водопровод.
o Схема внутреннего водоснабжения – коллекторно-лучевая, с рециркуляцией горячей воды у потребителей;
o Трубопроводы системы водоснабжения – металлопластик Valtec;
o Теплоизоляция трубопроводов Энергофлекс Супер, толщиной 9мм;
o Коллекторы водоснабжения Valtec.
Внутренняя канализация.
o Предусмотрен безнапорный отвод стоков от санитарно-технических приборов;
o Трубопроводы канализации – полипропилен Синикон (Россия).
Заказать проект отопления таунхауса в нашей компании.
|
|




















