Выполненные проекты
Проект отопления дома площадью 470 м.кв.
Объект: частный дом площадью 470 кв.м. в дер. Никифоровское Одинцовского района Московской области
Вариант отопления: «Комфортный»
Стоимость проекта отопления: 70 500 руб. (проект котельной – бесплатно)
Проект отопления выполнен: 01.09.2015
Состав проекта отопления, водоснабжения, котельной, канализации:
1. Пояснительная записка. Общие данные
2. Теплотехнический расчет отопления дома.
3. Тепломеханическая схема котельной с размещением оборудования.
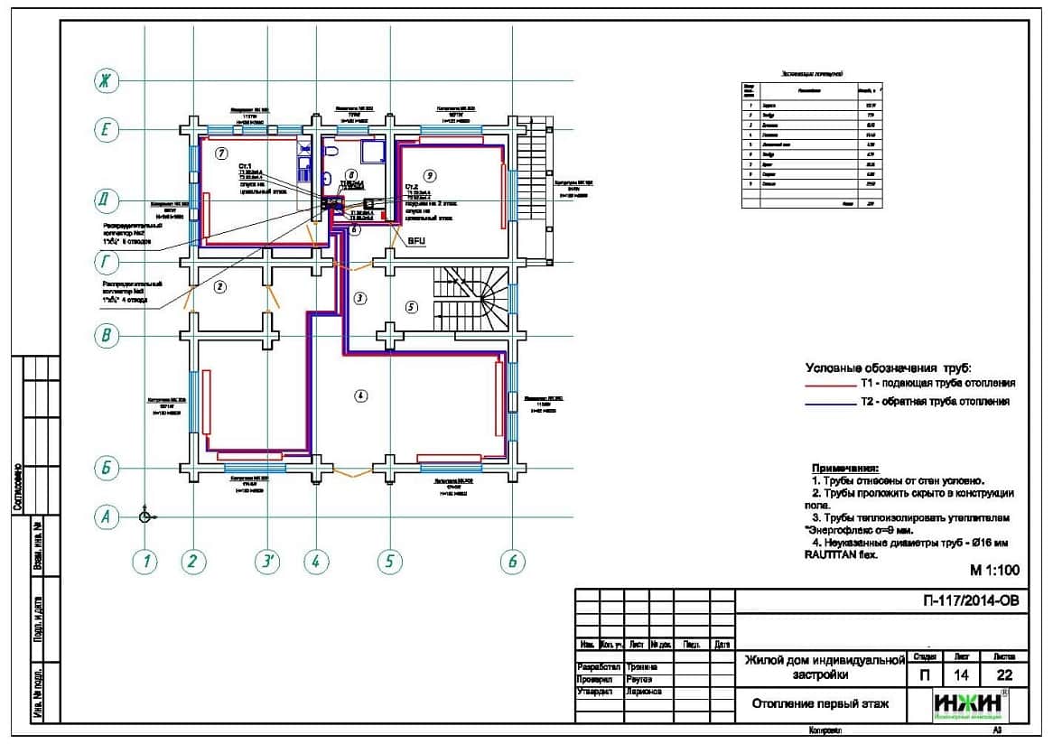
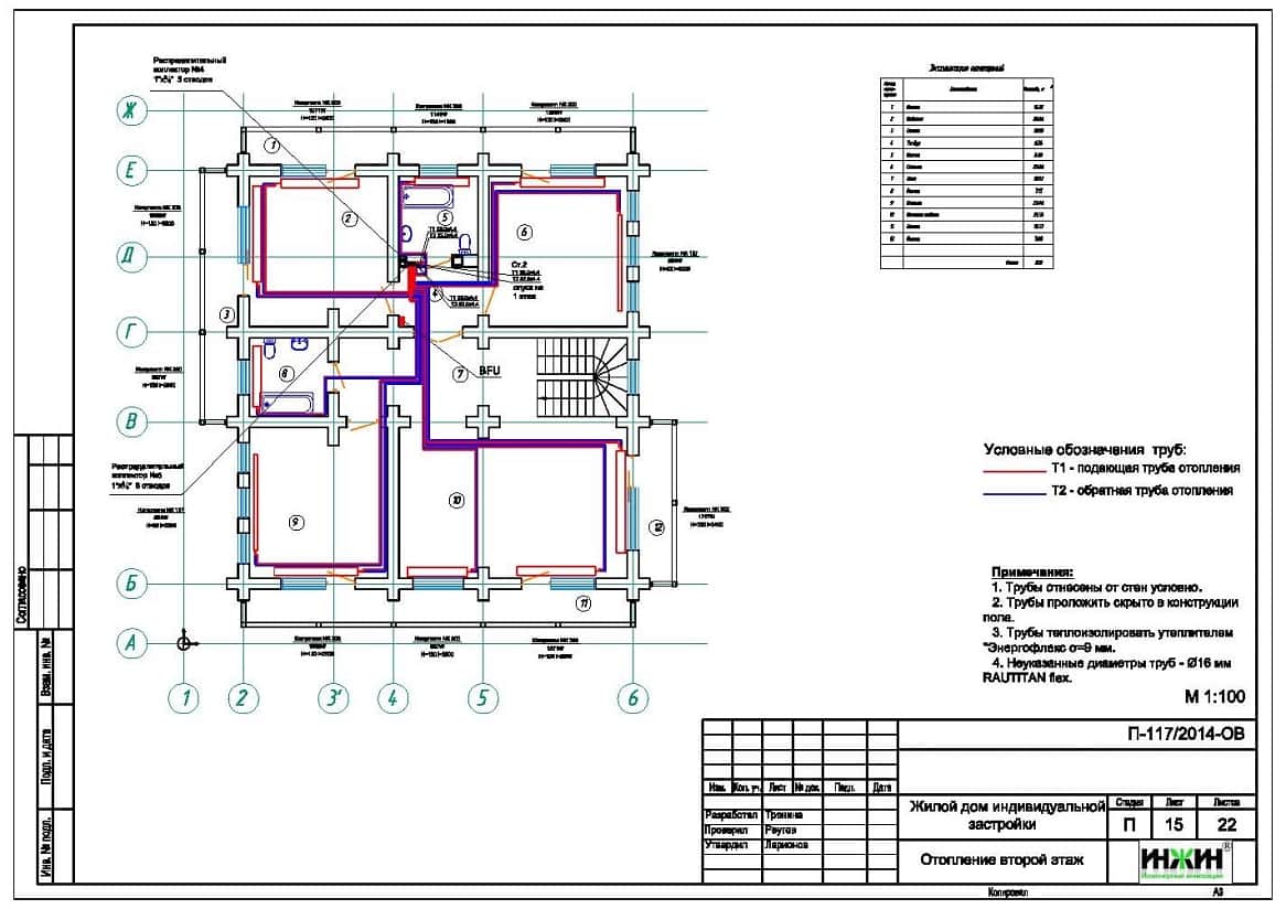
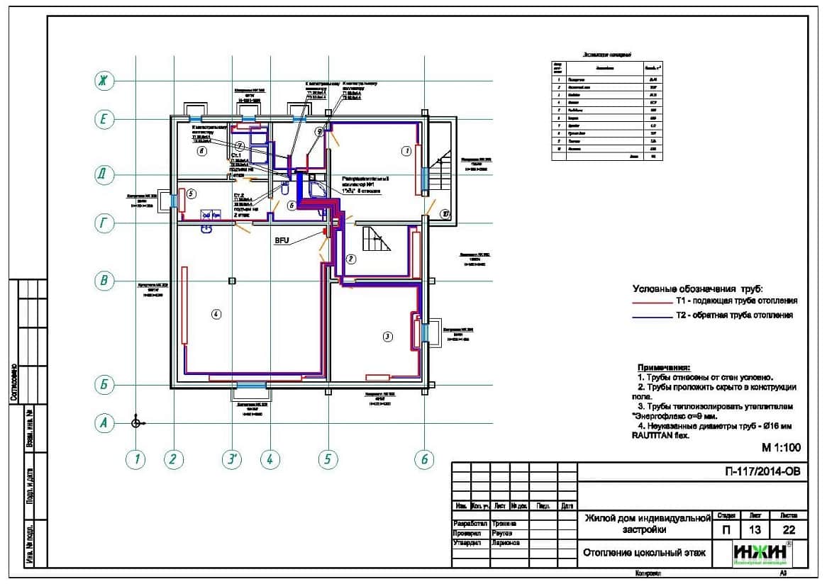
4. Комплект чертежей радиаторного отопления.
5. Комплект чертежей внутреннего водопровода и канализации.
6. Схема системы канализации (аксонометрия).
7. Спецификация материалов и оборудования.
Объем проекта: 51 лист.
Основные проектные решения, в соответствие с заданием Заказчика.
Котельная частного дома (проект котельной бесплатно).
o На базе напольного котла с чугунным теплообменником и дизельной горелкой Buderus Logano G125SE, мощностью 40 кВ;
o Контуры котельной – отопление цокольного, 1 и 2 этажей дома и горячее водоснабжение (бойлер);
o Приготовление горячей воды при помощи бойлера Buderus, объемом 300 литров;
o Расширительные баки отопления и водоснабжения Reflex;
o Насосное оборудование Grundfos;
o Трубы дымоходные Rosinox, из нержавеющей стали;
o Баки для дизельного топлива двустенные, Roth:
o Распределительная гребенка с насосно-смесительными узлами Meibes;
o Автоматика котельной – Buderus Logamatic 4211.
Автоматизация (вариант «Комфортный»).
o Автоматическое регулирование отопления по наружной температуре (погодное регулирование);
o Автоматическое поддержание заданной температуры в контурах отопления и горячего водоснабжения.
Система отопления дома в дер. Никифоровское.
o Отопление дома радиаторное, использованы встроенные в пол конвекторы Kampmann Katherm с естественной конвекцией;
o Управление температурой в помещениях при помощи термоэлектрических сервоприводов в коллекторных шкафах и комнатных термостатов Kampmann;
o Схема радиаторного отопления двухтрубная, коллекторно-лучевая, с принудительной циркуляцией теплоносителя;
o Температурный график отопления 80/60°С;
o Трубопроводы отопления – сшитый полиэтилен Rehau RAUTITAN flex.

Водяные полотенцесушители.
Источником теплоснабжения полотенцесушителей принят контур рециркуляции бытовой горячей воды. Модели полотенцесушителей в проекте не указывались, в тепловом расчете учитывалась теплоотдача 150 Вт от каждого полотенцесушителя.
Внутренний водопровод.
o Схема внутреннего водоснабжения – коллекторно-лучевая, с рециркуляцией горячей воды у потребителей;
o Трубопроводы системы водоснабжения – сшитый полиэтилен Rehau RAUTITAN flex;
o Коллекторы водоснабжения Valtec;
o Для летнего полива использованы наружные краны с защитой от замерзания SEPP-Eis (Meibes).
Внутренняя канализация.
o Предусмотрен безнапорный отвод стоков от санитарно-технических приборов;
o Трубопроводы канализации – раструбные, системы малошумной канализации Skolan Safe Ostendorf.
Заказать проект отопления в нашей компании со скидкой.
Для этого дома разработан проект электрики.
По этому проекту выполнен монтаж отопления, водоснабжения и канализации деревянного дома в дер. Никифоровское.
















