Выполненные проекты
Проект отопления, водоснабжения и канализации частного дома площадью 252 м.кв.
![]() |
![]() |
![]() |
![]() |
![]() |
![]() |
Проект отопления, водоснабжения и канализации выполнен: 30.11.2015
Объект: частный дом площадью 252 кв.м. в КП "Пикник" Чеховского района Московской области
Стоимость проекта: 39 580 руб. (проект котельной – бесплатно)
Состав проекта:
1. Пояснительная записка. Общие данные
2. Теплотехнический расчет здания.
3. Тепломеханическая схема котельной с размещением оборудования.
4. Комплект чертежей радиаторного отопления.
5. Комплект чертежей водяного теплого пола.
6. Комплект чертежей внутреннего водопровода и канализации.
7. Схема системы канализации (аксонометрия).
8. Спецификация материалов и оборудования.
Объем проекта: 44 листа.
Решения проекта котельной, отопления, водоснабжения и канализации.
Котельная частного дома.
o Основной котел - напольный газовый с чугунным теплообменником Buderus Logano G234WS, мощностью 44 кВт (в наличии на объекте);
o Резервный котел - настенный электрический Vaillant eloBLOCK мощностью 12 кВт;
o Контуры котельной – отопление 1этажа дома, отопление 2и3 этажей дома, водяной теплый пол и горячее водоснабжение (бойлер);
o Приготовление горячей воды при помощи бойлера BuderusLogalux SU200, объемом 200 литров (в наличии на объекте);
o Расширительные баки отопления и водоснабжения Reflex объемом 35 и 18 литров соответственно;
o Насосное оборудование Grundfos;
o Трубы дымоходные Rosinox, из нержавеющей стали;
o Распределительный коллектор с насосно-смесительными узлами Meibes, Поколение 8;
o Автоматика котельной – Buderus, Logamatic 4211 с дополнительным модулем.
Автоматизация отопления и котельной (вариант «Комфортный»).
o Автоматическое регулирование отопления по наружной температуре (погодное регулирование);
o Автоматическое поддержание заданной температуры в контурах отопления, теплого пола и горячего водоснабжения.
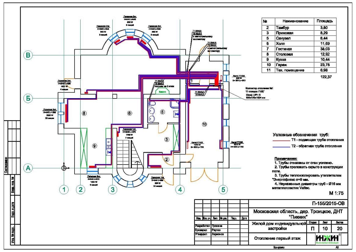
Система отопления дома.
o Отопление дома радиаторное, использованы панельные радиаторы Kermi с нижней подводкой и трубчатые радиаторы «Гармония» КЗТО;
o Схема радиаторного отопления двухтрубная, коллекторно-лучевая, с принудительной циркуляцией теплоносителя;
o Температурный график отопления 80/60°С;
o Трубопроводы отопления – металлопластик Valtec;
o Теплоизоляция трубопроводов Энергофлекс Супер, толщиной 9мм.
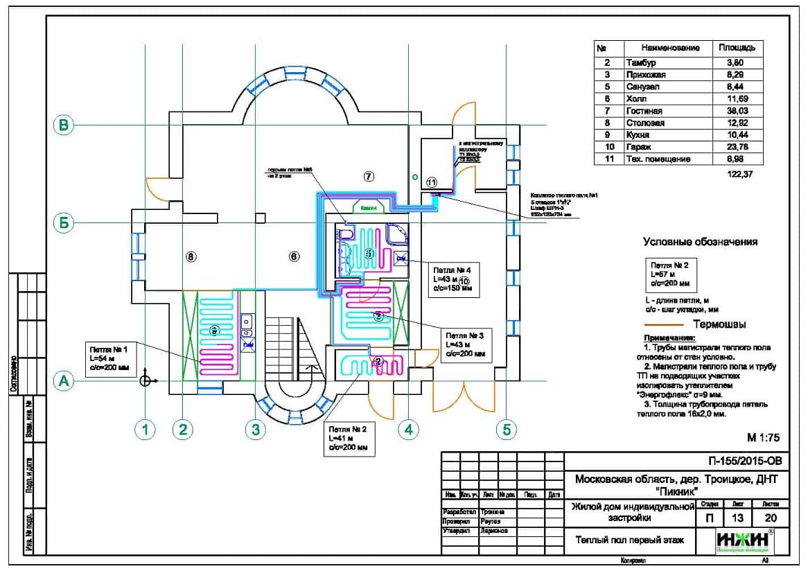
Водяной теплый пол.
o Водяной теплый пол в доме спроектирован на площади 36 м.кв., 5 петель;
o Теплоснабжение теплого пола запроектировано отдельным контуром котельной. Трубопроводы теплого пола - сшитый полиэтилен PEX-EVON Valtec;
o Основание теплого пола – маты из ламинированного пенополистирола «Формат FT40/20L»;
o Регулирование температуры теплого пола – общее, контуром котельной.
Система водяных полотенцесушителей.
Источником теплоснабжения полотенцесушителей принят контур рециркуляции бытовой горячей воды. Модели полотенцесушителей в проекте не указывались, в тепловом расчете учитывалась теплоотдача 150 Вт от каждого полотенцесушителя.
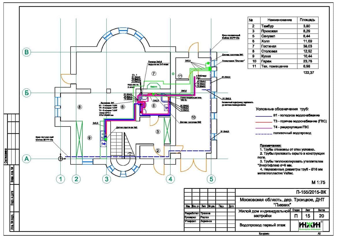
Внутренний водопровод.
o Схема внутреннего водоснабжения – коллекторно-лучевая, с рециркуляцией горячей воды у потребителей;
o Трубопроводы системы водоснабжения – металлопластик Valtec;
o Для летнего полива использованы наружные краны с защитой от замерзания Meibes SEPP-Eis (2 шт.);
o Коллекторы водоснабжения Valtec.
Система защиты от протечек воды.
o Контроллер Аквасторож ЭКСПЕРТ PRO;
o Датчики Аквасторож ЭКСПЕРТ (4 шт.);
o Электрокран Аквасторож-25 версия ЭКСПЕРТ (2 шт.);
Внутренняя канализация.
o Предусмотрен безнапорный отвод стоков от санитарно-технических приборов;
o Трубопроводы канализации – полипропилен Синикон (Россия).



















