Выполненные проекты
Проект электрики частного дома площадью 136 м.кв.
![]() |
![]() |
![]() |
Проект электроснабжения и освещения выполнен: 14.12.2015
Объект: частный дом площадью 136 кв.м. в в КП "Комильфо" Московской области
Стоимость проекта электрики: 19 140 руб. (с учетом площади веранды).
Состав проекта электрики:
Пояснительная записка. Общие данные
Однолинейная схема распределительного щита.
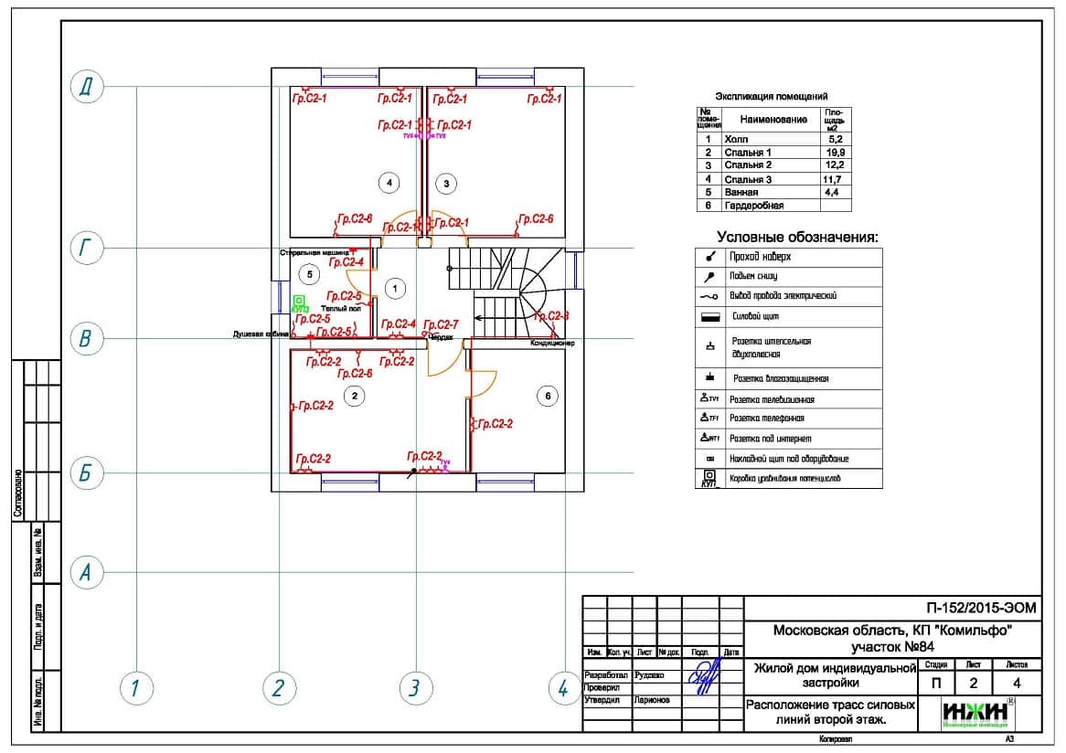
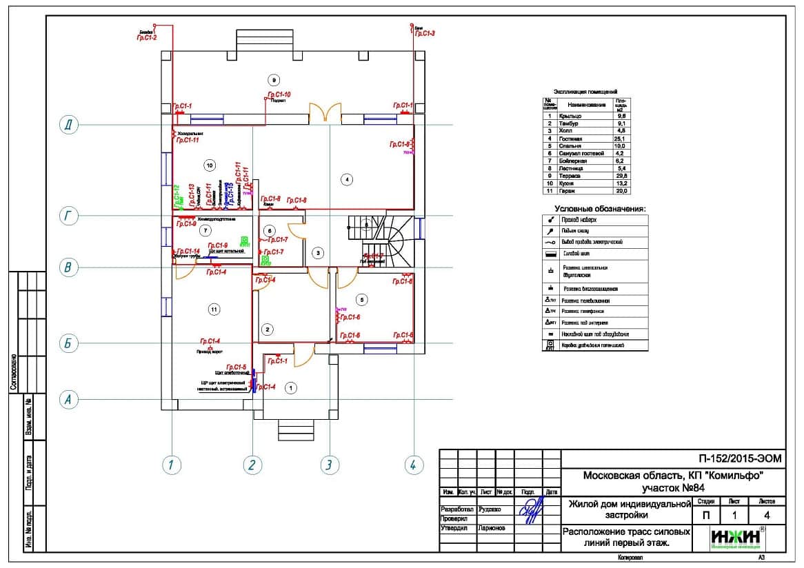
Поэтажные планы силовых электрических сетей дома.
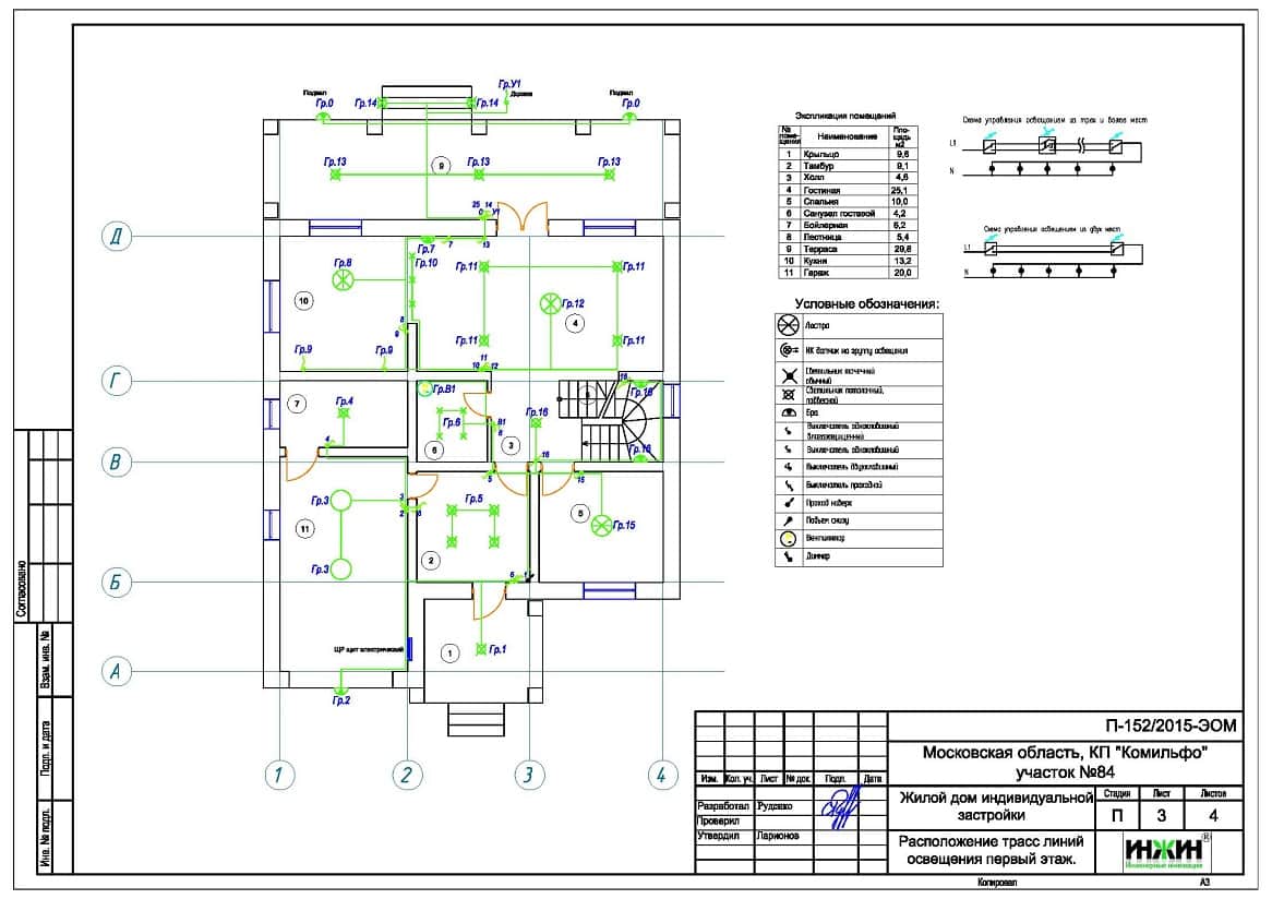
Поэтажные планы групповых осветительных сетей дома.
Схема системы уравнивания потенциалов.
Схема системы заземления.
Спецификация материалов и оборудования.
Объем проекта: 14 листов.
Основные технические решения проекта электроснабжения и освещения (электрики), в соответствии с заданием Заказчика.
Щиты распределительные электрические.
o Проектом предусмотрен распределительный щит (ЩР), оснащенный 32-мя автоматами;
o Автоматические выключатели, дифференциальные автоматы и УЗО в щитах - Hager;
o Счетчик электрической энергии трехфазный, четырехтарифный Меркурий 231 АТ-01i;
o Корпус щита – Hager, для скрытой установки, на 72 модуля.
Силовая и слаботочная кабельная сеть (электропроводка).
o Схема прокладки и трассировки кабельных линий классическая, без распаячных коробок, коммутации в щите и подрозетных коробках;
o Проектом предусмотрено использование кабелей ВВГ нг -LS (Конкорд) с медными жилами в тройной изоляции;
o Общая протяженность линий электроснабжения и освещения – 1 930 метров;
o Для прокладке по участку предусмотрен бронированный кабель ВБбШв, 3х2,5 кв.мм – 89 метров;
o Для системы телевидения предусмотрен кабель Cavel SAT 703 в количестве 200 метров;
o Прокладка силовых линий предусмотрена скрытым способом, в ПВХ-гофротрубе и металлорукаве в ПВХ-оболочке.
Заземление.
Проектом предусмотрен комплект системы заземления Ezetec EZ 6.
|
|
Для этого дома разработан проект отопления, водоснабжения и канализации |















