Выполненные проекты
Проект отопления частного дома площадью 136 м.кв.
Проект отопления, водоснабжения и канализации выполнен: 14.12.2015
Объект: частный дом площадью 136 кв.м. в Московской области
Вариант отопления: «Комфортный»
Стоимость проекта отопления, водоснабжения, канализации: 25 040 руб. (проект котельной – бесплатно)
Состав проекта:
1. Пояснительная записка. Общие данные.
2. Теплотехнический расчет здания (расчет отопления).
3. Тепломеханическая схема котельной с размещением оборудования.
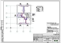
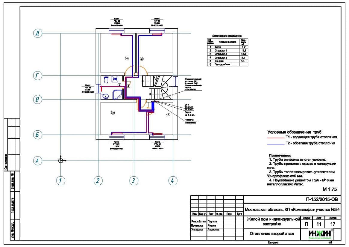
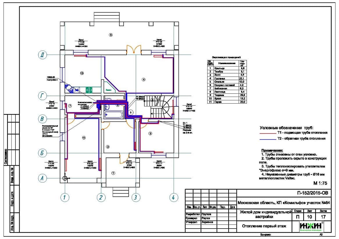
4. Комплект чертежей радиаторного отопления.
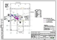
5. Комплект чертежей водяного теплого пола.
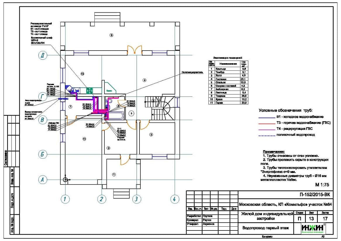
6. Комплект чертежей внутреннего водопровода и канализации.
7. Схема системы канализации (аксонометрия).
8. Спецификация материалов и оборудования.
Объем проекта: 37 листов.
Основные решения проекта котельной, отопления, водоснабжения и канализации в соответствие с заданием Заказчика.
Котельная частного дома.
o Котел отопления- настенный газовый Vaillant turboTEC plus, мощностью 24 кВт;
o Контуры котельной – отопление дома, водяной теплый пол и горячее водоснабжение (бойлер);
o Приготовление горячей воды при помощи бойлера Reflex Storatherm Aqua АF150, объемом 150 литров;
o Расширительный бак водоснабжения Reflex объемом 18 литров;
o Насосное оборудование Grundfos;
o Трубы дымоходные Vaillant, коаксиальные, в исполнении «через стену»;
o Распределительный коллектор с насосно-смесительными узлами Meibes, Поколение 8;
o Автоматика котельной – выносной блок Vaillant calorMATIC 630/3.

Автоматизация отопления (вариант «Комфортный»).
o Автоматическое регулирование отопления по наружной температуре (погодное регулирование);
o Автоматическое поддержание заданной температуры в контурах отопления, теплого пола и горячего водоснабжения.
Система отопления частного дома.
o Отопление дома радиаторное, использованы панельные радиаторы Kermi с нижней подводкой;
o Схема радиаторного отопления двухтрубная, коллекторно-лучевая, с принудительной циркуляцией теплоносителя;
o Температурный график отопления 80/60°С;
o Трубопроводы отопления – металлопластик Valtec.
Водяной теплый пол.
o Водяной теплый пол в доме спроектирован на площади 62 м.кв.;
o Теплоснабжение теплого пола запроектировано отдельным контуром котельной. Трубопроводы теплого пола - сшитый полиэтилен Valtec;
o Основание теплого пола – маты из ламинированного пенополистирола «Формат FT40/20L»;
o Регулирование температуры теплого пола – общее, контуром котельной.
Система водяныйх полотенцесушителей.
Источником теплоснабжения полотенцесушителей принят контур рециркуляции бытовой горячей воды (ГВС). Модели водяных полотенцесушителей в проекте не указывались, в тепловом расчете учитывалась теплоотдача 150 Вт от каждого полотенцесушителя.
Водоснабжение дома.
o Схема внутреннего водоснабжения – коллекторно-лучевая, с рециркуляцией горячей воды у потребителей;
o Трубопроводы системы водоснабжения – металлопластик Valtec;
o Для летнего полива использован наружный кран с защитой от замерзания Meibes SEPP-Eis;
o Предусмотрено место для установки системы химической очистки;
o Коллекторы водоснабжения Valtec.
Внутренняя канализация.
o Предусмотрен безнапорный отвод стоков от санитарно-технических приборов;
o Трубопроводы канализации – раструбные, Синикон.
![]() |
По этому проекту выполнен монтаж отопления, водоснабжения и канализации |
|
|
Заказать проект отопления, водоснабжения и канализации частного дома в нашей компании.

















