Выполненные проекты
Проект отопления дома площадью 724 м.кв. с бассейном
![]() |
![]() |
![]() |
![]() |
![]() |
![]() |
Проект отопления, водоснабжения и канализации: выполнен 12.01.2016
Объект: загородный дом с бассейном и гаражом, общей площадью 724 м.кв., расположенный в дер. Хлябово Мытищинского района Московской области
Вариант отопления: «Комфортный»
Стоимость проекта: 115 000 руб. (проект котельной – бесплатно)
Состав проекта:
1. Пояснительная записка. Общие данные
2. Теплотехнический расчет зданий дома и гаража (расчет отопления).
3. Тепломеханическая схема котельной с размещением оборудования.
4. Комплект чертежей радиаторного отопления гаража.
5. Комплект чертежей радиаторного отопления дома и бассейна.
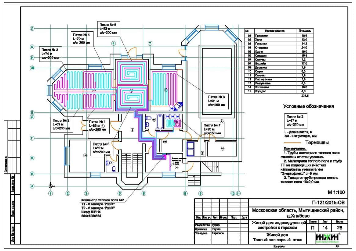
6. Комплект чертежей водяного теплого пола дома.
7. Комплект чертежей внутреннего водопровода и канализации гаража.
8. Комплект чертежей внутреннего водопровода и канализации дома с бассейном.
9. Схема системы канализации (аксонометрия) гаража.
10. Схема системы канализации (аксонометрия) дома с бассейном.
11. Схемы типовых узлов.
12. Спецификация материалов и оборудования.
Объем проекта: 73 листа.
Технические решения, принятые в проекте котельной, отопления, водоснабжения и канализации.
Котельная частного дома и гаража.
o Основной котел - настенный конденсационный газовый Vaillant ecoTEC plus мощностью 112 кВт;
o Резервный котел - настенный электрический РусНит 270М мощностью 70 кВт;
o Контуры котельной – отопление дома, отопление гаража, водяной теплый пол дома, теплоснабжение теплообменника бассейна, теплоснабжение вентиляции бассейна и горячее водоснабжение (бойлер);
o Контур теплоснабжения вентиляции бассейна предусмотрен раздельный, с теплообменником и заполнением антифризом;
o Приготовление горячей воды при помощи бойлера Vaillant uniSTOR VIH R 300, объемом 300 литров;
o Расширительные баки отопления и водоснабжения Reflex объемом 12 (раздельный теплообменник), 100 и 25 литров соответственно;
o Насосное оборудование Grundfos;
o Трубы дымоходные коаксиальные Vaillant, 110/160 мм;
o Распределительный коллектор с насосно-смесительными узлами Meibes, Поколение 8;
o Автоматика котельной – выносной блок Vaillant calorMATIC 630/3, два дополнительных смесительных модуля VR 60 и задатчик-регулятор температуры в помещении VR 90/3.
Автоматизация (вариант «Комфортный»).
o Автоматическое регулирование отопления по наружной температуре (погодное регулирование);
o Автоматическое поддержание заданной температуры в контурах отопления, теплого пола и горячего водоснабжения;
o Автоматическое регулирование отопления по заданной температуре в доме.
Система отопления частного дома с гаражом.
o Отопление дома радиаторное, использованы панельные радиаторы Kermi с нижней подводкой;
o Схема радиаторного отопления двухтрубная, коллекторно-лучевая, с принудительной циркуляцией теплоносителя;
o Температурный график отопления 80/60°С;
o Коллекторные группы в сборе – Valtec, на 4, 6, 7, 10 и 12 отводов;
o Запорно-регулирующая арматура Valtec и Oventrop;
o Трубопроводы отопления – металлопластик Valtec.
Водяной теплый пол.
o Водяной теплый пол в доме спроектирован на площади 94 м.кв.;
o Коллекторная группа с расходомерами – Valtec, на 8 отводов;
o Теплоснабжение теплого пола запроектировано отдельным контуром котельной. Трубопроводы теплого пола - сшитый полиэтилен Valtec PEX-EVON;
o Основание теплого пола – маты из ламинированного пенополистирола «Формат FT40/20L»;
o Регулирование температуры теплого пола – общее, контуром котельной.
В теплотехническом расчете учтена теплоотдача от электрических теплых полов в помещениях, заданных Заказчиком.
Водяные полотенцесушители.
Источником теплоснабжения полотенцесушителей принят контур рециркуляции бытовой горячей воды. Модели полотенцесушителей в проекте не указывались, в тепловом расчете учитывалась теплоотдача 150 Вт от каждого полотенцесушителя.
Водоснабжение дома.
o Схема внутреннего водоснабжения – коллекторно-лучевая, с рециркуляцией горячей воды у потребителей;
o Трубопроводы системы водоснабжения – металлопластик Valtec;
o Предусмотрено использование системы химической очистки воды;
o Коллекторы водоснабжения Valtec.
Внутренняя канализация.
o Предусмотрен комбинированный отвод стоков от санитарно-технических приборов (напорный/безнапорный);
o Использованы две канализационно-насосные станции Grundfos - Sololift2 WС-3 и Sololift2 С-3;
o Трубопроводы канализации – Синикон раструбные, из полипропилена.



















