Выполненные проекты
Проект электроснабжения и освещения таунхауса площадью 265 м.кв.
![]() |
![]() |
![]() |
![]() |
![]() |
![]() |
Проект электроснабжения и освещения (электрики): выполнен 19.01.2016
Объект: таунхаус площадью 265 кв.м. в КП "Парк Авеню" Московской области
Стоимость проекта: 29 150 руб.
Состав проекта:
- Пояснительная записка. Общие данные
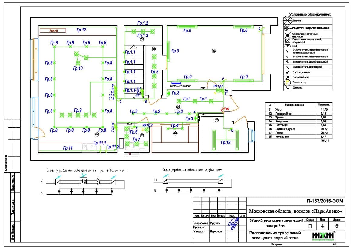
- Однолинейные схемы вводного распределительного устройства и поэтажных распределительных щитов.
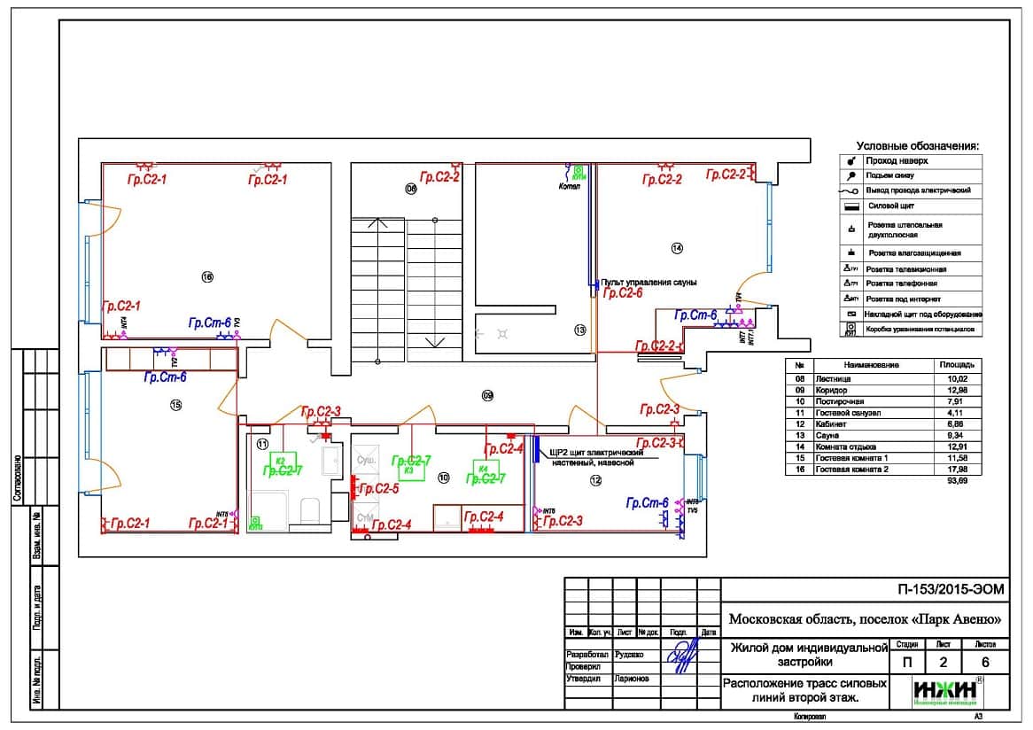
- Поэтажные планы силовых электрических сетей.
- Планы групповых осветительных сетей 1 и 2 этажей.
- Схема системы уравнивания потенциалов.
- Спецификация материалов и оборудования.
Объем проекта: 21 лист.
Основные технические решения проекта электроснабжения и освещения (электрики), в соответствии с заданием Заказчика.
Электрические распределительные щиты.
o Проектом предусмотрено три распределительных щита, оснащенных 67-ю автоматами;
o Автоматические выключатели, дифференциальные автоматы и УЗО в щитах - Hager;
o Корпуса щитов – Hager (наружные и встроенные).
Электрическая и слаботочная кабельная сеть (электропроводка).
o Проектом предусмотрено использование кабелей ВВГ нг -LS (Конкорд) с медными жилами в ПВХ-оболочке;
o Общая протяженность линий электроснабжения и освещения – 3 653 метров;
o Прокладка силовых линий предусмотрена скрытым способом, в пластиковой гофротрубе;
o Предусмотрено 197 точек подключения розеток и выключателей;
o Для системы телевидения предусмотрены кабельные трассы с использованием кабеля Cavel SAT 703, в количестве 450 метров.
|
|
Для этого таунхауса разработан проект отопления, водоснабжения и канализации |




















