Выполненные проекты
Проект отопления дома с баней общей площадью 404 м.кв.
Проект отопления, водоснабжения и канализации: выполнен 30.03.2016
Объект: загородный дом с баней и гаражом общей площадью 404 м.кв., расположенный в КП "Опушкино" Истринского района Московской области
Вариант отопления: «Комфортный»
Стоимость проекта: 65 000 руб. (проект котельной – бесплатно)
Состав проекта:
1. Пояснительная записка. Общие данные
2. Теплотехнический расчет дома, бани и гаража.
3. Тепломеханическая схема котельной с размещением оборудования.
4. Схема системы теплоснабжения строений.
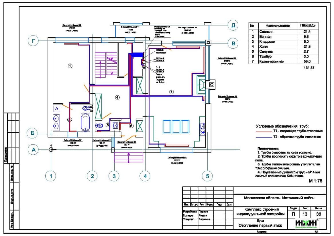
5. Комплект чертежей радиаторного отопления дома.
6. Комплект чертежей радиаторного отопления бани.
7. Комплект чертежей радиаторного отопления гаража.
8. Комплект чертежей водяного теплого пола дома.
9. Комплект чертежей водяного теплого пола гаража.
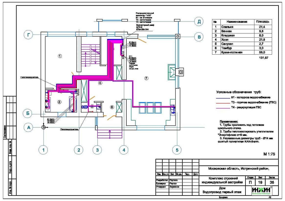
10. Комплект чертежей внутреннего водопровода и канализации дома.
11. Комплект чертежей внутреннего водопровода и канализации бани.
12. Комплект чертежей внутреннего водопровода и канализации гаража.
13. Схемы системы канализации (аксонометрия) дома, бани и гаража.
14. Схемы типовых узлов.
15. Спецификация материалов и оборудования.
Объем проекта: 74 листа.
Основные решения, реализованные проекте отопления, водоснабжения и канализации в соответствие с заданием Заказчика.
Индивидуальная котельная.
o Котел - напольный газовый с чугунным теплообменником Buderus Logano G234 мощностью 60 кВт (в наличии на объекте);
o Контуры котельной – отопление дома, отопление бани, водяной теплый пол дома и горячее водоснабжение (бойлер). Теплоснабжение гаража выполнено оводом от контура отопления бани;
o Приготовление горячей воды при помощи бойлера Buderus Logalux SU300/5, объемом 300 литров;
o Расширительные баки отопления и водоснабжения Reflex объемом 50 и 25 литров соответственно;
o Насосное оборудование Grundfos;
o Трубы дымоходные Rosinox из нержавеющей стали, 190 мм;
o Распределительный коллектор с насосно-смесительными узлами Meibes, Поколение 8;
o Подпитка системы отопления автоматическая;
o Автоматика котельной – блок погодозависимой автоматики Buderus Logamatic 4211.
Автоматизация (вариант «Комфортный»).
o Автоматическое регулирование отопления по наружной температуре (погодное регулирование);
o Автоматическое поддержание заданной температуры в контурах отопления, теплого пола и горячего водоснабжения.
Система отопления дома, бани и гаража.
o Отопление дома радиаторное, использованы панельные радиаторы DeLonghi PLUN с нижней подводкой, настенным и напольным креплением;
o Схема радиаторного отопления двухтрубная, коллекторно-лучевая, с принудительной циркуляцией теплоносителя;
o Температурный график отопления 80/60°С;
o Коллекторные группы в сборе – Valtec на 5, 8 и 9 отводов;
o Запорно-регулирующая арматура Valtec и Oventrop;
o Трубопроводы отопления – сшитый полиэтилен Kan.
Водяные теплые полы дома и гаража.
o Водяной теплый пол в доме и гараже спроектирован на площади 45 м.кв.;
o Коллекторная группа с расходомерами – Valtec;
o Теплоснабжение теплого пола запроектировано отдельным контуром котельной. Трубопроводы теплого пола - сшитый полиэтилен Kan;
o Основание теплого пола – маты из ламинированного пенополистирола «Формат FT40/20L»;
o Регулирование температуры теплого пола – общее, контуром котельной.
Трассы теплоснабжения.
Трубопроводы – сшитый полиэтилен Kan в утеплителе Энергофлекс.
Водяные полотенцесушители.
Источником теплоснабжения полотенцесушителей принят контур рециркуляции бытовой горячей воды. Модели полотенцесушителей в проекте не указывались, в тепловом расчете учитывалась теплоотдача 150 Вт от каждого полотенцесушителя.
Внутренний водопровод дома, бани и гаража.
o Схема внутреннего водоснабжения – коллекторно-лучевая, с рециркуляцией горячей воды у потребителей;
o Трубопроводы системы водоснабжения – сшитый полиэтилен Kan;
o Предусмотрено использование системы химической очистки воды;
o Кран для летнего водопровода с защитой от замерзания Meibes SEPP-Eis (2 шт.)
o Коллекторы водоснабжения Valtec.
Внутренняя канализация дома, бани и гаража.
o Предусмотрен безнапорный отвод стоков от санитарно-технических приборов всех строений;
o В бане использован трап с «сухим» затвором Viega, максимальная нагрузка 300 кг;
o Трубопроводы канализации – Синикон Комфорт раструбные, шумопоглощающие.



















