Выполненные проекты
Проект отопления, водоснабжения и канализации таунхауса площадью 131 м.кв.
![]() |
![]() |
![]() |
![]() |
![]() |
![]() |
Проект отопления, водоснабжения и канализации: выполнен 13.04.2016
Объект: таунхаус площадью 131 кв.м. в Мытищинском районе Московской области
Вариант отопления: «Базовый»
Стоимость проекта: 22 500 руб. (минимальная стоимость проектирования)
Состав проекта:
1. Пояснительная записка. Общие данные
2. Теплотехнический расчет таунхауса.
3. Тепломеханическая схема котельной с размещением оборудования.
4. Комплект чертежей радиаторного отопления.
5. Комплект чертежей внутреннего водопровода и канализации.
6. Схема системы канализации (аксонометрия).
7. Типовые узлы.
8. Спецификация материалов и оборудования.
Объем проекта: 35 листов.
Технические решения проекта отопления, водоснабжения и канализации, реализованные в соответствие с заданием Заказчика.
Индивидуальная котельная.
o Котел – настенный газовый Vaillant turboTEC plus мощностью 20 кВт;
o Контуры котельной – отопление дома и горячее водоснабжение (бойлер), подключение к котлу без использования коллектора;
o Приготовление горячей воды при помощи бойлера Vaillant uniSTOR, объемом 150 литров;
o Расширительный бак горячего водоснабжения Reflex;
o Насос рециркуляции горячей воды Grundfos;
o Трубы дымоходные Vaillant, коаксиальные, в исполнении «через стену»;
o Автоматика котельной – встроена в котел.
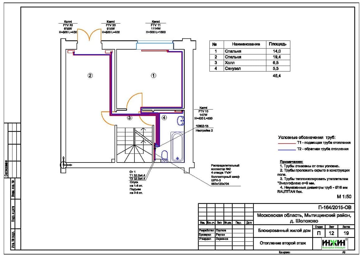
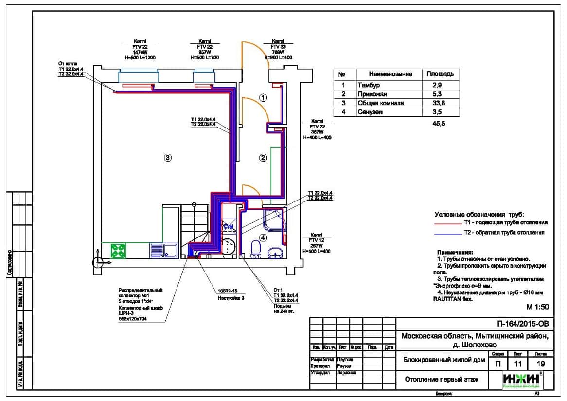
Система отопления.
o Отопление дома радиаторное, использованы панельные стальные радиаторы Kermi (нижнее подключение);
o Схема радиаторного отопления двухтрубная, коллекторно-лучевая, с принудительной циркуляцией теплоносителя;
o Температурный график отопления 80/60°С;
o Трубопроводы отопления – сшитый полиэтилен Rehau RAUTITAN flex;
o Теплоизоляция трубопроводов Энергофлекс Супер, толщиной 9мм.
Система теплых полов.
Водяной теплый пол проектом не предусмотрен.
Водяные полотенцесушители.
Источником теплоснабжения полотенцесушителей принят контур рециркуляции бытовой горячей воды. Модели полотенцесушителей в проекте не указывались, в тепловом расчете учитывалась теплоотдача 150 Вт от каждого полотенцесушителя.
Внутренний водопровод.
o Схема внутреннего водоснабжения – коллекторно-лучевая, с рециркуляцией горячей воды у потребителей;
o Трубопроводы системы водоснабжения – сшитый полиэтилен Rehau RAUTITAN flex;
o Теплоизоляция трубопроводов Энергофлекс Супер, толщиной 9мм;
o Предусмотрено использование наружного крана Meibes SEPP-Eis с защитой от замерзания, для летнего водопровода;
o Коллекторы водоснабжения Valtec.
Внутренняя канализация.
o Предусмотрен безнапорный отвод стоков от санитарно-технических приборов;
o Трубопроводы канализации – раструбные Синикон;
o Теплоизоляция трубопроводов Энергофлекс Супер, толщиной 13мм.
![]() |
По этому проекту выполнен монтаж отопления, водоснабжения и канализации |
Заказать проект отопления, водоснабжения и канализации таунхауса в нашей компании.




















