Выполненные проекты
Проект отопления частного дома с баней общей площадью 141 м.кв.
![]() |
![]() |
![]() |
Проект отопления, водоснабжения и канализации: выполнен 13.05.2016
Объект: дом с баней общей площадью 141 кв.м. в дер. Есиново Солнечногорского района Московской области
Вариант отопления: «Базовый»
Стоимость проекта отопления: 22 500 руб. (проект котельной – бесплатно)
Состав проекта отопления:
1. Пояснительная записка. Общие данные
2. Теплотехнический расчет дома и бани.
3. Тепломеханическая схема котельной с размещением оборудования.
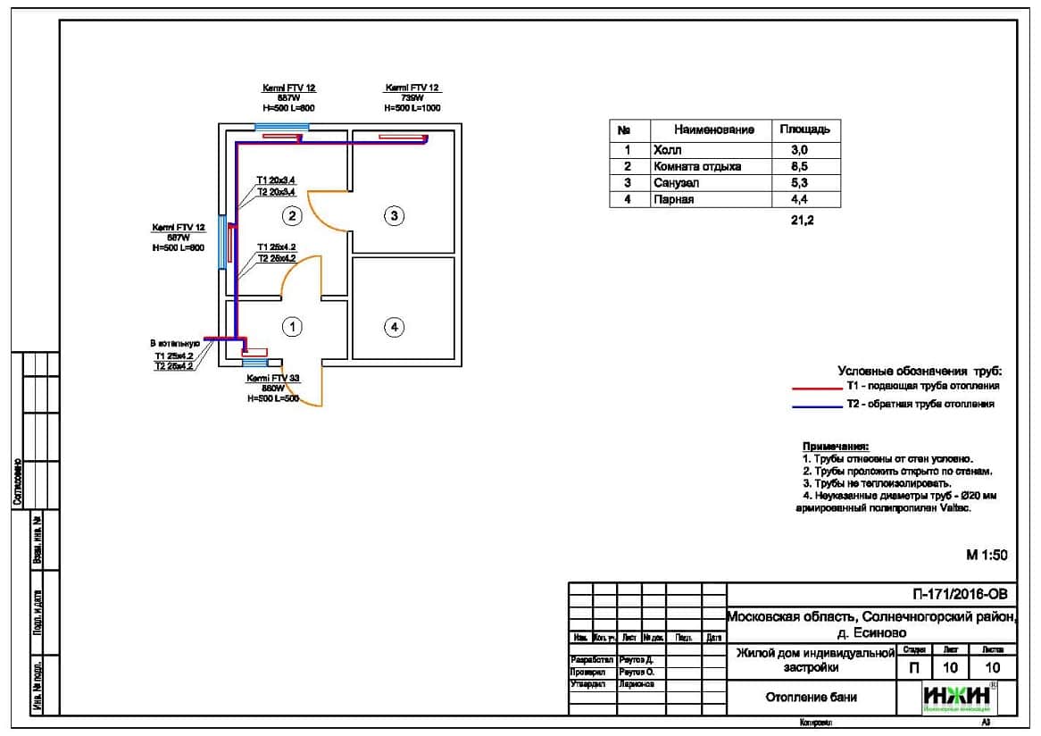
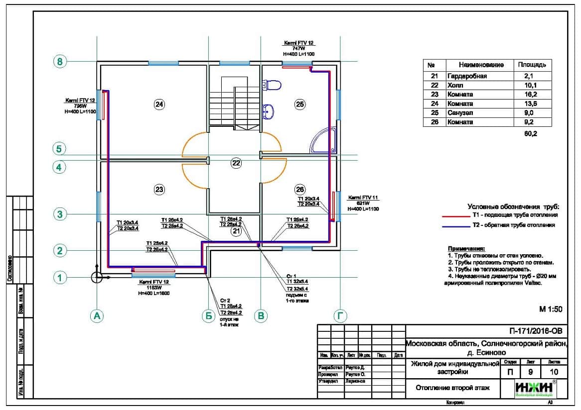
4. Комплект чертежей радиаторного отопления дома.
5. Комплект чертежей радиаторного отопления бани.
6. Спецификация материалов и оборудования.
Объем проекта: 29 листов
Основные проектные решения, принятые в проекте отопления, водоснабжения и канализации, в соответствие с заданием Заказчика.
Индивидуальная котельная (размещена в доме).
o Котел настенный газовый Buderus Logamax U072-24 мощностью 24 кВт;
o Контуры котельной – отопление дома, отопление бани и горячее водоснабжение (бойлер);
o Приготовление горячей воды при помощи бойлера Reflex Storatherm, объемом 120 литров;
o Расширительные баки отопления и водоснабжения Reflex;
o Трубы дымоходные Buderus, коаксиальные;
o Подпитка отопления – ручная;
o Автоматика котельной – встроена в котел (вариант «Базовый»).
Система отопления дома и бани.
o Отопление дома и бани радиаторное, использованы панельные стальные радиаторы Kermi, нижнее подключение;
o Схема радиаторного отопления двухтрубная с принудительной циркуляцией теплоносителя;
o Температурный график отопления 80/60°С;
o Трубопроводы отопления – армированный полипропилен Valtec;
o Прокладка трубопроводов – открытая, по стенам помещений;
o Теплоизоляция трубопроводов не предусмотрена.
Заказать проект отопления, водоснабжения и канализации частного дома в нашей компании.
















