Выполненные проекты
Проект отопления, водоснабжения и канализации загородного дома площадью 250 м.кв.
![]() |
![]() |
![]() |
![]() |
![]() |
![]() |
Проект отопления, водоснабжения и канализации: выполнен 02.06.2016
Объект: загородный дом площадью 250 м.кв., расположенный в Ленинском районе Московской области
Вариант отопления: «Комфортный»
Стоимость проекта: 40 700 руб. (проект котельной – бесплатно)
Состав проекта:
1. Пояснительная записка. Общие данные
2. Теплотехнический расчет.
3. Тепломеханическая схема котельной с размещением оборудования.
4. Комплект чертежей радиаторного отопления.
5. Комплект чертежей водяного теплого пола.
6. Комплект чертежей внутреннего водопровода.
7. Комплект чертежей канализации дома.
8. Схемы типовых узлов.
9. Спецификация материалов и оборудования.
Объем проекта: 50 листов.
Основные решения проекта котельной, отопления, водоснабжения и канализации, в соответствие с заданием Заказчика.
Индивидуальная котельная.
o Котел - напольный газовый с чугунным теплообменником Buderus Logano G234 мощностью 44 кВт (в наличии на объекте);
o Контуры котельной – отопление дома, теплоснабжение хаммама, водяной теплый пол и горячее водоснабжение (бойлер);
o Приготовление горячей воды при помощи бойлера Buderus Logalux SU200, объемом 200 литров;
o Расширительные баки отопления и водоснабжения Reflex объемом 50 и 25 литров соответственно;
o Насосное оборудование Grundfos;
o Трубы дымоходные Rosinox из нержавеющей стали, 180 мм;
o Распределительный коллектор с насосно-смесительными узлами Meibes, Поколение 8;
o Подпитка системы отопления ручная;
o Автоматика котельной – блок погодозависимой автоматики Buderus Logamatic 4211 с функциональными модулями FM442.
Автоматизация (вариант «Комфортный»).
o Автоматическое регулирование отопления по наружной температуре (погодное регулирование);
o Автоматическое поддержание заданной температуры в контурах отопления, теплого пола и горячего водоснабжения.
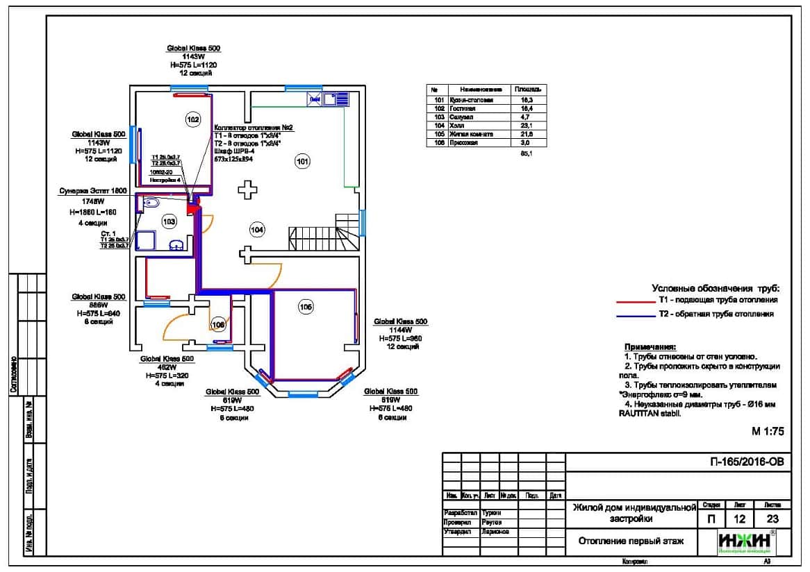
Система отопления.
o Отопление дома радиаторное, использованы секционные радиаторы GLOBAL Style Extra и трубчатые радиаторы Сунержа Эстет;
o Схема радиаторного отопления двухтрубная, коллекторно-лучевая, с принудительной циркуляцией теплоносителя;
o Температурный график отопления 80/60°С;
o Коллекторы отопления – Oventrop (на 8 отводов);
o Запорно-регулирующая арматура FAR и Oventrop;
o Трубопроводы отопления – сшитый полиэтилен Rehau.
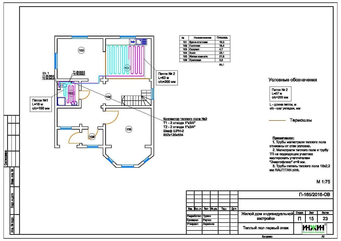
Водяной теплый пол.
o Водяной теплый пол предусмотрен на площади 70 м.кв.;
o Коллекторы теплого пола – Oventrop (на 2 и 3 отвода);
o Теплоснабжение теплого пола запроектировано отдельным контуром котельной. Трубопроводы теплого пола - сшитый полиэтилен Rehau;
o Основание теплого пола – маты из ламинированного пенополистирола «Формат FT40/20L», а также теплораспределительные пластины Valtec (в местах «сухой» укладки);
o Регулирование температуры теплого пола – общее, контуром котельной.
Внутренний водопровод.
o Схема внутреннего водоснабжения – коллекторно-лучевая, с рециркуляцией горячей воды у потребителей;
o Трубопроводы системы водоснабжения – сшитый полиэтилен Rehau;
o Предусмотрено использование системы химической очистки воды;
o Коллекторы водоснабжения сборные, FAR.
Внутренняя канализация.
o Предусмотрен комбинированный отвод стоков от санитарно-технических приборов – напорный в цокольном этаже и безнапорный на 1 и 2 этажах;
o Канализационно-насосные станции SFA SaniDouche, Sanipack и Sanivite;
o Трубопроводы канализации – Ostendorf, раструбные.



















