Выполненные проекты
Проект отопления дома в КП «Английский Квартал»
![]() |
![]() |
![]() |
![]() |
![]() |
![]() |
Проект отопления, водоснабжения и канализации: выполнен 08.11.2016
Объект: загородный дом (дуплекс) площадью 185 кв.м. в Московской области, КП «Английский Квартал»
Вариант отопления: «Комфортный+»
Стоимость проекта: 30 950 руб. (проект котельной – бесплатно)
Состав проекта:
1. Пояснительная записка. Общие данные
2. Теплотехнический расчет.
3. Тепломеханическая схема котельной с размещением оборудования.
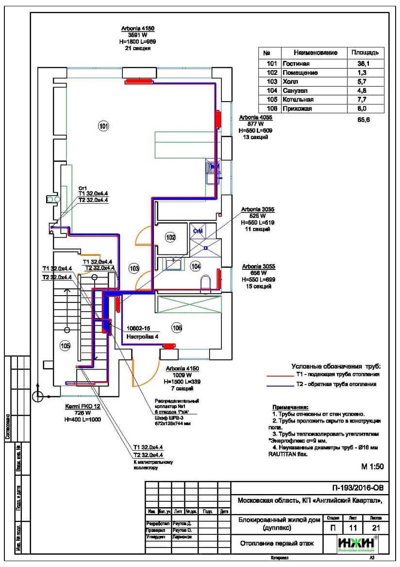
4. Комплект чертежей радиаторного отопления дома.
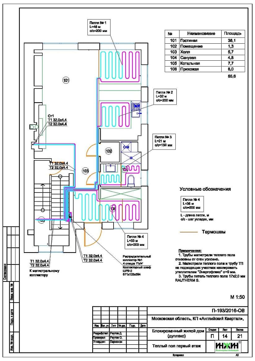
5. Комплект чертежей водяного теплого пола дома.
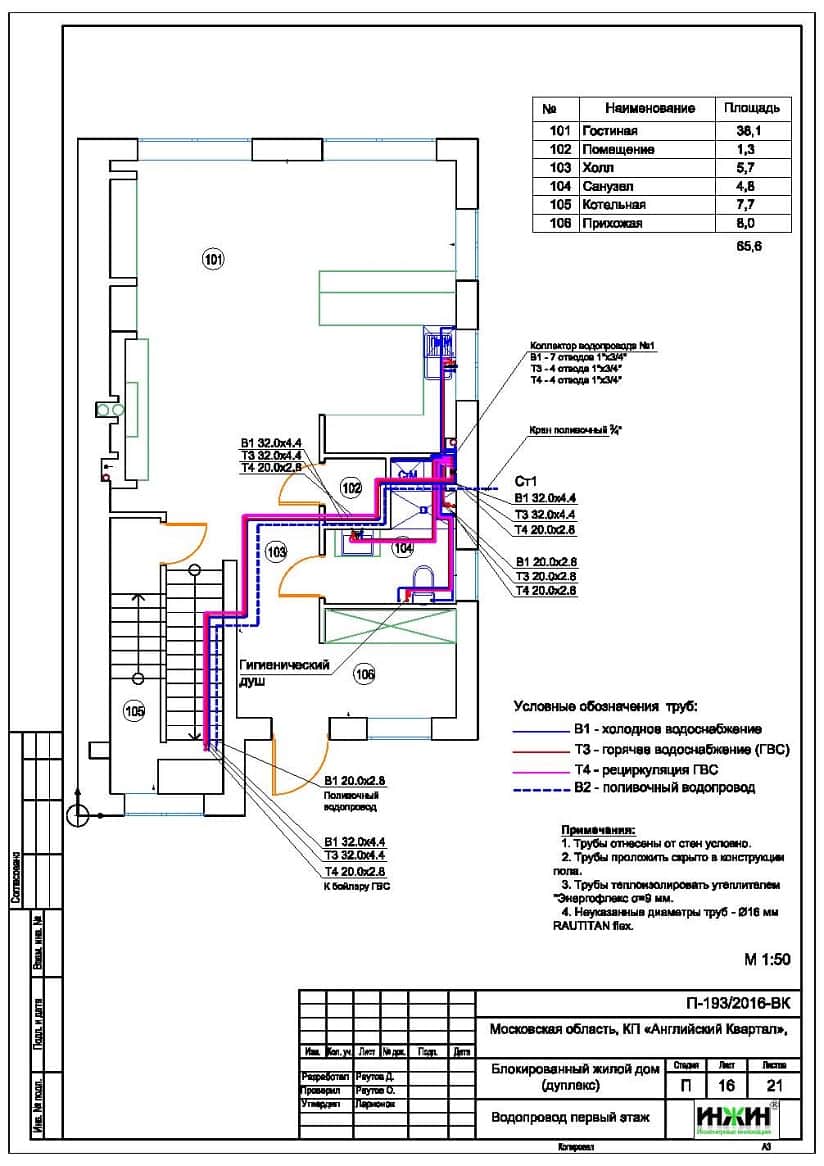
6. Комплект чертежей внутреннего водопровода и канализации.
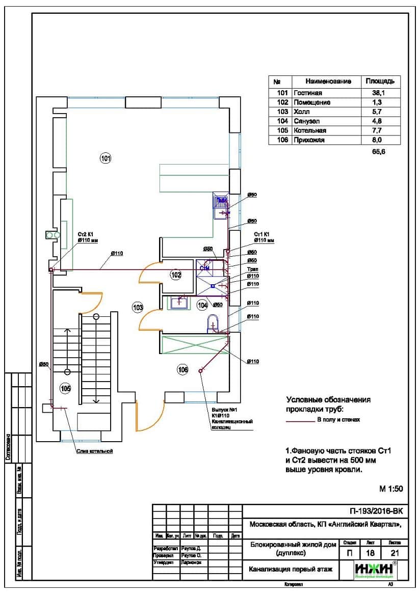
7. Схема системы канализации (аксонометрия).
8. Типовые узлы систем.
9. Спецификация материалов и оборудования.
Объем проекта: 51 лист.
Основные решения проекта отопления, котельной, теплого пола, водоснабжения и канализации, в соответствие с заданием Заказчика.
Индивидуальная котельная.
o Котел настенный газовый Vaillant atmoTEC plus мощностью 28 кВт;
o Контуры котельной – радиаторное отопление дома, водяной теплый пол и горячее водоснабжение (бойлер);
o Приготовление горячей воды при помощи бойлера Vaillant uniSTOR, объемом 200 литров;
o Расширительные баки отопления и водоснабжения Reflex;
o Насосное оборудование Grundfos;
o Трубы дымоходные Rosinox, из нержавеющей стали, диаметром 130мм;
o В качестве распределительного коллектора использован универсальный насосно-смесительный модуль Meibes Kombimix;
o Подпитка отопления – автоматическая;
o Автоматика котельной – блок Vaillant calorMATIC 630/3, GSM-термостат ZONT H-1 V.
Автоматизация (вариант «Комфортный+»).
o Автоматическое регулирование отопления по наружной температуре (погодное регулирование) и температуре в помещении;
o Автоматическое поддержание заданной температуры в контурах отопления, теплого пола и горячего водоснабжения;
o Дистанционный контроль работы котельной установки при помощи GSM-модуля;
o Зональное управление теплым полом при помощи системы Rehau Nea Smart.
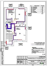
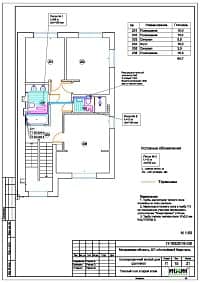
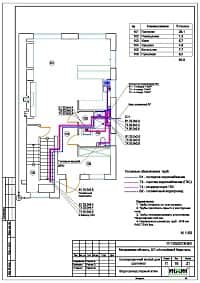
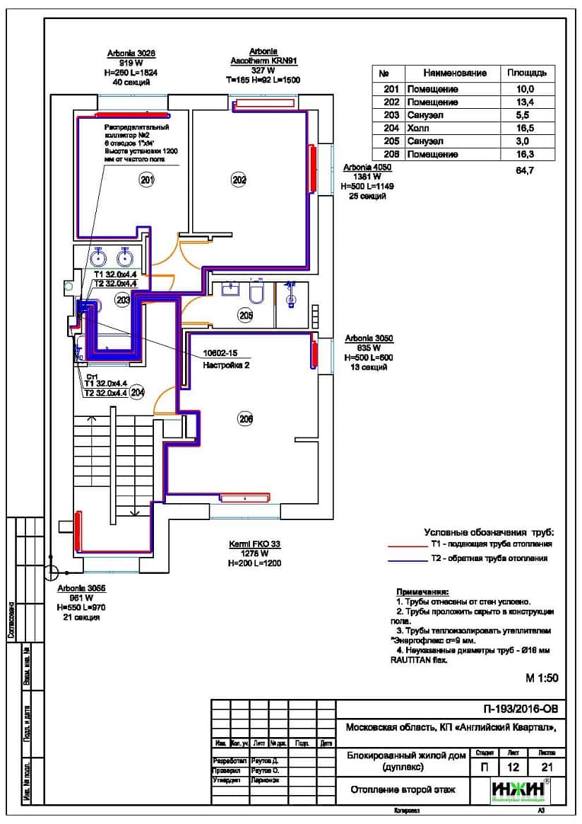
Система отопления частного дома.
o Отопление радиаторное, использованы панельные стальные радиаторы Kermi, а также трубчатые дизайн-радиаторы и встроенный в пол конвектор Arbonia;
o Схема радиаторного отопления двухтрубная, коллекторно-лучевая, с принудительной циркуляцией теплоносителя;
o Температурный график отопления 80/60°С;
o Трубопроводы отопления – сшитый полиэтилен Rehau;
o Распределительные коллекторы отопления – Rehau HKV, на 4 и 6 отводов;
o Шкафы коллекторные Valtec, встраиваемые;
o Теплоизоляция трубопроводов Энергофлекс Супер, толщиной 9мм;
o Теплоноситель в системе отопления и теплых полов – подготовленная вода.
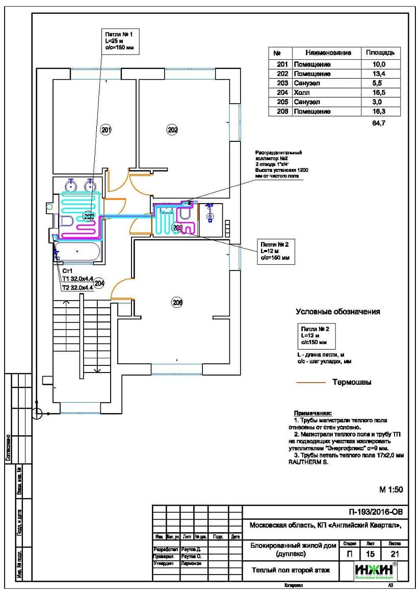
Водяной теплый пол.
o Водяной теплый пол в доме спроектирован на площади 46 м.кв., 6 петель;
o Теплоснабжение теплого пола запроектировано отдельным контуром котельной;
o Трубопроводы теплого пола - сшитый полиэтилен Rehau RAUTHERM S;
o Использованы коллекторные группы Rehau HKV-D с расходомерами на 2 и 4 отвода;
o Основание теплого пола – маты из ламинированного пенополистирола Экопол EPS2102;
o Регулирование температуры теплого пола предусмотрено при помощи комнатных термостатов и сервоприводов системы Rehau Nea Smart.
Внутренний водопровод.
o Схема внутреннего водоснабжения – коллекторная, с рециркуляцией горячей воды у потребителей;
o Коллекторы водопровода – Valtec VTc.560, сборные, с запорными вентилями;
o Трубопроводы системы водоснабжения – сшитый полиэтилен Rehau;
o Для летнего водопровода предусмотрен наружный кран Meibes SEPP-Eis с защитой от замерзания;
o Теплоизоляция трубопроводов Энергофлекс Супер, толщиной 9мм.
Внутренняя канализация.
o Предусмотрен безнапорный отвод стоков от санитарно-технических приборов;
o Трубопроводы канализации – раструбные SINIKON;
o Предусмотрено два трапа с «сухим» затвором Viega;
o Теплоизоляция трубопроводов Энергофлекс Супер, толщиной 13мм.



















