Выполненные проекты
Проект электрики дома 149 м.кв. в Тверской области
Проект электроснабжения и освещения: выполнен 25.10.2016
Объект: загородный дом площадью 149 кв.м., Тверская область, Конаковский район, ПГТ Козлово
Стоимость проекта электрики: 14 025 руб. (со скидкой 15%)
Состав проекта электрики загородного дома:
1. Пояснительная записка. Общие данные по системе электроснабжения и освещения.
2. Однолинейные схемы вводного распределительного устройства.
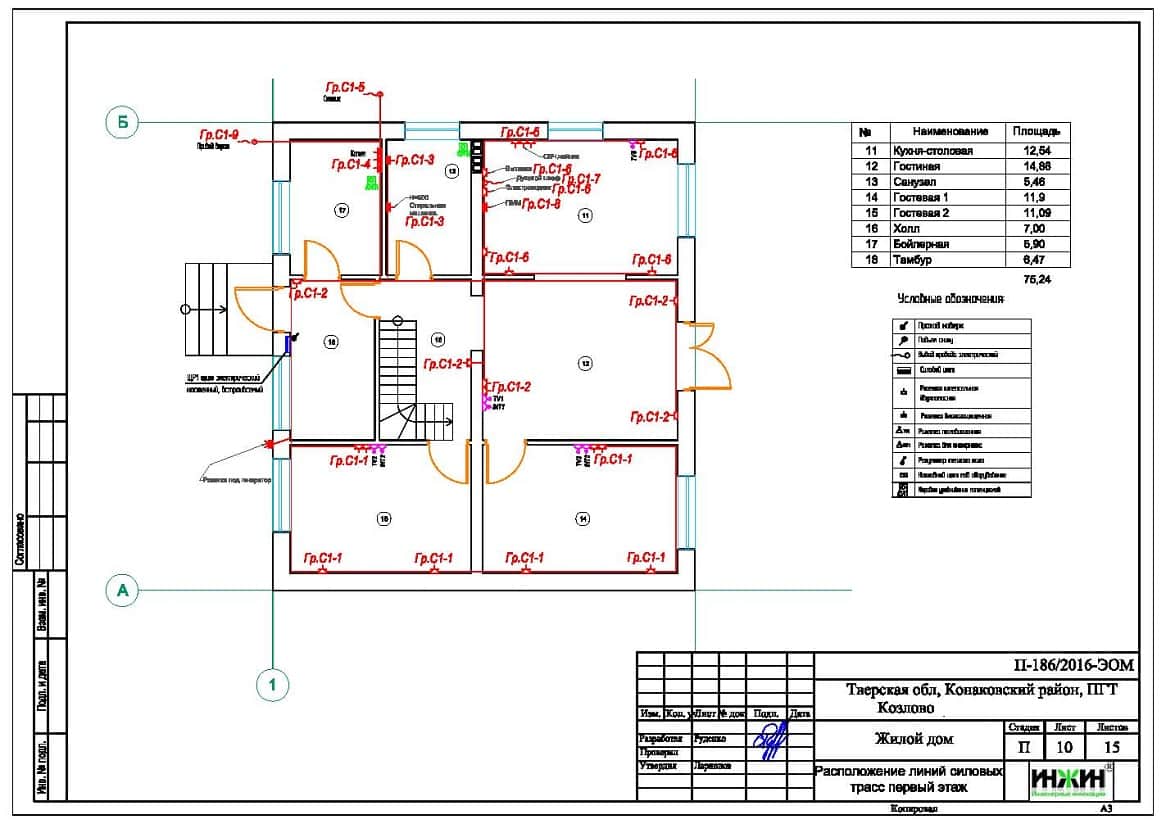
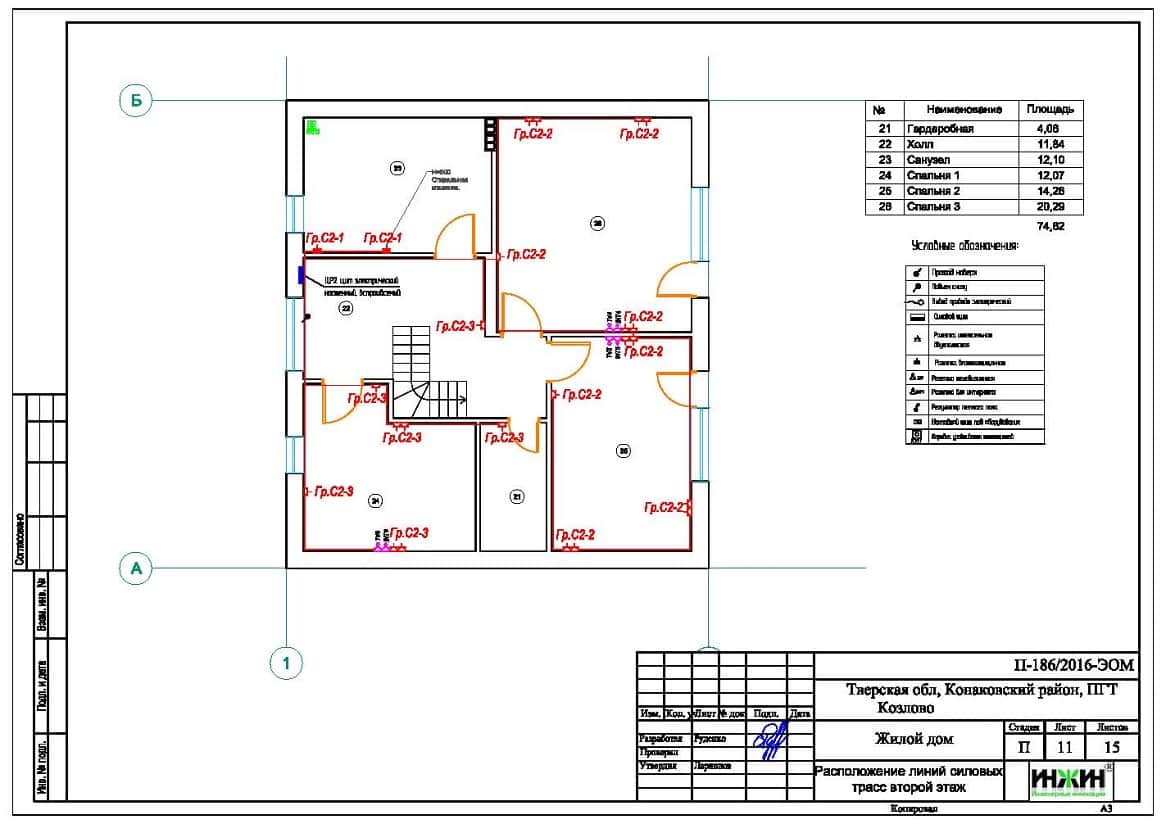
3. Поэтажные планы силовых электрических сетей (проект электропроводки).
4. Планы групповых осветительных сетей.
5. Спецификация материалов и оборудования по электрике и слаботочке загородного дома.
Объем проекта: 15 листов.
Основные технические решения проекта электроснабжения и освещения (электрики) дома в Тверской области.
Расчетные показатели по электроснабжению.
o Расчетная электрическая мощность дома составила 13,03 кВт, с учетом коэффициента спроса 0,55, принятого согласно СП 256.1325800.2016;
o При расчете учтено силовое оборудование: котельная, септик, скважинный насос;
o Мощность потребителей резервного электропитания составила 7,14 кВт.
Распределительные электрические щиты.
o Проектом предусмотрено два распределительных щита, оснащенных 24-мя автоматами;
o Автоматические выключатели, дифференциальные автоматы и УЗО в щите - Hager;
o Корпуса щитов – Hager, встраиваемые.
Электропроводка (кабельные линии).
o Проектом предусмотрено использование кабелей ВВГ нг -LS (Конкорд) с медными жилами в ПВХ-оболочке;
o Общая протяженность линий электроснабжения и освещения – 491 метр;
o Прокладка силовых линий предусмотрена скрытым способом, в гофрированной ПВХ-трубе и металлорукаве (в виниловой изоляции);
o Предусмотрено 85 точек подключения розеток и выключателей;
o Для системы телевидения предусмотрены кабельные трассы с использованием кабеля Cavel SAT 703, в количестве 50 метров;
o Для систем сигнализации использован провод UTP 4х2х0,51 cat 5e, 70 метров.
Контур заземления.
Предусмотрен комплект заземления Ezetek EZ 6.




















