Выполненные проекты
Проект электроснабжения и освещения дома площадью 126 м.кв. в Ярославской области
![]() |
![]() |
![]() |
![]() |
![]() |
![]() |
Объект: жилой дом индивидуальной застройки площадью 126 кв.м. в Ярославской области
Стоимость проекта: 16 500 руб. (минимальная стоимость проектирования электрики).
Проект электроснабжения и освещения выполнен: 28.08.2015
Состав проекта электрики:
1. Пояснительная записка. Общие данные
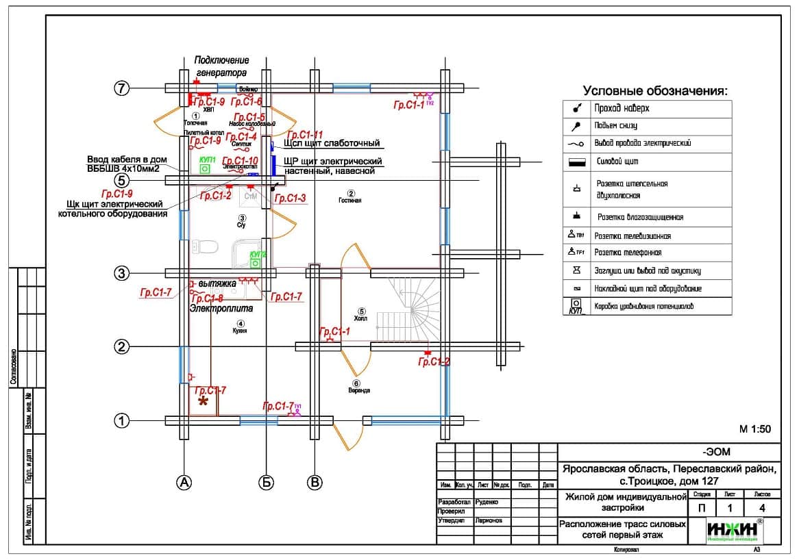
2. Однолинейные схемы вводного распределительного устройства и распределительного щита.
3. Поэтажные планы силовых электрических сетей.
4. Планы групповых осветительных сетей.
5. Спецификация материалов и оборудования.
Объем проекта: 15 листов.
Основные технические решения проекта электроснабжения и освещения (электрики) дома в Ярославской области, в соответствии с заданием Заказчика.
Электрические щиты.
o Проектом предусмотрен распределительный щит, оснащенный 27-ю автоматами;
o Автоматические выключатели, дифференциальные автоматы и УЗО в щитах - Hager;
o Корпус щита – Hager, навесной.
Электропроводка (кабельная сеть).
o Проектом предусмотрено использование кабелей ВВГ нг -LS (Конкорд) с медными жилами в ПВХ-оболочке, а также декоративного витого кабеля Salvador;
o Общая протяженность линий электроснабжения и освещения – 978 метров;
o Прокладка силовых линий комбинированным способом – скрытым и открытым;
o Предусмотрено 134 точки подключения розеток и выключателей;
o Для системы телевидения предусмотрены кабельные трассы с использованием кабеля Cavel SAT 703, в количестве 100 метров.
Контур заземления.
Предусмотрен контур повторного заземления на оборудовании Ezetek EZ 25,2.
Заказать проект электрики дома со скидкой.
![]() |
По этому проекту выполнен монтаж электрики |




















