Выполненные проекты
Проект электрики частного дома площадью 470 м.кв.
![]() |
![]() |
![]() |
![]() |
![]() |
![]() |
Объект: частный дом площадью 470 кв.м. в дер. Никифоровское Одинцовского района Московской области
Стоимость проекта электрики: 51 7000 руб., проект аварийного питания бесплатно.
Проект выполнен: 01.09.2015
Состав проекта электрики:
1. Пояснительная записка. Общие данные
2. Однолинейные схемы вводного распределительного устройства и распределительных щитов дома.
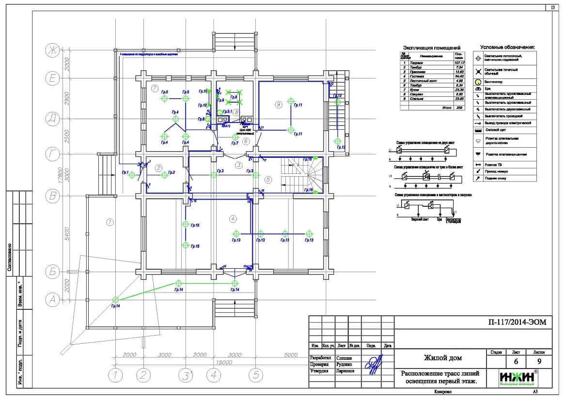
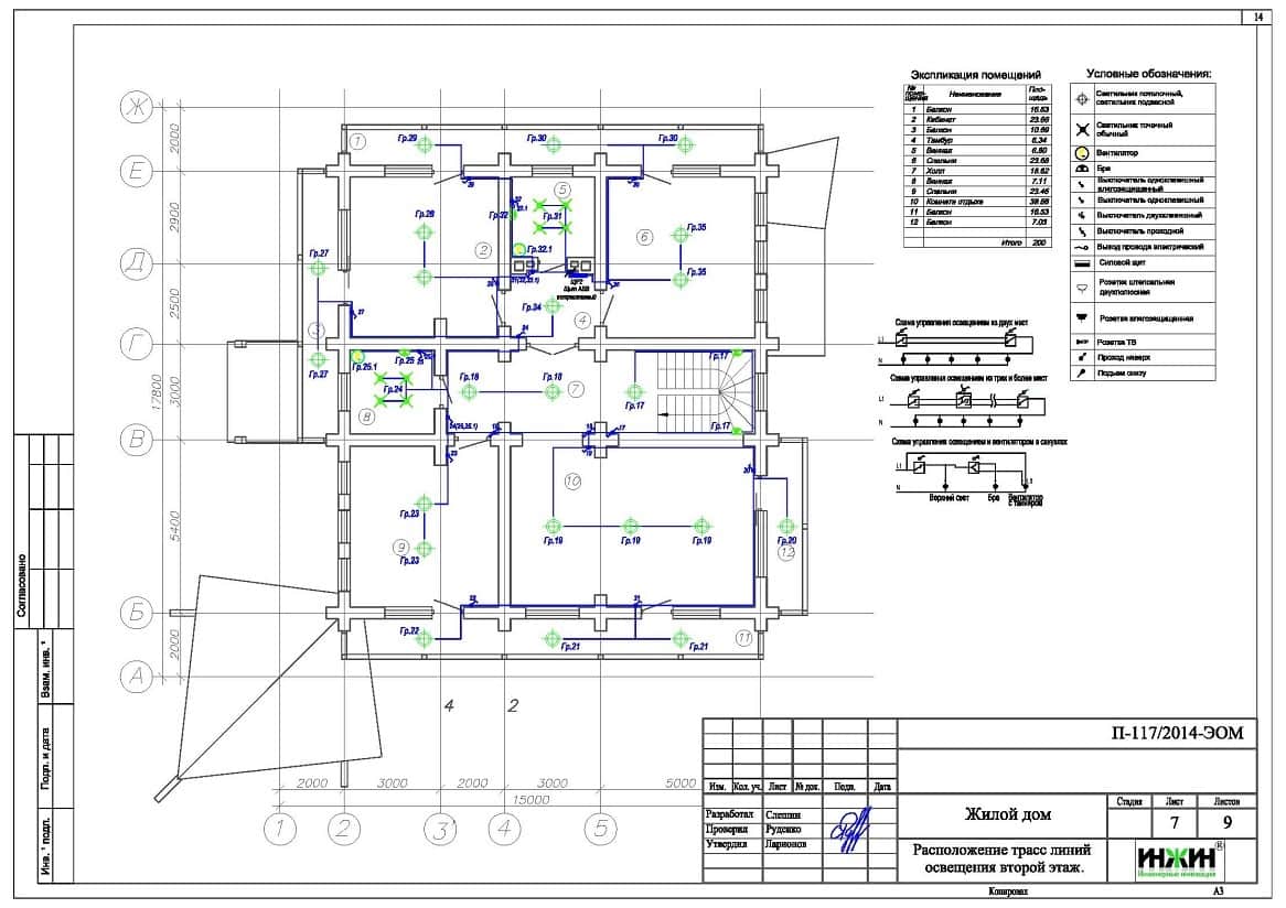
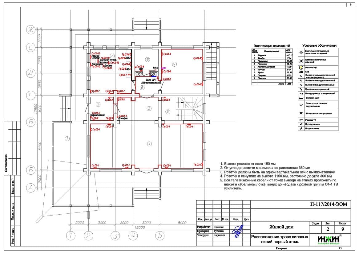
3. Поэтажные планы силовых электрических сетей дома.
4. Поэтажные планы групповых осветительных сетей дома.
5. Схема системы уравнивания потенциалов.
6. Схема системы молниезащиты.
7. Спецификация материалов и оборудования.
Объем проекта: 24 листа.
Основные технические решения проекта электроснабжения и освещения (электрики), в соответствии с заданием Заказчика.
Распределительные электрческие щиты.
o Проектом предусмотрено ВРУ и три поэтажных распределительных щита, оснащенных 65-ю автоматами;
o Автоматические выключатели, дифференциальные автоматы и УЗО в щитах - ABB;
o Предусмотрены группы аварийного электропитания с 11-ю автоматами, размещенными в ЩР цокольного этажа;
o Корпуса щитов - ABB.
Силовая кабельная сеть (электропроводка).
o Схема прокладки и трассировки кабельных линий классическая, без распаячных коробок, коммутации в щите и подрозетных коробках;
o Проектом предусмотрено использование кабелей ВВГ нг -LS (Конкорд) с медными жилами в тройной изоляции;
o Общая протяженность линий электроснабжения и освещения – 6 070 метров;
o Прокладка силовых линий предусмотрена скрытым способом, в ПВХ-гофротрубе и металлорукаве в ПВХ-оболочке.
Заземление и молниезащита.
Проектом предусмотрен комплект системы молниезащиты и заземления Ezetec EZ 25,2.
![]() |
Для этого дома разработан проект отопления, водоснабжения и канализации |



















