Выполненные проекты
Проект отопления, водоснабжения и канализации дома площадью 200 м.кв. в Тульской области
Проект отопления, водоснабжения и канализации: выполнен 05.12.2016
Объект: двухэтажный загородный дом площадью 200 кв.м. в СНТ «Твой дом» Тульской области
Вариант отопления: «Комфортный»
Стоимость проекта: 27 540 руб. (со скидкой 15%)
Состав проекта:
1. Пояснительная записка. Общие данные
2. Теплотехнический расчет.
3. Тепломеханическая схема котельной с размещением оборудования.
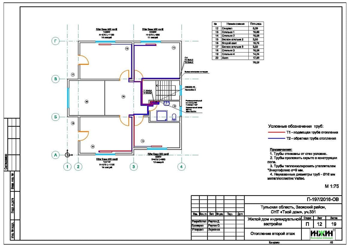
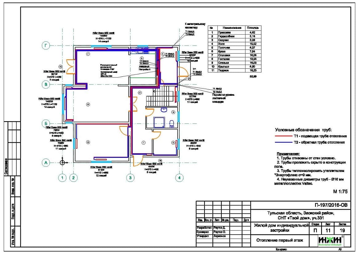
4. Комплект чертежей радиаторного отопления дома.
5. Комплект чертежей водяного теплого пола дома.
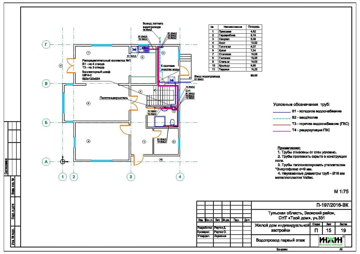
6. Комплект чертежей внутреннего водопровода и канализации.
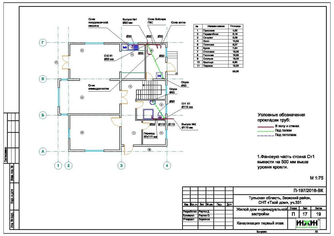
7. Схема системы канализации (аксонометрия).
8. Типовые узлы систем.
9. Спецификация материалов и оборудования.
Объем проекта: 42 листа.
Основные проектные решения, принятые в проекте отопления, водоснабжения и канализации в соответствие с заданием Заказчика.
Индивидуальная котельная.
o Котел настенный газовый Vaillant atmoTEC plus мощностью 28 кВт;
o Контуры котельной – радиаторное отопление дома, водяной теплый пол и горячее водоснабжение (бойлер);
o Приготовление горячей воды при помощи бойлера Vaillant uniSTOR, объемом 200 литров;
o Расширительные баки отопления и водоснабжения Reflex;
o Насосное оборудование Grundfos;
o Трубы дымоходные Vaillant, коаксиальные, комплект для горизонтального прохода через стену;
o В качестве распределительного коллектора использован универсальный насосно-смесительный модуль Meibes Kombimix;
o Подпитка отопления – ручная;
o Автоматика котельной – блок Vaillant calorMATIC 630/3, GSM-термостат ZONT H-1 V.
Автоматизация (вариант «Комфортный»).
o Автоматическое регулирование отопления по наружной температуре (погодное регулирование) и температуре в помещении;
o Автоматическое поддержание заданной температуры в контурах отопления, теплого пола и горячего водоснабжения;
o Дистанционный контроль работы котельной установки при помощи GSM-модуля.
Система отопления частного дома (монтаж отопления).
o Отопление радиаторное, использованы секционные биметаллические радиаторы;
o Схема радиаторного отопления двухтрубная, коллекторно-лучевая, с принудительной циркуляцией теплоносителя;
o Температурный график отопления 80/60°С;
o Трубопроводы отопления – металлопластик Valtec;
o Распределительные коллекторы отопления – Valtec, на 4 и 10 отводов;
o Шкафы коллекторные Valtec, пристраиваемые;
o Теплоизоляция трубопроводов Энергофлекс Супер, толщиной 9мм;
o Теплоноситель в системе отопления и теплых полов – подготовленная вода.
Водяной теплый пол (монтаж теплого пола).
o Водяной теплый пол в доме спроектирован на площади 50 м.кв., 5 петель;
o Теплоснабжение теплого пола запроектировано отдельным контуром котельной;
o Трубопроводы теплого пола - сшитый полиэтилен Valtec PEX-EVON;
o Использована коллекторная группа Valtec VTc.596EMNX с расходомерами на 5 отводов;
o Основание теплого пола – маты из ламинированного пенополистирола Экопол EPS2102;
o Регулирование температуры теплого пола – общее, контуром котельной.
Внутренний водопровод.
o Схема внутреннего водоснабжения – коллекторная, с рециркуляцией горячей воды через полотенцесушители, трубопроводы из металлопластика Valtec;
o Коллекторы водопровода – Valtec VTc.560, сборные, с запорными вентилями;
o Трубопроводы системы водоснабжения – сшитый полиэтилен Rehau;
o Для летнего водопровода предусмотрен наружный кран Meibes SEPP-Eis с защитой от замерзания;
o Теплоизоляция трубопроводов Энергофлекс Супер, толщиной 9мм.
Внутренняя канализация (монтаж канализации).
o Предусмотрен безнапорный отвод стоков от санитарно-технических приборов;
o Трубопроводы канализации – раструбные SINIKON;
o Теплоизоляция трубопроводов Энергофлекс Супер, толщиной 13мм.




















