Выполненные проекты
Проект отопления, водоснабжения и канализации таунхауса площадью 341 м.кв. в КП «Довиль»
![]() |
|
![]() |
![]() |
![]() |
![]() |
Проект отопления, водоснабжения и канализации: выполнен 14.12.2016
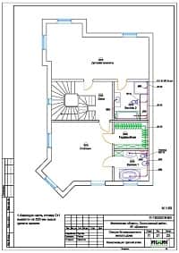
Объект: двухэтажный таунхаус площадью 341 кв.м. в КП «Довиль» Одинцовского района Московской области
Вариант отопления: «Комфортный»
Стоимость проекта: 43 478 руб.
Состав проекта:
1. Пояснительная записка. Общие данные.
2. Магистральные инженерные сети.
3. Комплект чертежей радиаторного отопления.
4. Комплект чертежей внутреннего водопровода и канализации.
5. Схема системы канализации (аксонометрия).
6. Спецификация материалов и оборудования.
Объем проекта: 43 листа.
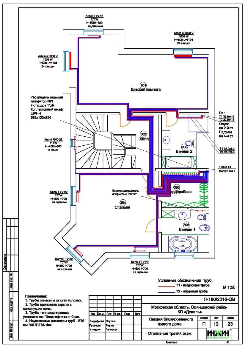
Основные решения проекта отопления таунхауса, в соответствие с заданием Заказчика.
Центральное теплоснабжение.
Теплоснабжение таунхауса обеспечивается центральным тепловым пунктом. В проекте учтено подключение к магистральным сетям.
Система отопления таунхауса.
o Использованы стальные панельные радиаторы Kermi, а также дизайн-радиаторы Arbonia с нижним подключением;
o Схема радиаторного отопления двухтрубная, коллекторно-лучевая, с принудительной циркуляцией теплоносителя;
o Температурный график отопления 80/60°С;
o Трубопроводы отопления – сшитый полиэтилен Rehau RAUTITAN flex;
o Коллекторы отопления Rehau на 3, 5, 7 и 9 отводов;
o Шкафы коллекторные Valtec, встраиваемые и пристраиваемые;
o Теплоизоляция трубопроводов Энергофлекс Супер, толщиной 9мм.
Система полотенцесушителей.
Предусмотрены электрические полотенцесушители, теплоотдача которых учтена в теплотехническом расчете.
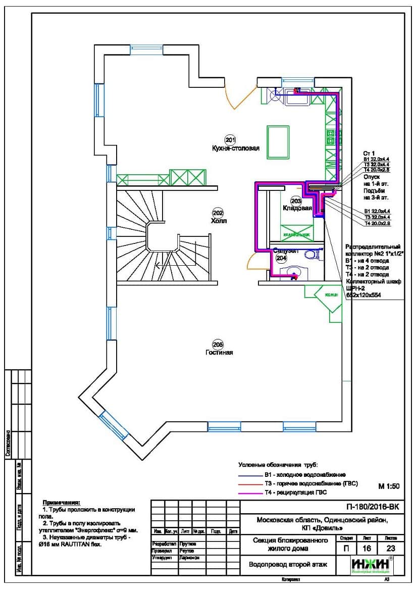
Внутренний водопровод.
o Схема внутреннего водоснабжения – коллекторная, с рециркуляцией горячей воды у потребителей;
o Трубопроводы системы водоснабжения – сшитый полиэтилен Rehau RAUTITAN flex;
o Коллекторы водопровода – сборные, Valtec VTc.560.NE;
o Теплоизоляция трубопроводов Энергофлекс Супер, толщиной 9мм.
Внутренняя канализация.
o Предусмотрен безнапорный отвод стоков от санитарно-технических приборов;
o В гараже предусмотрено размещение 2-х канализационных трапов HL71G с подрамником и решеткой из чугуна (максимальная нагрузка 1,5 тонн);
o Трубопроводы канализации – раструбные SINIKON.



















