Выполненные проекты
Проект отопления дома в КП «Лосиный Остров»
![]() |
![]() |
![]() |
![]() |
![]() |
![]() |
Проект отопления, водоснабжения и канализации: выполнен 16.01.2017
Объект: загородный дом площадью 650 кв.м. в КП «Лосиный Остров» Московской области
Вариант отопления: «Комфортный+»
Стоимость проекта: 88 315 руб., с учетом скидки 15% за комплексный проект отопления и электрики (проект котельной – бесплатно)
Состав проекта:
1. Пояснительная записка. Общие данные
2. Теплотехнический расчет дома.
3. Тепломеханическая схема котельной с размещением оборудования.
4. Комплект чертежей радиаторного отопления дома.
5. Комплект чертежей автоматики отопления.
6. Комплект чертежей водяного теплого пола дома.
7. Комплект чертежей внутреннего водопровода и канализации.
8. Схема системы канализации (аксонометрия).
9. Спецификация материалов и оборудования.
Объем проекта: 52 листа.
Основные проектные решения, в соответствие с заданием Заказчика.
Индивидуальная котельная.
o Использован каскад из 2-х настенных газовых конденсационных котлов Vaillant ecoTEC, мощностью 64 кВт каждый;
o Контуры котельной – отопление 1 и 2 этажей дома, теплоснабжение бани (резерв), водяной теплый пол дома и горячее водоснабжение (бойлер);
o Приготовление горячей воды при помощи бойлера Vaillant uniSTOR, объемом 400 литров;
o Расширительные баки отопления и водоснабжения Reflex;
o Насосное оборудование Grundfos;
o Трубы дымоходные Vaillant, базовый набор для подключения двух аппаратов к дымоходу Ø130 мм;
o Два распределительных коллектора с насосно-смесительными группами Meibes и гидравлическими стрелками;
o Подпитка отопления – ручная;
o Автоматика котельной – Vaillant calorMATIC 630/3 с дополнительным смесительным модулем VR 60 и блоком дистанционного управления котлом GSM-climate ZONT H-1V.
Автоматизация (вариант «Комфортный+».
o Автоматическое регулирование отопления по наружной температуре (погодное регулирование) и температуре в помещении;
o Автоматическое поддержание заданной температуры в контурах отопления, теплого пола и горячего водоснабжения;
o Дистанционное управление работой котельной установки через Интернет;
o Зональное (по помещениям) дистанционное регулирование температуры отопления.
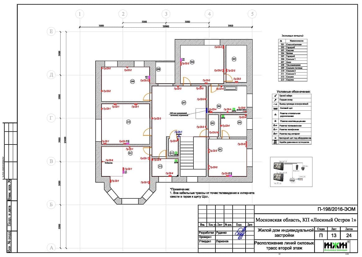
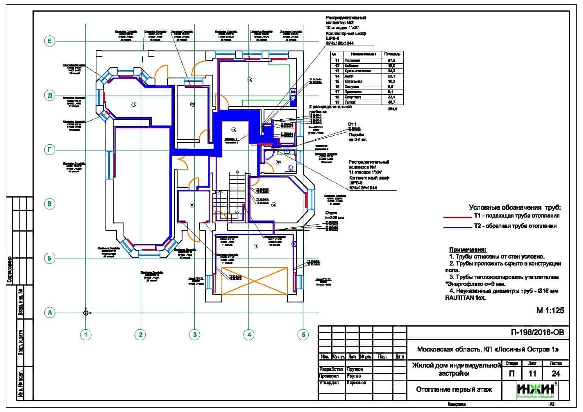
Система отопления дома.
o Выполнен теплотехнический расчет отопления с подбором приборов отопления - стальных трубчатых радиаторов Zehnder Charleston Completto и панельных Kermi с нижним подключением (в гараже);
o Схема радиаторного отопления двухтрубная, коллекторно-лучевая, с принудительной циркуляцией теплоносителя;
o Температурный график отопления 80/60°С;
o Трубопроводы отопления – сшитый полиэтилен Rehau RAUTITAN flex;
o Коллекторы отопления Rehau на 6, 7, 10 и 11 отводов;
o Шкафы коллекторные Valtec, встраиваемые и пристраиваемые;
o Теплоизоляция трубопроводов Энергофлекс Супер, толщиной 9мм;
o Предусмотрена система дистанционного зонального управления отоплением при помощи электронных комнатных термостатов «Теплолюкс» MCS 350 со встроенным Wi-Fi модулем.
Система теплых полов.
o Водяной теплый пол в доме спроектирован на площади 325 м.кв., 19 петель;
o Теплоснабжение теплого пола запроектировано отдельным контуром котельной;
o Трубопроводы теплого пола - сшитый полиэтилен Rehau RAUTHERM S;
o Использованы коллекторные группы Rehau HKV с расходомерами на 7 и 12 отводов;
o Основание теплого пола – маты из ламинированного пенополистирола «Экопол» EPS2102 .
Регулирование температуры теплого пола – общее, контуром котельной.
Внутренний водопровод.
o Схема внутреннего водоснабжения – коллекторная, с рециркуляцией горячей воды через полотенцесушители;
o Коллекторы водопровода – Valtec, сборные, с запорными вентилями;
o Трубопроводы системы водоснабжения – сшитый полиэтилен Rehau RAUTITAN flex;
o Теплоизоляция трубопроводов Энергофлекс Супер, толщиной 9мм;
o Для летнего водопровода предусмотрен наружный кран Meibes SEPP-Eis с защитой от замерзания (не требующий слива в зимний период).
Система защиты от протечек воды.
o Контроллер Аквасторож ЭКСПЕРТ PRO;
o Два электрокрана Аквасторож-25 версия ЭКСПЕРТ;
o Датчики протечки – 7 шт. (Эксперт и Классика);
o Предусмотрено сопряжение контроллера с GSM-модулем ZONT H-1V для передачи информации о срабатывании системы защиты от протечек на мобильный телефон владельца дома.
Внутренняя канализация.
o Предусмотрен безнапорный отвод стоков от санитарно-технических приборов;
o Трубопроводы канализации – раструбные SINIKON.




















