Выполненные проекты
Проект отопления, водоснабжения и канализации таунхауса площадью 345 м.кв.
![]() |
![]() |
![]() |
![]() |
![]() |
![]() |
Проект отопления, водоснабжения и канализации: выполнен 27.01.2017
Объект: таунхаус 345 м.кв., расположенный в КП «Маленькая Шотландия» Московской области
Вариант отопления: «Комфортный»
Стоимость проекта отопления: 59 990 руб. (проект котельной бесплатно).
Состав проекта:
1. Пояснительная записка. Общие данные по системам отопления, водоснабжения и канализации.
2. Тепломеханическая схема котельной с размещением оборудования.
3. Комплект рабочих чертежей радиаторного отопления таунхауса.
4. Комплект чертежей водяного теплого пола.
5. Комплект рабочих чертежей внутреннего водопровода и канализации таунхауса.
6. Тепловой расчет.
7. Спецификация оборудования.
Объем проекта: 43 листа.
Основные проектные решения, в соответствии с заданием Заказчика.
Котельная таунхауса.
o Котел настенный газовый Vaillant turboTEC plus мощностью 36 кВт;
o Контуры котельной – радиаторное отопление таунхауса, водяной теплый пол и горячее водоснабжение (бойлер);
o Приготовление горячей воды при помощи бойлера Vaillant uniSTOR, объемом 200 литров;
o Расширительные баки отопления и водоснабжения Reflex;
o Насосное оборудование Grundfos;
o Трубы дымоходные Vaillant, комплект для горизонтального прохода через стену;
o Распределительный коллектор Meibes с насосными группами «Поколение 8»;
o Подпитка отопления – автоматическая;
o Автоматика котельной – блок Vaillant calorMATIC 630/3.
Автоматизация (вариант «Комфортный»).
o Автоматическое регулирование отопления по наружной температуре (погодное регулирование);
o Автоматическое поддержание заданной температуры в контурах отопления, теплого пола и горячего водоснабжения.
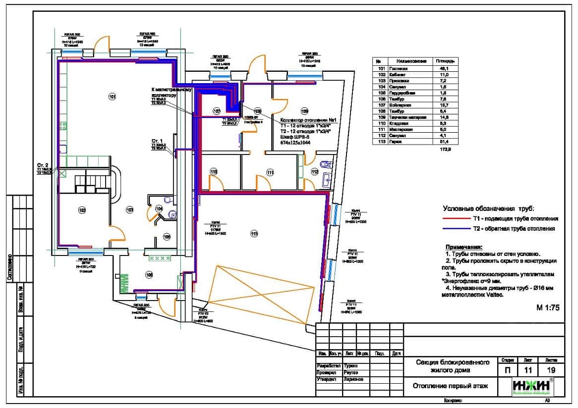
Система отопления таунхауса.
o Отопление радиаторное, использованы панельные стальные радиаторы Kermi, а также секционные биметаллические радиаторы Rifar Base Ventil с нижним подключением;
o Схема радиаторного отопления двухтрубная, коллекторно-лучевая, с принудительной циркуляцией теплоносителя;
o Температурный график отопления 80/60°С;
o Трубопроводы отопления – металлопластик Valtec;
o Распределительные коллекторы отопления – Valtec, на 11 и 12 отводов;
o Шкафы коллекторные Valtec, встраиваемые;
o Теплоизоляция трубопроводов Энергофлекс Супер, толщиной 9мм;
o Теплоноситель в системе отопления и теплых полов – подготовленная вода.
Водяной теплый пол.
o Водяной теплый пол в доме спроектирован на площади 167 м.кв., 14 петель;
o Теплоснабжение теплого пола запроектировано отдельным контуром котельной;
o Трубопроводы теплого пола - сшитый полиэтилен Valtec;
o Использованы коллекторные группы Valtec с расходомерами на 10 и 4 отвода;
o Основание теплого пола – маты из ламинированного пенополистирола Экопол EPS2102;
o Регулирование температуры теплого пола – общее, контуром котельной.
Внутренний водопровод.
o Схема внутреннего водоснабжения – коллекторная, с рециркуляцией горячей воды у потребителей;
o Коллекторы водопровода – Valtec VTc.560, сборные, с запорными вентилями;
o Трубопроводы системы водоснабжения – металлопластик Valtec;
o Для летнего водопровода предусмотрен наружный кран Meibes SEPP-Eis с защитой от замерзания;
o Теплоизоляция трубопроводов Энергофлекс Супер, толщиной 9мм.
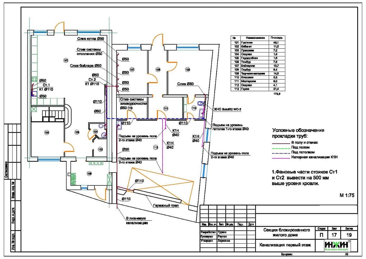
Внутренняя канализация.
o Предусмотрен комбинированный отвод стоков от санитарно-технических приборов;
o Трубопроводы канализации – раструбные SINIKON;
o Предусмотрен трап гаражный HL;
o Напорный участок канализации реализован при помощи 4-х канализационно-насосных станций Grundfos Sololift2 WC-3 и Sololift2 D-2;
o Теплоизоляция трубопроводов Энергофлекс Супер, толщиной 13мм.
Заказать проект отопления, водоснабжения таунхауса в нашей компании.



















