Выполненные проекты
Проект отопления, водоснабжения и канализации дома площадью 181 м.кв. в КП «Каринское»
Проект системы отопления, водоснабжения и канализации: выполнен 15.02.2017
Объект: двухэтажный дом площадью 181 м.кв., расположенный в КП «Каринское» Одинцовского района Московской области
Вариант отопления: «Комфортный+»
Стоимость проекта: 25 797 руб. со скидкой 15% за комплексный проект отопления и электрики (проект котельной бесплатно).
Состав проекта:
1. Пояснительная записка проекта. Общие данные по системам отопления, водоснабжения и канализации.
2. Тепломеханическая схема котельной с размещением оборудования в помещении.
3. Комплект поэтажных чертежей радиаторного отопления частного дома.
4. Комплект чертежей водяного теплого пола.
5. Комплект чертежей внутреннего водопровода и канализации.
6. Теплотехнический расчет дома.
7. Спецификация материалов и оборудования по разделам проекта.
Объем проекта: 39 листов.
Решения, принятые в проекте, в соответствии с заданием на проектирование систем отопления, водоснабжения и канализации.
Котельная частного дома.
o Котел газовый настенный Protherm Pantera 25 KOO мощностью 25 кВт, в наличии на объекте;
o Контуры теплоснабжения котельной – радиаторное отопление дома, водяной теплый пол и горячее водоснабжение (внешний бойлер);
o Для приготовления горячей воды предусмотрен накопительный бойлер Vaillant uniSTOR, объемом 200 литров;
o Расширительный бак водоснабжения Reflex, бак отопления встроен в котел;
o Насосное оборудование Grundfos, использованы энергоэффективные насосы Alpha2 L;
o Дымоудаление естественное, трубы дымоходные Rosinox, утепленные (ТЕРМО), кислотостойкие, из полированной нержавеющей стали;
o В качестве распределительного коллектора использован компактный насосно-смесительный модуль Meibes Kombimix с опциональным контуром загрузки бойлера;
o Предусмотрена ручная подпитка отопления;
o Автоматика котельной – блок Vaillant calorMATIC 630/3 с дополнительным модулем дистанционного контроля GSM-climate.
Автоматизация (вариант «Комфортный+»).
o Автоматическое регулирование отопления по наружной температуре (погодное регулирование);
o Автоматическое поддержание заданной температуры в контурах отопления, теплого пола и горячего водоснабжения;
o Дистанционный контроль работы котла посредством GSM-связи.
o Дистанционное (на мобильный телефон) оповещение об отключении электричества и протечке воды.
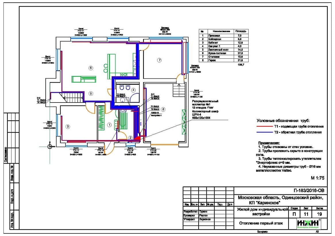
Система отопления частного дома.
o Выполнен теплотехнический расчет отопления, с учетом теплопотерь через ограждающие конструкции, теплоотдачи отопительных приборов, теплого пола, полотенцесушителей (в санузлах) и оборудования в котельной;
o Подобраны приборы для системы отопления: стальные панельные радиаторы Kermi, напольные конвекторы Kermi KKV а также встраиваемые в пол конвекторы Varmann Ntherm (естественная конвекция);
o Схема радиаторного отопления двухтрубная, коллекторно-лучевая;
o Температурный график системы отопления 80/60°С;
o Трубы отопления из металлопластика Valtec;
o Коллекторы отопления – Valtec, на 8 и 12 отводов, по одному на каждый этаж;
o Шкафы коллекторные Valtec, встраиваемый и пристраиваемый;
o Теплоизоляция трубопроводов отопления Энергофлекс, толщиной 9мм;
o Теплоноситель в системе отопления и теплых полов – подготовленная вода.
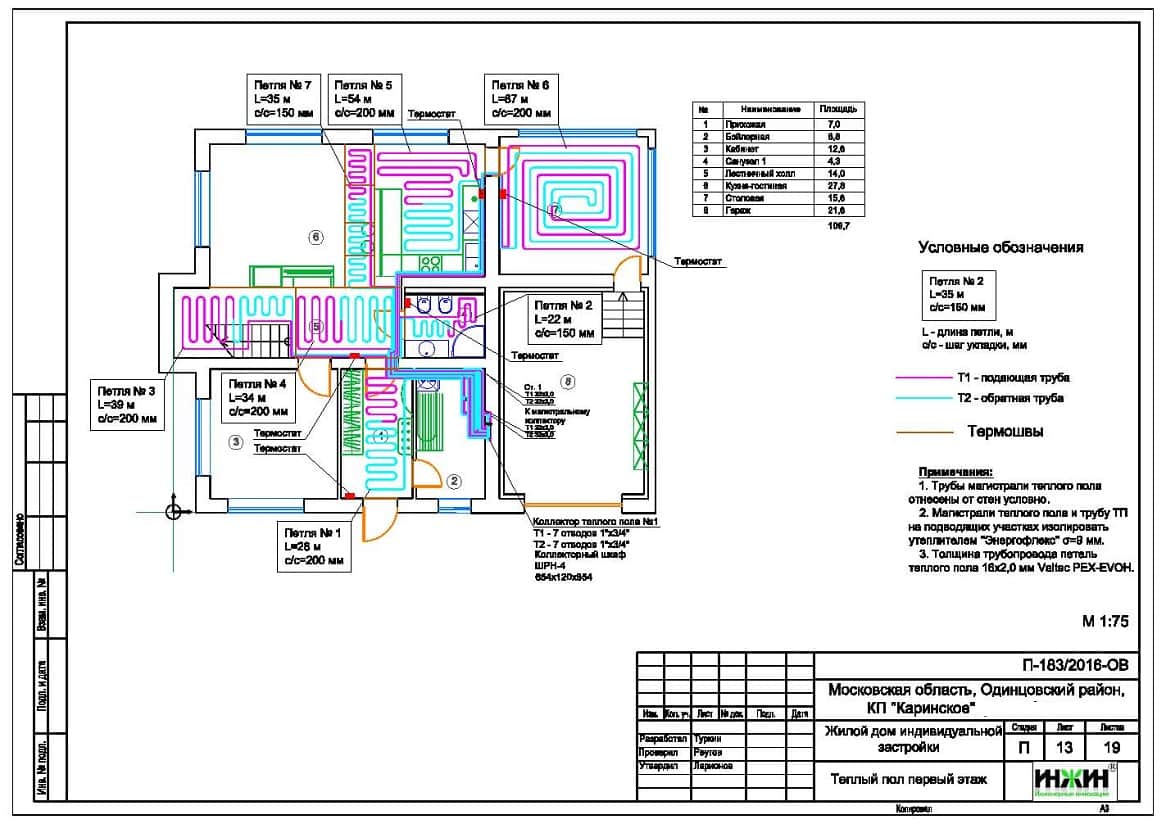
Водяной теплый пол.
o Водяной теплый пол в доме предусмотрен на площади 87 м.кв., 10 петель;
o Предусмотрен отдельный контур теплоснабжения водяного теплого пола;
o Трубопроводы теплого пола - сшитый полиэтилен Valtec PEX-EVON;
o Коллекторные группы Valtec с расходомерами на 3 и 7 отводов;
o Основание теплого пола – маты из ламинированного пенополистирола Экопол EPS2102;
o Регулирование температуры теплого пола – по помещениям, с использованием комнатных термостатов Valtec VT.AC709 и электротермических сервоприводов.
o Количество зон регулирования теплого пола – 7.
Внутренний водопровод.
o Схема внутреннего водопровода – коллекторная, с рециркуляцией горячей воды через проходные водорозетки;
o Коллекторы водопровода – сборные, Valtec VTc.560, с запорными вентилями;
o Трубы системы водоснабжения – из металлопластика Valtec;
o Для полива участка предусмотрен наружный кран Meibes SEPP-Eis с защитой от замерзания;
o Теплоизоляция трубопроводов Энергофлекс, толщиной 9мм.
Система защиты от протечки воды.
o Контроллер системы - Аквасторож ЭКСПЕРТ PRO;
o Отключение подачи воды предусмотрено при помощи электрокранов Аквасторож-25 версия ЭКСПЕРТ;
o В санузлах и кухне размещаются датчики Аквасторож ЭКСПЕРТ.
o Предусмотрена возможность дистанционного получения сигнала о протечке при помощи модуля GSM.
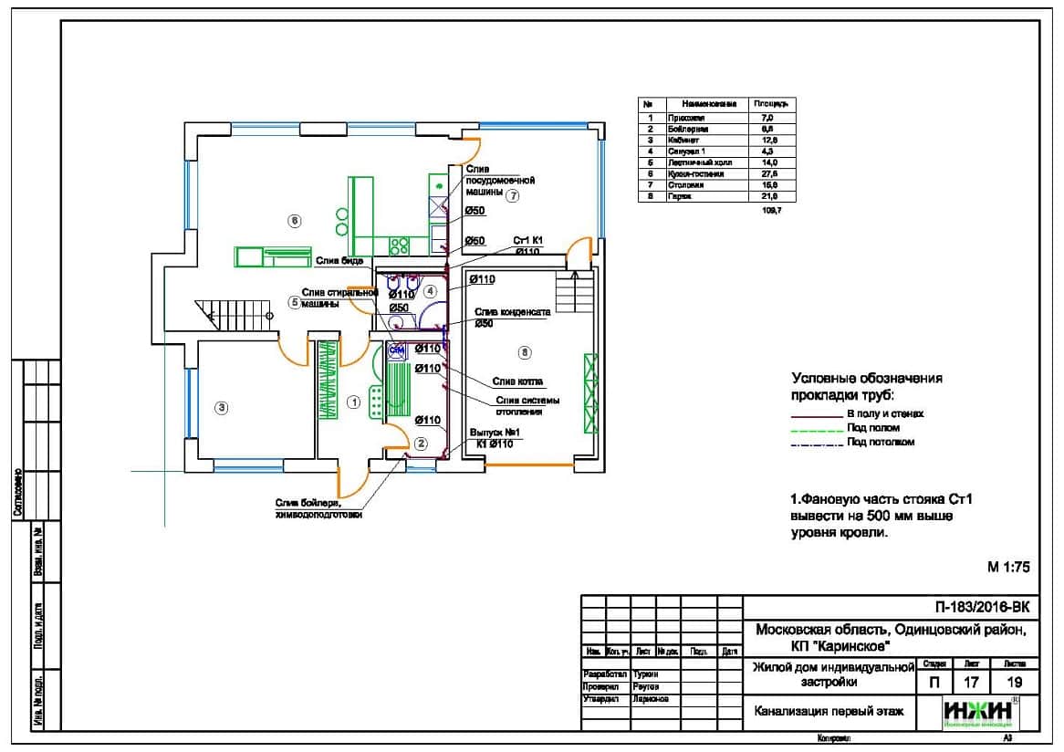
Система канализации.
o Предусмотрен безнапорный отвод стоков от санитарно-технических приборов;
o Теплоизоляция трубопроводов Энергофлекс, толщиной 13мм.















По этому проекту нашими специалистами выполнен монтаж котельной, отопления, водопровода и канализации