Выполненные проекты
Проект электрики дома площадью 181 м.кв. в Одинцовском районе Московской области
Проект системы электроснабжения и освещения: выполнен 15.02.2017
Объект: двухэтажный загородный дом площадью 181 м.кв., расположенный в Одинцовском районе Московской области, КП «Каринское»
Стоимость проекта электрики: 16 924 руб. со скидкой 15% за комплексный проект электрики и отопления (проект слаботочной кабельной сети – бесплатно).
Состав проекта:
1. Пояснительная записка. Общие данные
2. Однолинейные схемы вводного распределительного устройства и поэтажных распределительных щитов.
3. Чертежи кабельных трасс силовых электрических сетей.
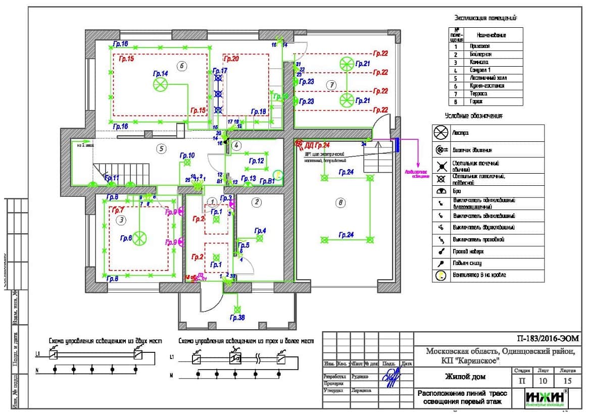
4. Чертежи групповых осветительных сетей.
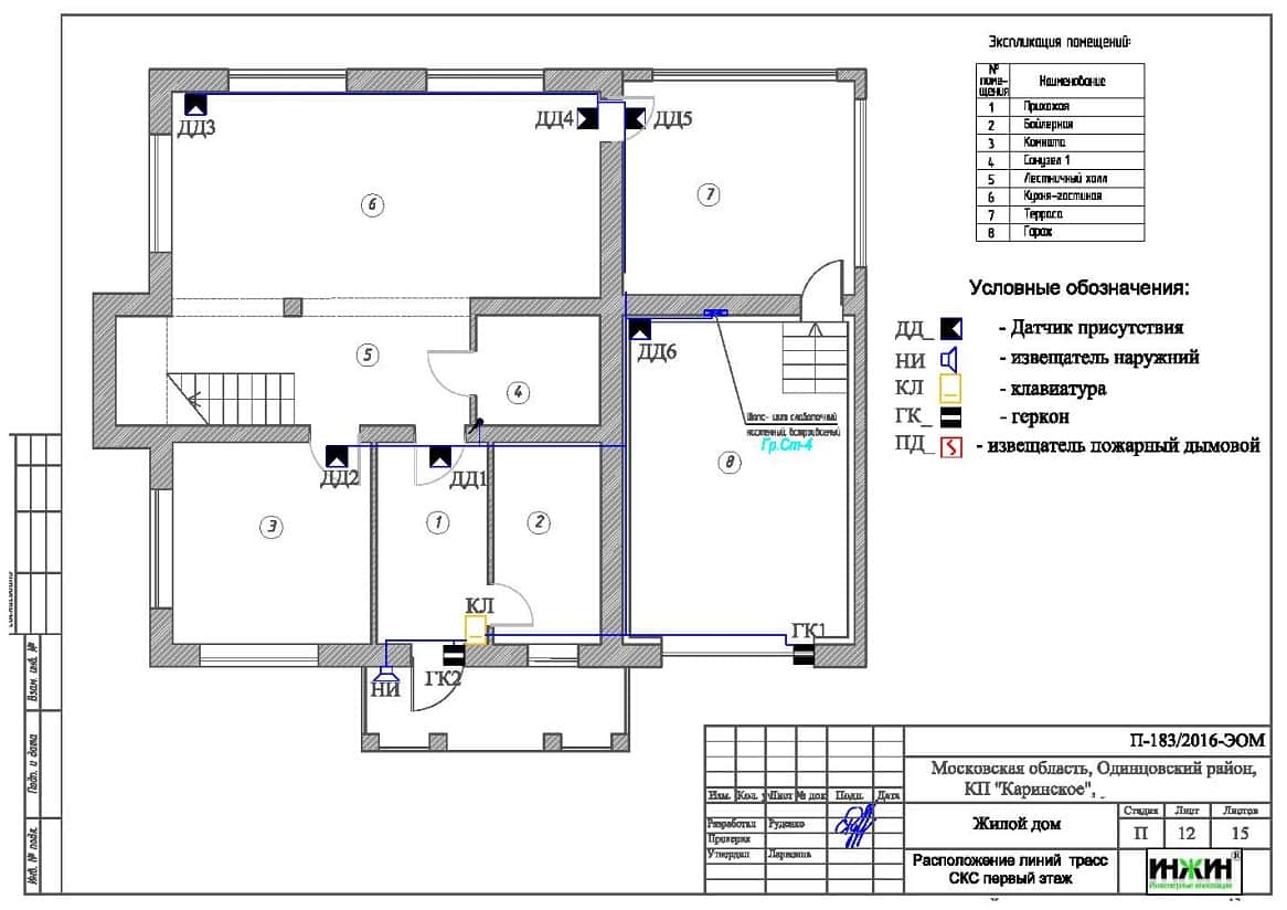
5. Чертежи линий слаботочных кабельных сетей.
6. Спецификация материалов и оборудования.
Объем проекта: 15 листов.
Технические решения, принятые в проекте, в соответствии с заданием на проектирование электрики.
Распределительные электрические щиты.
o Проектом предусмотрено 2 распределительных щита, размещенных на каждом этаже и оснащенных 40 автоматами;
o Автоматические выключатели, дифференциальные автоматы и УЗО в щитах - Hager;
o Щитовое оборудование размещено во встроенных корпусах Hager.
Линейная кабельная сеть (электропроводка).
o Электропроводка предусмотрена с использованием кабелей ВВГ нг -LS с медными жилами в ПВХ-оболочке (не поддерживает горение);
o Общая протяженность линий электроснабжения и освещения – 1 150 метров;
o Электропроводка предусмотрена скрытым способом, в защитной гофрированной ПВХ-трубе и металлорукаве в виниловой изоляции (в деревянных конструкциях);
o Запроектировано 142 точки подключения розеток и выключателей освещения;
o Для системы телевидения предусмотрены кабельные трассы с использованием кабеля Cavel SAT 703, в количестве 50 метров;
o Линии локальной сети предусмотрены с использованием провода UTP 4х2х0,51cat 5e, 305 метров.
Аварийное электропитание.
Источником аварийное питания по проекту является инвертор Cyber Power CPS 3500PRO с блоком из 8-ми аккумуляторных батарей.
Заказать проект электрики дома со скидкой.
Для этого дома выполнен проект системы отопления, котельной, водоснабжения и канализации.

По этому проекту выполнен монтаж электрики.













