Выполненные проекты
Проект отопления, водоснабжения и канализации дома с гаражом общей площадью 465 м.кв. в Рязанской области
![]() |
![]() |
![]() |
![]() |
![]() |
Объект: двухэтажный дом с отдельно стоящим гаражом общей площадью 465 м.кв., расположенный в с.Константиново Рыбновского района Рязанской области
Вариант отопления: «Комфортный»
Стоимость проекта отопления, водоснабжения, канализации: 72 950 руб., проект котельной бесплатно.
Проект выполнен: 30.03.2017
Состав проекта отопления, водоснабжения, канализации и котельной:
1. Пояснительная записка проекта. Общие данные по системам отопления, водоснабжения и канализации.
2. Тепломеханическая схема котельной с размещением оборудования в помещении.
3. Схема теплоснабжения строений (водо- и теплотрассы на участке).
4. Комплект поэтажных чертежей радиаторного отопления частного дома.
5. Комплект чертежей водяного теплого пола дома.
6. Комплект чертежей внутреннего водопровода и канализации дома.
7. Теплотехнический расчет дома.
8. Спецификация материалов и оборудования по разделам проекта дома.
9. Комплект поэтажных чертежей радиаторного отопления гаража.
10. Комплект чертежей водяного теплого пола гаража.
11. Комплект чертежей внутреннего водопровода и канализации гаража.
12. Теплотехнический расчет гаража.
13. Спецификация материалов и оборудования гаража.
Объем проекта котельной, отопления, водоснабжения и канализации: 71 лист.
Решения, принятые в проекте, в соответствии с заданием на проектирование систем отопления, водоснабжения и канализации.
Котельная частного дома и гаража.
o Размещена на 1 этаже гаража, в специально оборудованном помещении;
o Котел газовый напольный с чугунным теплообменником и сменными горелками Buderus Logano G215WS мощностью 52 кВт;
o Горелки Buderus – газовая Logatop GE 1.65HN-0023, жидкотопливная Logatop DE 1.2H-0052;
o Бак топливный (для дизельного топлива) Aquatech Quadro F 1000 B, объемом 1 000 литров, с топливным фильтром и топливопроводом;
o Контуры теплоснабжения котельной (5 шт.) – радиаторное отопление дома, водяной теплый пол дома, отопление гаража, водяной теплый пол гаража и горячее водоснабжение (внешний бойлер);
o Для приготовления горячей воды предусмотрен накопительный бойлер Buderus Logalux SU400/5, объемом 400 литров;
o Расширительные баки отопления и водоснабжения Reflex, 50 и33 литра соответственно;
o Насосное оборудование Grundfos, использованы энергоэффективные насосы Alpha2 L;
o Дымоудаление естественное, трубы дымоходные Rosinox, однослойные (МОНО), кислотостойкие, из полированной нержавеющей стали, подсоединение к существующему дымоходу;
o Распределительный коллектор котельной и насосные группы Meibes, Поколение 8;
o Предусмотрена автоматическая подпитка отопления (клапан подпиточный Watts ALOMD);
o Автоматика котельной – блок Buderus Logamatic 4211 с двумя дополнительными модулями FM442 и устройством дистанционного контроля ZONT H-1 V.
Автоматизация (вариант «Комфортный»).
o Автоматическое регулирование отопления по наружной температуре (погодное регулирование);
o Автоматическое поддержание заданной температуры в контурах отопления, теплого пола и горячего водоснабжения;
o Дистанционный контроль работы котла посредством GSM-связи.
o Дистанционное (на мобильный телефон) оповещение об отключении котла и электричества.
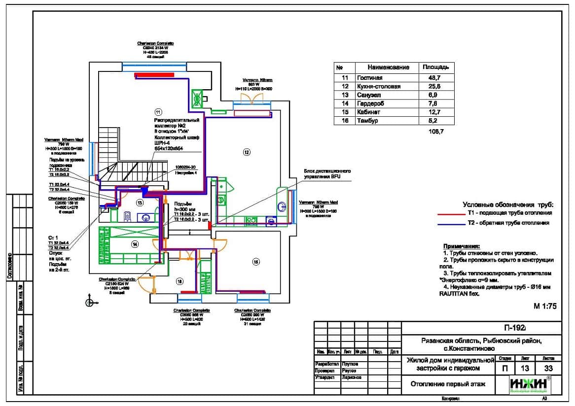
Система отопления частного дома.
o Выполнен теплотехнический расчет отопления, с учетом теплопотерь через ограждающие конструкции, теплоотдачи отопительных приборов, теплого пола и полотенцесушителей (в санузлах);
o Подобраны приборы для системы отопления: стальные трубчатые радиаторы Zehnder Completto и встраиваемые в пол конвекторы Varmann Ntherm с естественной конвекцией;
o Схема радиаторного отопления двухтрубная, коллекторно-лучевая;
o Температурный график системы отопления 80/60°С;
o Трубы отопления из сшитого полиэтилена Rehau;
o Коллекторы отопления – Rehau, на 7 (2 шт.) и 8 отводов;
o Шкафы коллекторные Valtec, встраиваемые;
o Теплоизоляция трубопроводов отопления Энергофлекс, толщиной 9мм;
o Теплоноситель в системе отопления и теплых полов – подготовленная вода.
Система отопления двухэтажного гаража.
o Выполнен теплотехнический расчет отопления гаража, с учетом теплопотерь через ограждающие конструкции, теплоотдачи отопительных приборов, теплого пола и оборудования в котельной;
o Подобраны приборы для системы отопления: стальные панельные радиаторы Kermi и встраиваемый в пол конвектор Varmann Ntherm (естественная конвекция);
o Схема радиаторного отопления двухтрубная, коллекторно-лучевая;
o Температурный график системы отопления 80/60°С;
o Трубы отопления из сшитого полиэтилена Rehau;
o Коллекторы отопления – Rehau, на 4 и 6 отводов, по одному на каждый этаж гаража;
o Шкафы коллекторные Valtec, пристраиваемые;
o Теплоизоляция трубопроводов отопления Энергофлекс, толщиной 9мм;
o Теплоноситель в системе отопления и теплых полов – подготовленная вода.
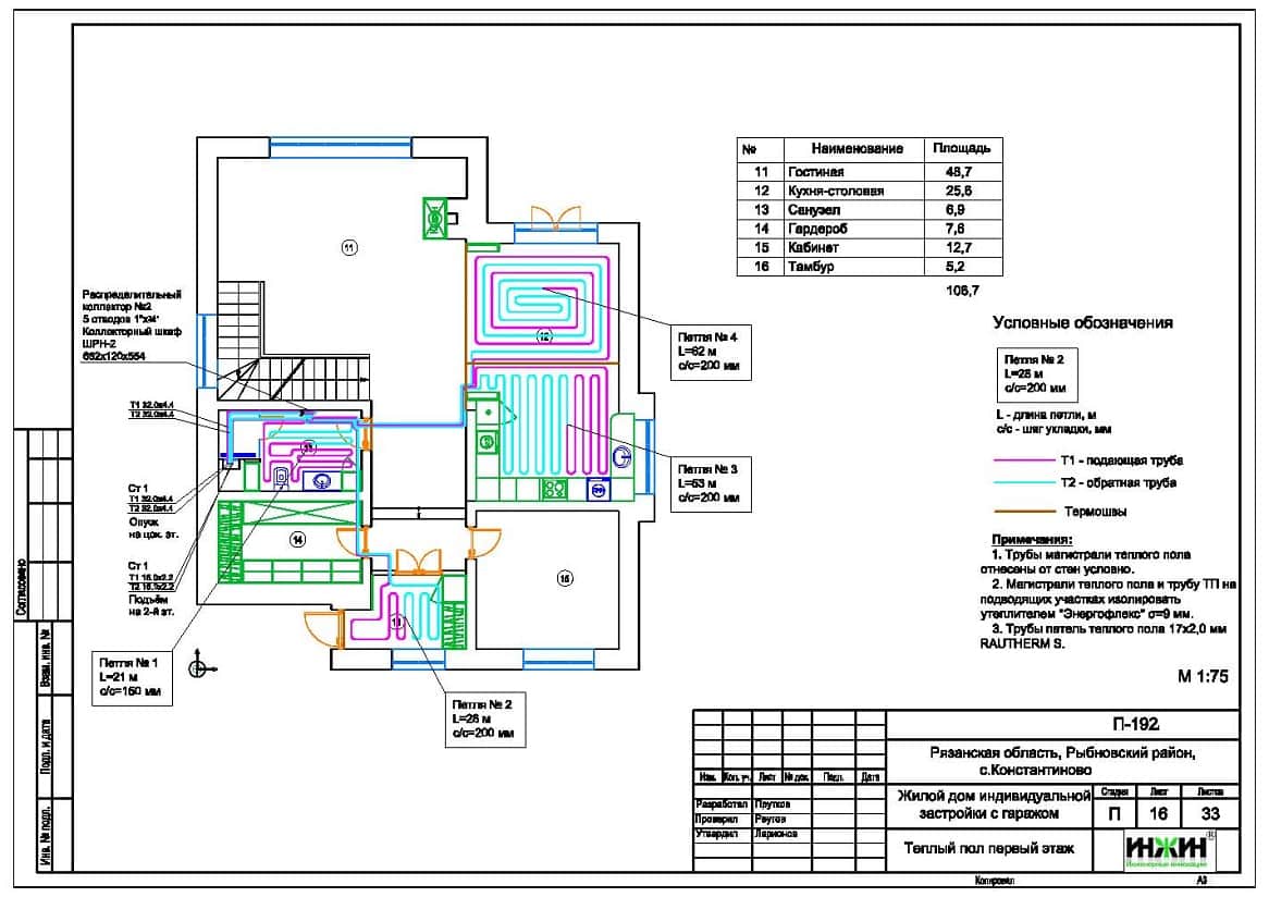
Водяной теплый пол дома и гаража.
o Водяной теплый пол в доме предусмотрен на площади 85 м.кв., 7 петель, в гараже – на площади 25 м.кв., 2 петли;
o Предусмотрено два отдельных контура теплоснабжения водяного теплого пола дома и гаража;
o Трубопроводы теплого пола - сшитый полиэтилен Rehau RAUTHERM S;
o Коллекторные группы Rehau с расходомерами на 2, 2 и 5 отводов;
o Основание теплого пола – маты из ламинированного пенополистирола Экопол EPS2102;
o Регулирование температуры теплого пола – общее, автоматикой котельной.
Внутренний водопровод дома и гаража.
o Схема внутреннего водопровода – коллекторная, с рециркуляцией горячей воды через проходные водорозетки;
o Коллекторы водопровода – сборные, Valtec VTc.560, с запорными вентилями;
o Трубы системы водоснабжения – из сшитого полиэтилена Rehau;
o Теплоизоляция трубопроводов Энергофлекс, толщиной 9мм.
Система канализации дома и гаража.
o В гараже предусмотрен безнапорный отвод стоков от санитарно-технических приборов;
o В доме система канализации комбинированная, безнапорная с напорным участком;
o Предусмотрены две канализационно-насосные станции Grundfos, размещенные в цокольном этаже дома;
o Теплоизоляция трубопроводов Энергофлекс, толщиной 13мм.



















