Выполненные проекты
Проект электрики дома площадью 169 м.кв. в Московской области
![]() |
![]() |
![]() |
![]() ![]() |
![]() |
Объект: трехэтажный частный дом площадью 169 м.кв., расположенный в КП «Белояр» Дмитровского района Московской области
Стоимость проекта электрики: 13 646 руб. со скидкой 15% за комплексный проект электрики и отопления (проект слаботочной кабельной сети – бесплатно).
Проект электрики выполнен: 20.04.2017
Состав проекта электрики:
1. Пояснительная записка. Общие данные
2. Однолинейные схемы вводного распределительного устройства и распределительного щита.
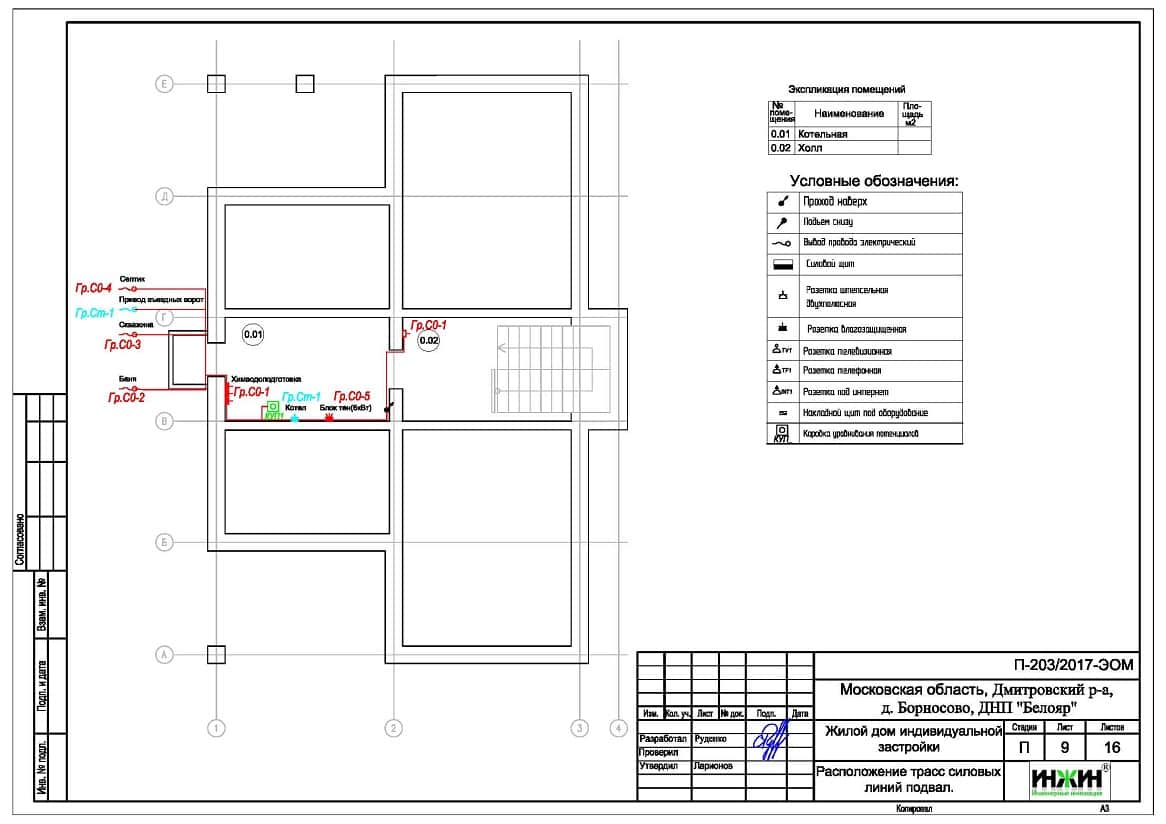
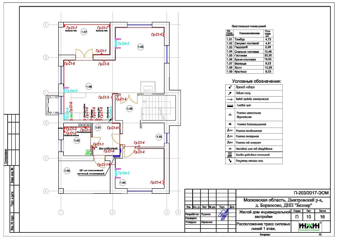
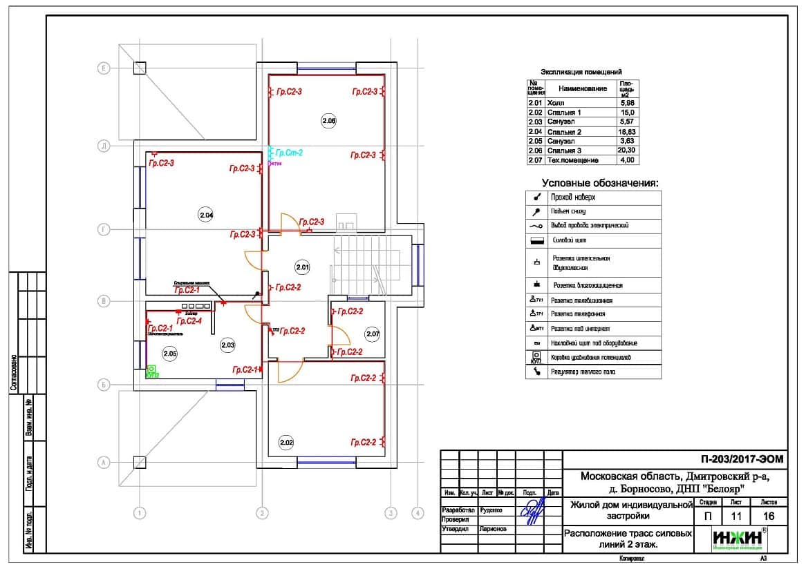
3. Чертежи кабельных трасс силовых электрических сетей.
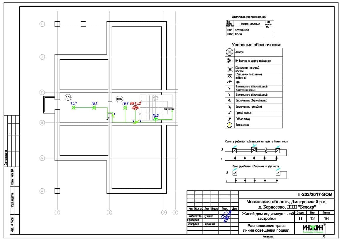
4. Чертежи групповых осветительных сетей.
5. Чертежи линий слаботочных кабельных сетей.
6. Спецификация материалов и оборудования.
Объем проекта: 16 листов.
Технические решения, принятые в проекте электрики.
Распределительные электрические щиты.
o Проектом предусмотрен распределительный щит, размещенный в тамбуре и оснащенный 30 автоматами;
o Автоматические выключатели, дифференциальные автоматы и УЗО в щитах - АВВ;
o Щитовое оборудование размещено во встроенном корпусе АВВ.
Силовая и слаботочная кабельная сеть (электропроводка).
o Электропроводка предусмотрена с использованием кабелей ВВГ нг -LS с медными жилами в ПВХ-оболочке (не поддерживающих горение);
o Общая протяженность линий электроснабжения и освещения – 1 355 метров;
o Электропроводка предусмотрена скрытым способом, в защитной гофрированной ПВХ-трубе и металлорукаве в виниловой изоляции (в деревянных конструкциях);
o Запроектировано 116 точек подключения розеток и выключателей освещения;
o Для системы телевидения предусмотрены кабельные трассы с использованием кабеля Cavel SAT 703, в количестве 150 метров;
o Линии локальной сети предусмотрены с использованием провода UTP 4х2х0,51cat 5e, 100 метров.
Резервное электропитание.
Источником резервного питания по проекту является мобильный бензиновый генератор мощностью 3,5 кВт.
Заземление.
Предусмотрен контур заземления на базе комплекта Ezetek EZ 6.



















