Выполненные проекты
Проект отопления, водоснабжения и канализации дома площадью 135 м.кв. в Калужской области
![]() |
![]() |
|
|
![]() |
![]() |
![]() |
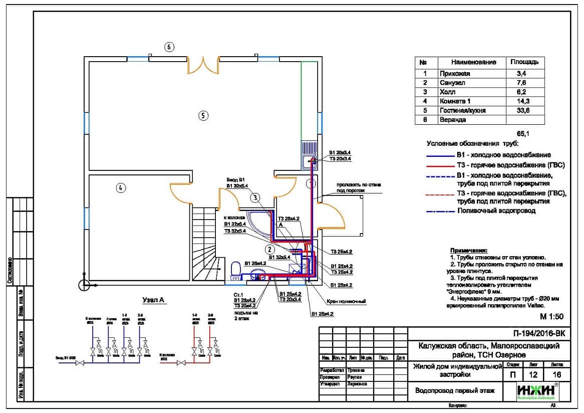
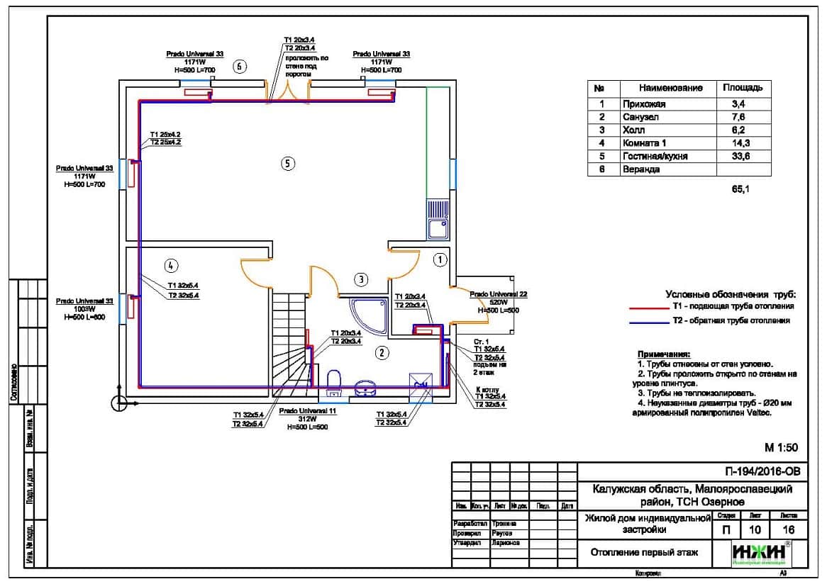
Объект: двухэтажный дом площадью 135 м.кв., расположенный в ТСН «Озерное» Малоярославецкого района Калужской области
Вариант отопления: «Базовый»
Стоимость проекта отопления, водоснабжения, канализации: 19 125 руб. со скидкой 15% за комплексный проект отопления и электрики (проект котельной бесплатно)
Проект выполнен: 10.05.2017
Состав проекта:
1 Пояснительная записка проекта. Общие данные по системам отопления, водоснабжения и канализации.
2. Тепломеханическая схема котельной с размещением оборудования в помещении.
3. Комплект поэтажных чертежей радиаторного отопления частного дома.
4. Комплект чертежей внутреннего водопровода и канализации.
5. Теплотехнический расчет дома (расчет отопления).
6. Спецификация материалов и оборудования по разделам проекта.
Объем проекта: 32 листа.
Решения, принятые в проекте, в соответствии с заданием на проектирование систем отопления, водоснабжения и канализации.
Котельная частного дома.
o Котел газовый настенный конденсационный Buderus Logamax plus мощностью 24 кВт (в наличии на объекте);
o Контуры теплоснабжения котельной – радиаторное отопление дома;
o Для приготовления горячей воды предусмотрен газовый проточный водонагреватель Bosch Term 4000S WTD;
o Расширительный бак отопления встроен в котел;
o Дымоудаление принудительное, трубы дымоходные Bosch, коаксиальные, вывод через стену;
o Предусмотрена ручная подпитка отопления;
o Автоматика котельной – встроена в котел.
Система отопления частного дома.
o Выполнен теплотехнический расчет отопления, с учетом теплопотерь через ограждающие конструкции, теплоотдачи отопительных приборов и электрического теплого пола;
o Подобраны приборы для системы отопления: стальные панельные радиаторы PRADO Universal;
o Схема радиаторного отопления двухтрубная, тройниковая;
o Температурный график системы отопления 80/60°С;
o Трубы отопления из армированного полипропилена Valtec;
o Прокладка трубопроводов предусмотрена открытым способом, без изоляции;
o Теплоноситель в системе отопления – антифриз «Теплый Дом».
Водяной теплый пол проектом не предусмотрен.
Водоснабжение дома.
o Схема внутреннего водопровода – тройниковая тупиковая, без рециркуляции горячей воды;
o Трубы системы водоснабжения – из армированного полипропилена Valtec;
o Теплоизоляция трубопроводов Энергофлекс, толщиной 9мм.
Система канализации.
o Предусмотрен безнапорный отвод стоков от санитарно-технических приборов помещений дома;
o Предусмотрена тепло- шумоизоляция трубопроводов утеплителем Энергофлекс, толщиной 13мм.



















