Выполненные проекты
Проект отопления, водоснабжения и канализации деревянного дома площадью 280 м.кв. в КП «Новорижские Ключи»
![]() |
![]() |
|
|
![]() |
![]() |
![]() |
Объект: деревянный дом площадью 280 м.кв., расположенный в КП «Новорижские Ключи» Московской области
Вариант отопления: «Комфортный»
Стоимость проекта: 41 956 руб. со скидкой 15% за комплексный проект отопления и электрики (проект котельной бесплатно).
Проект выполнен: 26.05.2017
Состав проекта:
1. Пояснительная записка проекта. Общие данные по системам отопления, водоснабжения и канализации.
2. Тепломеханическая схема котельной с размещением оборудования в помещении.
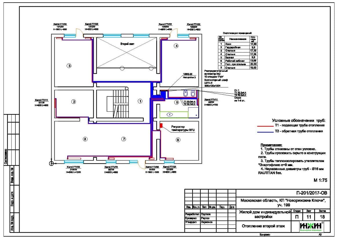
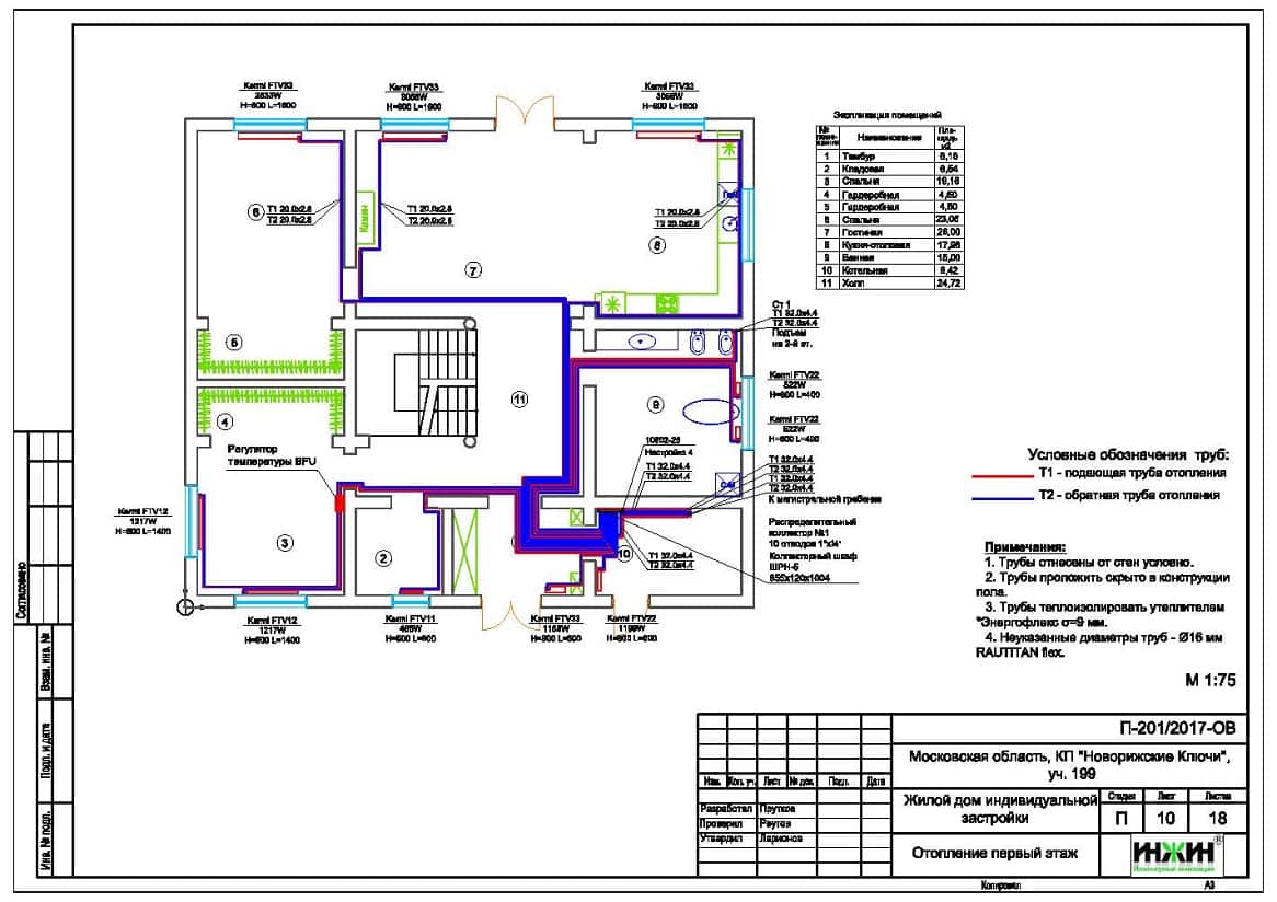
3. Комплект поэтажных чертежей радиаторного отопления.
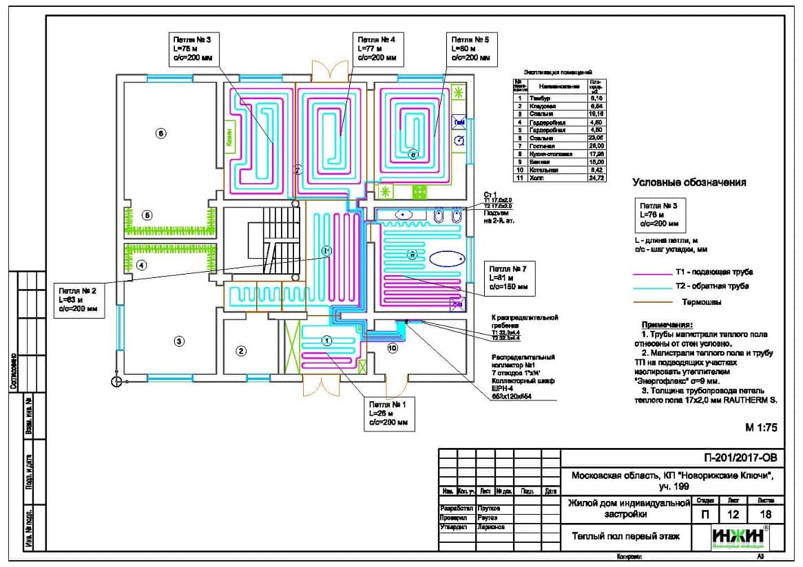
4. Комплект чертежей водяного теплого пола.
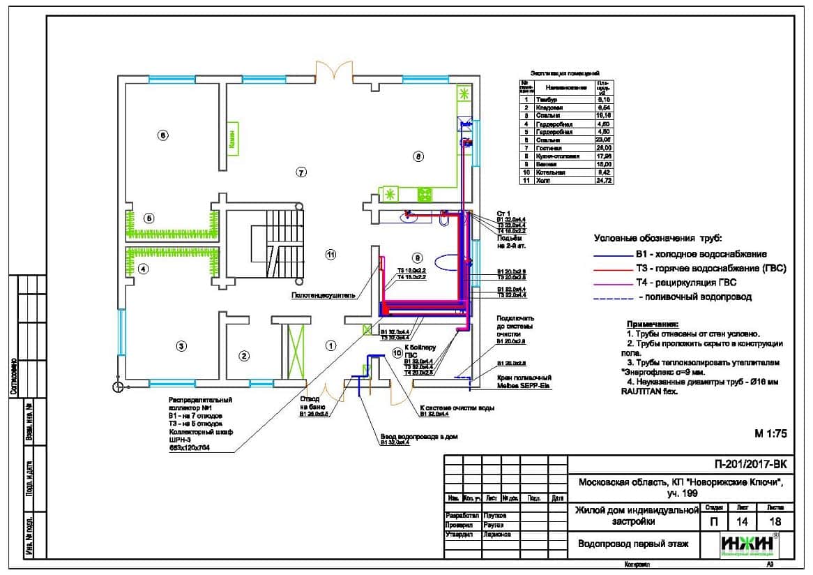
5. Комплект чертежей внутреннего водопровода и канализации дома.
6. Теплотехнический расчет дома (расчет отопления).
7. Спецификация материалов и оборудования по разделам проекта.
Объем проекта: 39 листов.
Технические решения которые приняты в проекте, в соответствии с заданием на проектирование систем отопления, водоснабжения и канализации.
Индивидуальная котельная (проект котельной бесплатно).
o Котел основной - газовый напольный Buderus Logano мощностью 44 кВт, с чугунным теплообменником;
o Котел резервный - электрический настенный Buderus Logamax мощностью 8 кВт;
o Контуры теплоснабжения котельной – радиаторное отопление 1 этажа дома, радиаторное отопление 2 этажа, водяной теплый пол и горячее водоснабжение (внешний бойлер);
o Для приготовления горячей воды предусмотрен накопительный бойлер Buderus Logalux, объемом 200 литров;
o Расширительные баки отопления и водоснабжения Reflex;
o Насосное оборудование Grundfos, применены энергоэффективные насосы Alpha2 L;
o Дымоудаление естественное, трубы дымоходные Rosinox, утепленные (ТЕРМО), кислотостойкие, диаметр 180мм;
o Распределительный коллектор котельной Meibes с насосными группами;
o Предусмотрена ручная подпитка отопления;
o Автоматика котельной – блок Buderus Logamatic 4211 с дополнительными функциональными модулями FM442 и двумя контроллерами дистанционного управления BFU (по одному на этаж).
Автоматизация отопления (вариант «Комфортный»).
o Автоматическое регулирование отопления по наружной температуре (погодное регулирование);
o Автоматическое поддержание заданной температуры в контурах отопления, теплого пола и горячего водоснабжения;
o Дистанционное управления контурами отопления этажей по температуре в помещении.
Система отопления дома.
o Выполнен теплотехнический расчет;
o Подобраны приборы для системы отопления - стальные панельные радиаторы Kermi с нижним подключением;
o Схема радиаторного отопления двухтрубная, коллекторно-лучевая;
o Температурный график системы отопления 80/60°С;
o Трубы отопления из сшитого полиэтилена Rehau;
o Коллекторы отопления – Rehau, на 10 отводов, по одному на каждый этаж;
o Шкафы коллекторные Valtec, пристраиваемые;
o Теплоизоляция трубопроводов отопления Энергофлекс, толщиной 9мм;
o Теплоноситель в системе отопления и теплых полов – антифриз Antifrogen L.
Водяной теплый пол.
o Водяной теплый пол в доме предусмотрен на площади 106 м.кв., 7 петель;
o Предусмотрен отдельный контур теплоснабжения водяного теплого пола;
o Трубопроводы теплого пола - сшитый полиэтилен Rehau RAUTHERM S;
o Коллекторная группа Rehau с расходомерами и отводами на 7 контуров;
o Основание теплого пола – маты из ламинированного пенополистирола Экопол EPS2102;
o Регулирование температуры теплого пола – общее, автоматикой котельной.
Водоснабжение дома.
o Схема внутреннего водопровода – коллекторная, с рециркуляцией горячей воды через полотенцесушители;
o Коллекторы водопровода – сборные, Valtec VTc.560, с запорными вентилями;
o Трубы системы водоснабжения – из сшитого полиэтилена Rehau;
o Для полива участка предусмотрен наружный кран Meibes SEPP-Eis с защитой от замерзания;
o Теплоизоляция трубопроводов Энергофлекс, толщиной 9мм.
Система канализации.
o Предусмотрен безнапорный отвод стоков от санитарно-технических приборов;
o Трубопроводы канализации – раструбные, производства Синикон;
o Теплоизоляция трубопроводов Энергофлекс, толщиной 13мм.



















