Выполненные проекты
Проект отопления дома 1 068 м.кв. с бассейном
Объект: частный дом площадью 1 060 м.кв., с бассейном, в Московской области, КП "Летова роща"
Стоимость проекта отопления: 90 780 руб.
Проект отопления выполнен: 12.01.2012
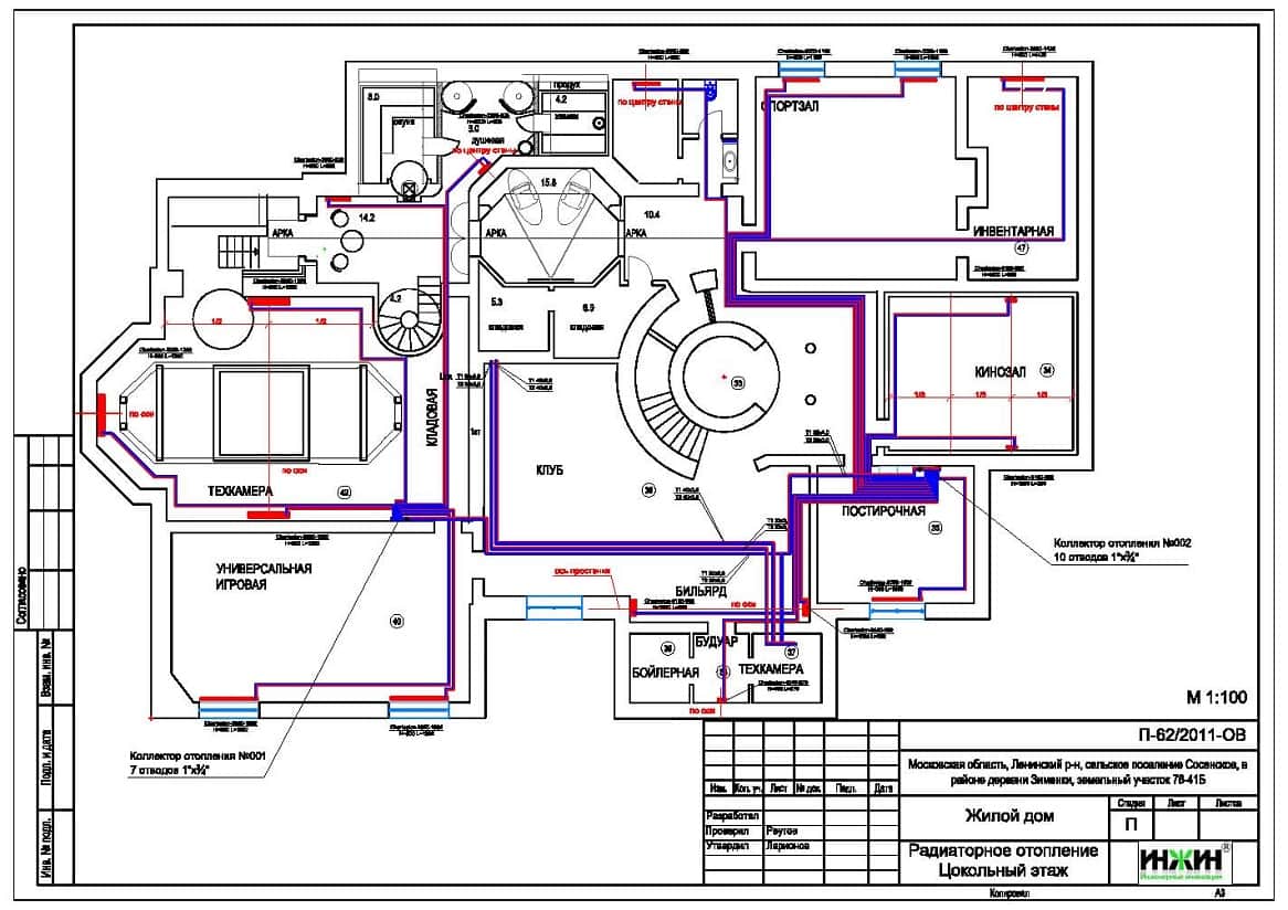
Состав проекта отопления и канализации дома с бассейном в КП "Летова Роща":
Теплотехнический расчет отопления дома с бассейном.
Комплект рабочих чертежей радиаторного отопления жилого дома с бассейном.
Комплект рабочих чертежей внутренней канализации дома.
Спецификация оборудования и материалов по отоплению и канализации дома с бассейном в КП "Летова Роща".
Объем проекта отопления: 44 листа.
Описание проекта отопления и канализации дома с бассейном в КП "Летова Роща".
Отопление дома с бассейном в КП "Летова Роща".
o Отопление дома и гаража на базе трубчатых радиаторов Zehnder (Германия) с подключением снизу из стены, встроенных в пол конвекторов Kampmann (в местах панорамного остекления);
o В помещении бассейна проектом предусмотрено использование конвекторов Kampmann с антикоррозионным опылением;
o Проектом предусмотрена возможность подключения воздуховодов приточной вентиляции к встроенным в пол конвекторам отопления в соответствие с проектом вентиляции бассейна и вентиляции помещений дома;
o Схема радиаторного отопления двухтрубная, коллекторно-лучевая с принудительной циркуляцией теплоносителя;
o Температурный график отопления 80/60° С;
o Магистральные и подводящие трубопроводы отопления – металлопластиковые трубы Oventrop (Германия).
Внутренняя канализация дома с бассейном в КП "Летова Роща" (проект канализации).
o Предусмотрен безнапорный отвод стоков от санитарно-технических приборов 1-го и 2-го этажей дома;
o Проектом предусмотрен отвод стоков цокольного этажа дома и бассейна напорным способом при помощи локальных канализационных напорных станций Grundfos;
o Трубопроводы канализации – полипропилен Политрон (Россия).
![]() |




















