Выполненные проекты
Проект отопления дома с баней, общей площадью 420 м.кв.
Объект: загородный дом с баней (отдельное строение) общей площадью 420 кв.м. в КП "Малиновка" Московской области
Вариант отопления: «Комфортный»
Стоимость проекта отопления: 47 800 руб. (проект котельных дома и бани - бесплатно)
Проект отопления выполнен: 22.02.2012
Состав проекта отопления дома с баней в КП "Малиновка":
1. Пояснительная записка, общие данные по отоплению, водоснабжению и канализации дома с баней в КП "Малиновка".
2. Теплотехнический расчет отопления дома.
3. Теплотехнический расчет отопления бани.
4. Тепломеханическая схема котельной дома с размещением оборудования.
5. Тепломеханическая схема котельной бани с размещением оборудования.
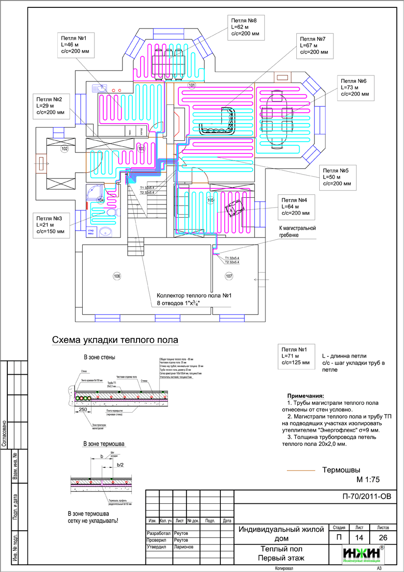
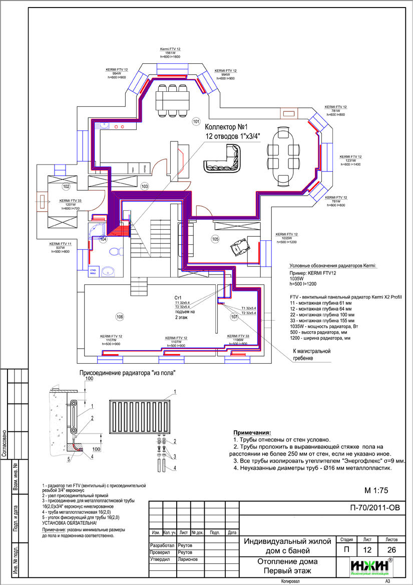
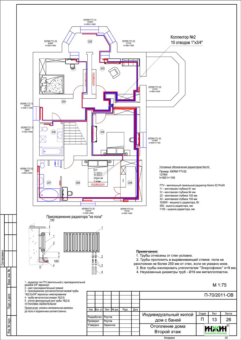
6. Комплект рабочих чертежей радиаторного отопления и теплого пола жилого дома и бани.
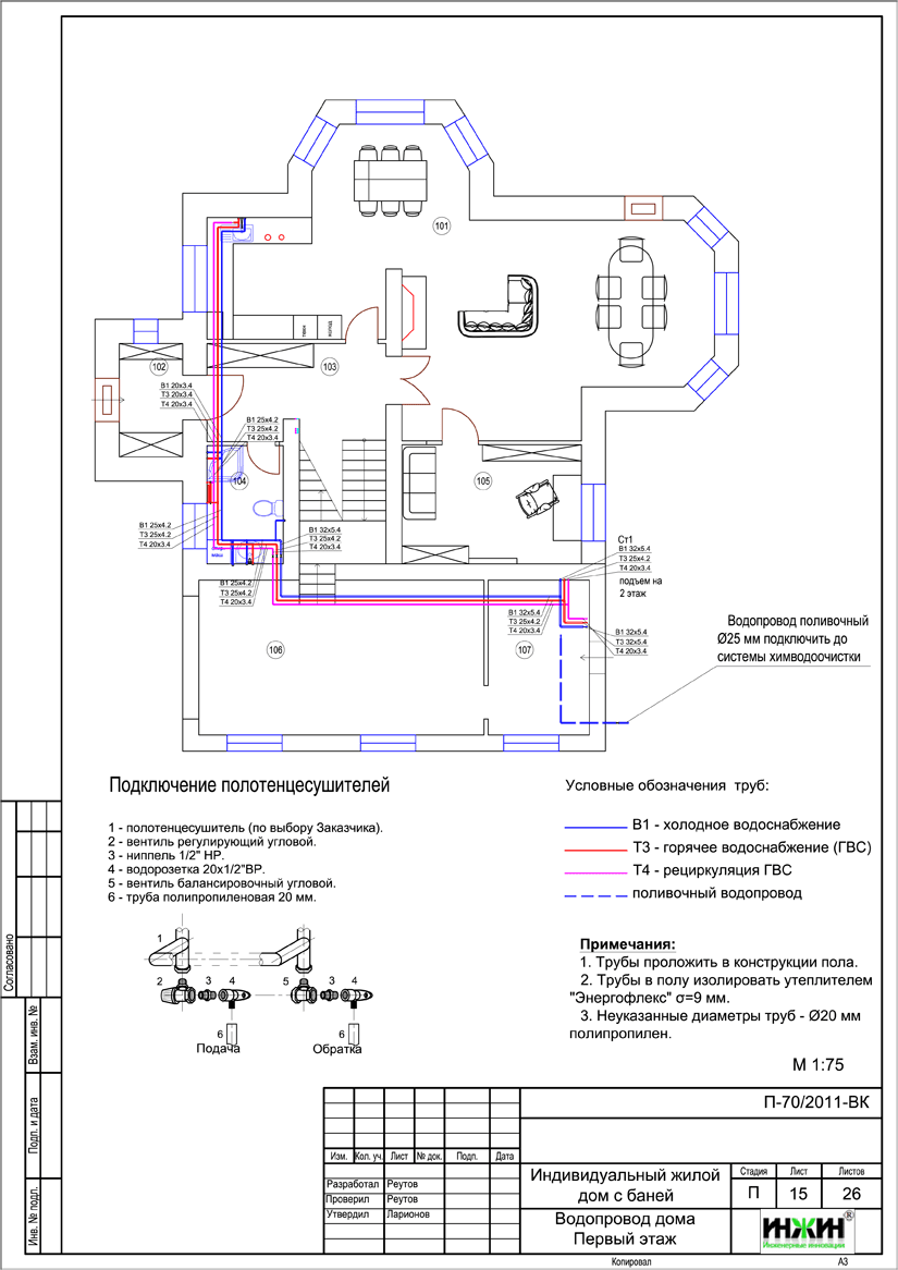
7. Комплект рабочих чертежей внутреннего водопровода и канализации жилого дома и бани.
8. Схема системы канализации (аксонометрия) дома и бани.
9. Спецификация материалов и оборудования отопления, водоснабжения и канализации дома с баней в КП "Малиновка".
Объем проекта отопления: 58 листов.
Описание проекта отопления, водоснабжения и канализации дома с баней в КП "Малиновка".
Котельная дома в КП "Малиновка" (проект котельной бесплатно).
o На базе напольного чугунного котла Vaillant atmoVIT VK (Германия) мощностью 41 кВт, работающего на сжиженном природном газе;
o Контуры котельной – отопление дома, горячее водоснабжение и водяной теплый пол;
o Приготовление горячей воды при помощи бойлера Reflex, объемом 200 литров;
o Расширительные баки отопления и водоснабжения Reflex (Германия);
o Насосы отопления и теплого пола Grundfos;
o Трубы дымоходные из нержавеющей стали Rosinox (Россия);
o Распределительная гребенка с насосно-смесительными узлами Meibes (Германия);
o Автоматика котельной – основной блок Vaillant.
Котельная бани (проект котельной бани).
o На базе настенного котла Vaillant (Германия) мощностью 28 кВт, работающего на сжиженном природном газе;
o Контуры котельной – отопление бани и горячее водоснабжение;
o Приготовление горячей воды при помощи бойлера Reflex, объемом 200 литров;
o Расширительные баки отопления и водоснабжения Reflex (Германия);
o Насосное оборудование для отопления бани Grundfos;
o Трубы дымоходные – коаксиальные Vaillant;
o Распределительная гребенка с насосно-смесительными узлами Meibes (Германия);
o Автоматика котельной – встроенная в котел.
Автоматизация отопления и котельной (вариант «Комфортный»).
o Автоматическое регулирование отопления по наружной температуре (погодное регулирование);
o Автоматическое поддержание заданной температуры в контурах отопления, теплого пола и горячего водоснабжения.
Отопление дома с баней в КП "Малиновка".
o Отопление дома радиаторное, использованы стальные панельные конвекторы Kermi FTV с нижним подключением;
o Отопление бани радиаторное, использованы стальные панельные конвекторы Kermi FKO с боковым подключением;
o Схема радиаторного отопления дома коллекторная с принудительной циркуляцией теплоносителя, отопление бани запроектировано по двухтрубной схеме;
o Температурный график отопления 80/60° С;
o Трубопроводы отопления – металлопластик Valtec (Италия).
Водяной теплый пол (проект теплого пола).
o Теплые полы проектом предусмотрены на площади 42 м.кв.;
o Трубопроводы теплого пола - металлопластик Valtec (Италия);
o Управление теплым полом – общее, контуром котельной.
Источником теплоснабжения полотенцесушителей принят контур рециркуляции бытовой горячей воды.
Внутренний водопровод (проект водоснабжения).
o Схема внутреннего водоснабжения дома и бани – тройниковая тупиковая;
o Трубопроводы системы водоснабжения – армированный полипропилен Dizayn, OXY-PLUS (Турция);
o В системе горячего водоснабжения предусмотрена рециркуляция горячей воды.
Внутренняя канализация (проект канализации).
o Предусмотрен безнапорный отвод стоков от санитарно-технических приборов в доме, в бане предусмотрена напорная канализация;
o Трубопроводы канализации – полипропилен Политрон (Россия).






















По этому проекту выполнен монтаж отопления, водоснабжения и канализации дома в КП "Малиновка"