Выполненные проекты
Проект отопления частного дома площадью 128 м.кв.
Объект: частный дом площадью 128 кв.м., расположенный в дер. Каменка Нарофоминский района Московской области
Вариант отопления: «Базовый»
Стоимость (цена) проекта отопления: 22 500 руб. (минимальная стоимость работ)
Проект отопления выполнен: 02.04.2012г.
Состав проекта отопления дома в Каменке:
1. Пояснительная записка. Общие данные по отоплению дома в Каменке.
2. Теплотехнический расчет отопления дома в Каменке.
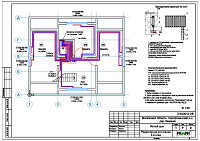
3. Тепломеханическая схема котельной с размещением оборудования.
4. Комплект чертежей радиаторного отопления загородного дома.
5. Спецификация материалов и оборудования отопления дома в Каменке.
Объем проекта отопления: 24 листа.
Описание проекта отопления дома в Каменке.
Котельная дома в Каменке (проект котельной бесплатно).
o На базе напольного котла OPOP Woody 24, работающего на гранулированном твердом топливе (пеллеты), в комплекте с бункером для топлива объемом 200л. Мощность котла 24 кВт;
o Проектом предусмотрен резервный котел OPOP H 424, работающий на твердом топливе (дрова, уголь);
o Контуры котельной – отопление дома и горячее водоснабжение;
o Буферная емкость Meibes (Германия) PSX-500, объемом 500 литров с возможностью установки встроенных электрических ТЭНов (запроектирована с целью повышения качества и безопасности функционирования котельной);
o Приготовление горячей воды при помощи бойлера Reflex SB, объемом 150 литров;
o Расширительные баки отопления и водоснабжения Reflex;
o Насосы отопления Grundfos;
o Трубы дымоходные из нержавеющей стали Rosinox (Россия);
o Распределительная гребенка с насосно-смесительными узлами Meibes;
o Автоматика котельной – встроена в котел.
Автоматизация отопления и котельной (вариант «Базовый»). Автоматика встроена в основной котел.
Отопление дома в Каменке (проект отопления).
o Отопление дома радиаторное, использованы стальные панельные конвекторы Kermi FTV с нижним подключением, а также напольные трубчатые радиаторы Zehnder Relax в форме скамейки;
o Схема радиаторного отопления коллекторная с принудительной циркуляцией теплоносителя;
o Температурный график отопления 80/60° С;
o Трубопроводы отопления – сшитый полиэтилен Rehau (Германия).













