Выполненные проекты
Проект электрики дома площадью 72 м.кв. в Солнечногорском районе
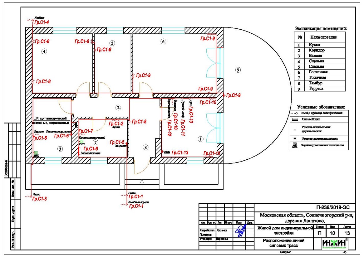
Объект: одноэтажный дом из газобетонных блоков площадью 72 м.кв., расположенный в Солнечногорском районе Московской области
Цена (стоимость) проекта электрики: 12 112 руб. со скидкой 15% за комплексный проект электрики и отопления.
Проект электрики выполнен: 25.05.2018
Состав проекта электрики дома из газобетонных блоков:
1. Пояснительная записка. Общие данные по системе электроснабжения и освещения.
2. Однолинейная схема вводного распределительного устройства и распределительного щита.
3. Чертежи электропроводки для розеточных групп и освещения.
4. Чертежи групповых осветительных сетей.
5. Спецификация материалов и оборудования по системе электроснабжения и освещения.
Объем проекта электрики: 13 листов.
Технические решения, принятые в проекте электрики дома, в соответствии с заданием на проектирование.
Расчетные показатели по электроснабжению.
o Расчетная электрическая мощность дома составила 15,83 кВт, с учетом коэффициента спроса 0,65, принятого согласно СП 256.1325800.2016;
o При расчете учтено силовое оборудование: электрический котел, электроплита.
Распределительный электрический щит.
o Проектом предусмотрен распределительный щит, размещенный в тамбуре и оснащенный 19 автоматами;
o Автоматические выключатели, дифференциальные автоматы и УЗО в щитах - ABB;
o Щитовое оборудование размещено во встраиваемом корпусе ABB на 48 модулей.
Силовая кабельная сеть (электропроводка в частном доме).
o Электропроводка предусмотрена с использованием кабелей ВВГ нг -LS с медными жилами в ПВХ-оболочке;
o Общая протяженность линий электроснабжения и освещения – 385 метров;
o Электропроводка предусмотрена скрытым способом, в защитной гофрированной ПВХ-трубе;
o Запроектировано 42 точки подключения розеток, светильников и выключателей освещения.
Заземление.
Предусмотрен контур заземления на базе комплекта Ezetek EZ 6.
Заказать проект электрики дома.
Узнать подробные цены на проект электрики.
Для этого дома выполнен проект системы отопления и водоснабжения.















