Выполненные проекты
Проект электрики дома площадью 127 м.кв. в г. Пушкино
Объект: частный дом площадью 127 м.кв. в ДНТ «Сосновка», микрорайон Мамонтовка, г. Пушкино Московской области
Цена (стоимость) проекта электрики: 16 250 руб. (проект слаботочки – бесплатно).
Проект электрики выполнен: 21.06.2018
Состав проекта электрики:
1. Пояснительная записка. Общие данные по электроснабжению, освещению и резервному электропитанию.
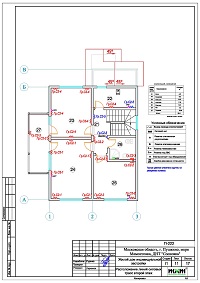
2. Однолинейные схемы вводного распределительного устройства и распределительного щита.
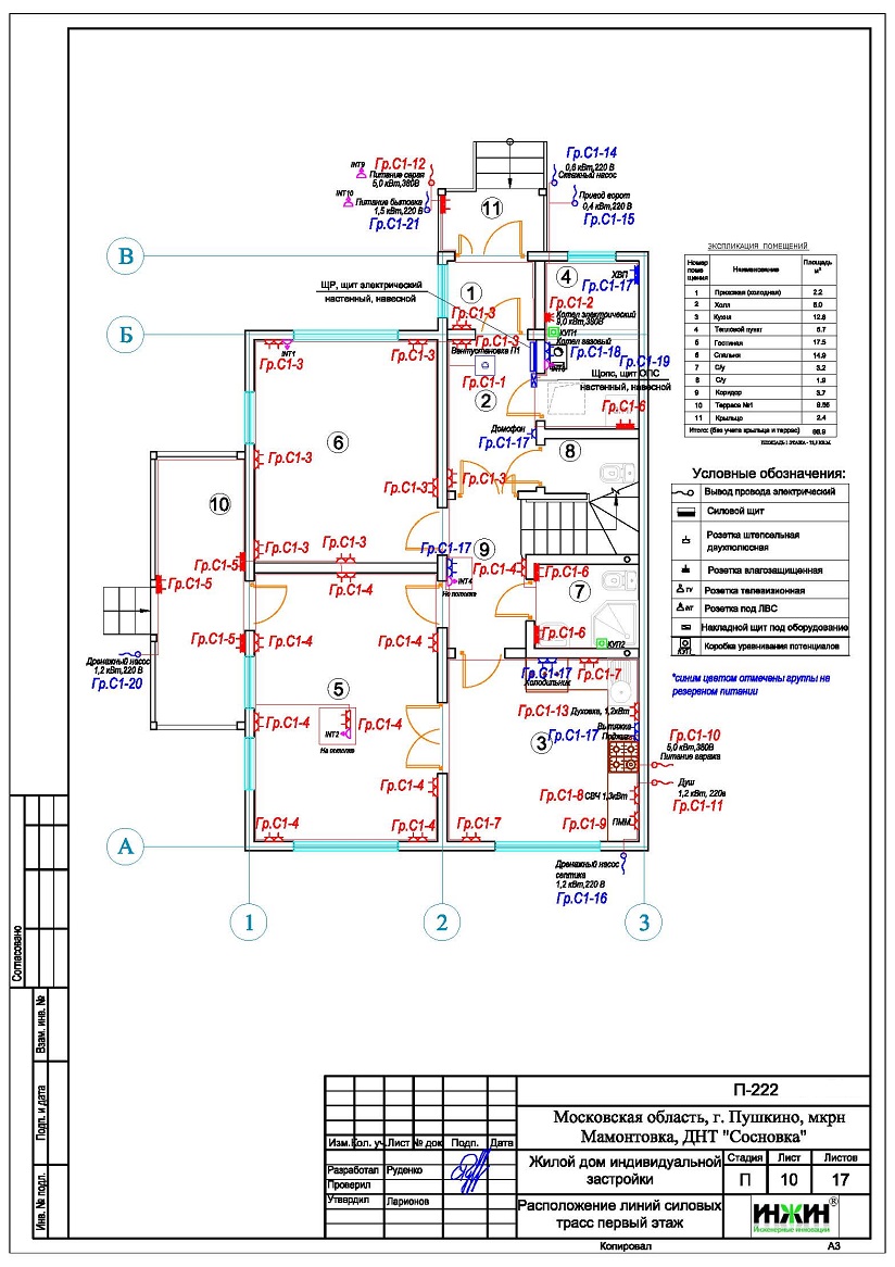
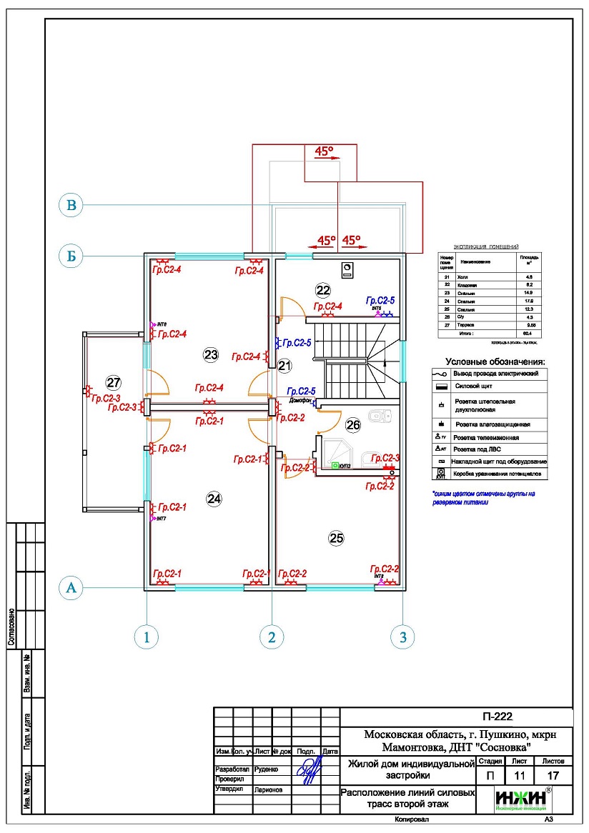
3. Чертежи кабельных трасс силовых электрических сетей (электропроводка).
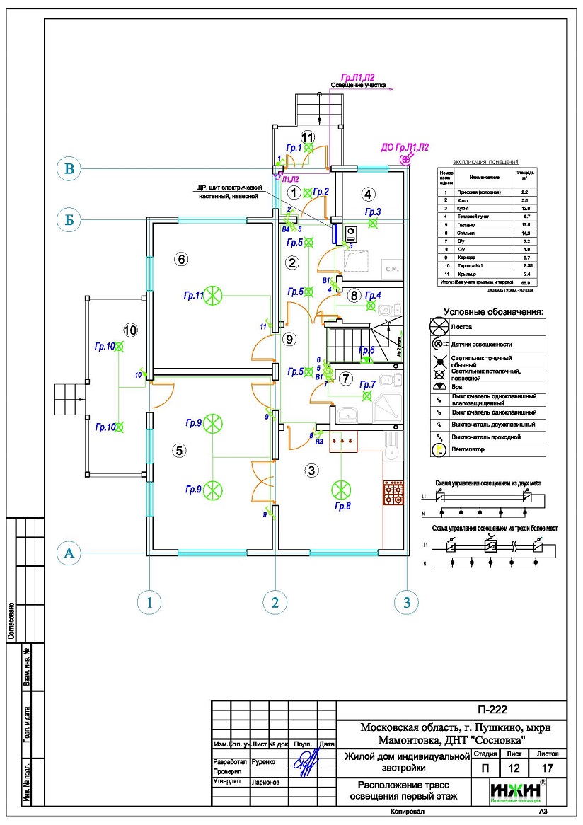
4. Чертежи групповых осветительных сетей.
5. Чертежи линий охранно-пожарной сигнализации.
6. Спецификация материалов и оборудования по системе электроснабжения и освещения.
Объем проекта: 17 листов.
Технические решения, принятые в проекте электрики дома, в соответствии с заданием Заказчика на проектирование.
Расчетные показатели по электроснабжению.
o Расчетная электрическая мощность дома составила 14,94 кВт, с учетом коэффициента спроса 0,55, принятого согласно СП 256.1325800.2016;
o При расчете учтено силовое оборудование: котельная, резервный электрический котел (9 кВт);
o Мощность потребителей резервного электропитания составила 7,81 кВт.
Распределительный электрический щит.
o Проектом предусмотрен распределительный щит, размещенный в холле 1 этажа и оснащенный 35 автоматами;
o Автоматические выключатели, дифференциальные автоматы и УЗО в щитах - Legrand;
o Щитовое оборудование размещено в навесном корпуса ABB на 96 модулей.
Силовая кабельная сеть (проект электропроводки) и слаботочные трассы.
o Электропроводка предусмотрена с использованием кабелей ВВГ нг -LS с медными жилами в ПВХ-оболочке (не поддерживает горение);
o Общая протяженность линий электроснабжения и освещения – 940 метров;
o Электропроводка предусмотрена скрытым способом, в защитной гофрированной ПВХ-трубе и металлорукаве в виниловой изоляции (в деревянных конструкциях);
o Запроектировано 140 точек подключения розеток и выключателей освещения;
o Линии слаботочных сетей предусмотрены с использованием провода UTP 4х2х0,51cat 5e, 915 метров.
Резервное электропитание.
Предусмотрено резервное электроснабжение дома, источник – бензиновый генератор ZENITH ZH12000-3DXE мощностью 9,2 кВт.
Заземление.
Предусмотрен контур заземления на базе комплекта Ezetek EZ 6.



















