Выполненные проекты
Отопление и водоснабжение, проект для дома в Южно-Сахалинске
Объект: частный дом площадью 160 м.кв. из газоблока, расположенный в гор. Южно-Сахалинске Сахалинской области
Вариант отопления: «Комфортный»
Стоимость проекта отопления: 28 064 руб. со скидкой 15% , проект котельной бесплатно.
Проект отопления, водоснабжения, канализации и котельной выполнен: 26.06.2018 (дистанционное проектирование)
Состав проекта отопления, водоснабжения и канализации дома в Сахалинской области:
1. Пояснительная записка проекта. Общие данные по отоплению, водоснабжению и канализации частного дома.
2. Тепломеханическая схема котельной с размещением оборудования в специальном помещении.
3. Комплект поэтажных чертежей радиаторного отопления.
4. Комплект чертежей водяного теплого пола.
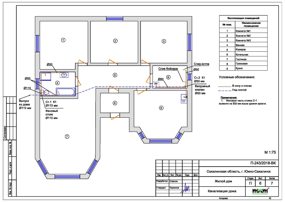
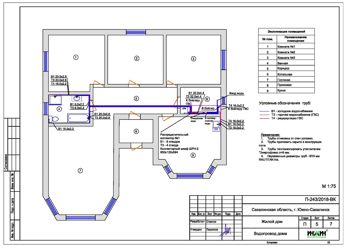
5. Комплект чертежей внутреннего водопровода и канализации.
6. Теплотехнический расчет отопления.
7. Спецификация материалов и оборудования по котельной, отоплению, теплому полу, водоснабжению и канализации.
Объем проекта: 34 листа.
Решения, принятые в проекте отопления, водоснабжения и канализации в соответствии с заданием Заказчика.
Котельная дома (проект котельной дома бесплатно).
o Размещена в отдельном помещении;
o Предусмотрен настенный электрический котел Vaillant eloBLOCK мощностью 18 кВт;
o Контуры теплоснабжения котельной – радиаторное отопление и водяной теплый пол;
o Для приготовления горячей воды предусмотрен накопительный электрический бойлер Drazice, объемом 100 литров;
o Расширительные баки отопления и водоснабжения Flamco, объемом 18 и 12 литров;
o Насосы отопления и теплого пола Wilo Yonos Para, входящие в комплект насосных групп;
o В качестве распределительного коллектора использован компактный модуль Meibes Kombimix UK MKSTM, с одним прямым контуром и одним смесительным контуром с ручным термостатом;
o Предусмотрена автоматическая подпитка отопления при помощи клапана Watts ALOMD;
o Автоматика котельной – встроена в котел.
Автоматизация отопления (вариант «Комфортный»).
o Автоматическое регулирование отопления по наружной температуре (погодное регулирование), встроено в котел.
Система отопления отопления (проект отопления).
o Выполнен теплотехнический расчет отопления, с учетом теплопотерь через ограждающие конструкции при наружной температуре -24С (для г. Южно-Сахалинск по СП 131.13330.2012), расчетный расход тепла на отопление дома составил 13,16 кВт. По первоначальному заданию требовалось проверить возможность отопления дома только системой "теплый пол". Расчет показал, что теплый пол покрывает не больше половины теплопотерь здания, т.е., не обеспечивает полноценное отопления без радиаторов. Теплоотдача теплого пола учтена при подборе мощности радиаторов отопления;
o Подобраны приборы для системы отопления - стальные панельные радиаторы Kermi с нижним подключением;
o Схема радиаторного отопления двухтрубная, коллекторно-лучевая, с принудительной циркуляцией теплоносителя;
o Температурный график системы отопления 80/60°С;
o Трубы отопления из сшитого полиэтилена Rehau;
o Коллекторы отопления – Rehau HKV, на 6 и 7 отводов;
o Шкафы коллекторные Valtec, пристраиваемые, которые размещены в котельной;
o Теплоизоляция трубопроводов отопления Энергофлекс, толщиной 9мм;
o Теплоноситель в системе отопления и теплых полов – подготовленная вода;
o Регулирование отопления ручное, при помощи термоголовок на радиаторах.
Водяной теплый пол дома (проект теплого пола).
o Водяной теплый пол в доме предусмотрен на площади 113 м.кв., 14 петель;
o Трубопроводы теплого пола - сшитый полиэтилен Rehau RAUTHERM S;
o Коллекторs теплого пола Rehau с расходомерами – на 7 отводов (2 шт.);
o Основание теплого пола – маты из ламинированного пенополистирола Elsen ElM01.50;
o Регулирование температуры теплого пола общее, автоматикой котельной.
Водоснабжение дома.
o Схема внутреннего водопровода – коллекторная, с рециркуляцией горячей воды через полотенцесушители и тройники;
o Коллекторы водопровода – сборные, Valtec VTc.560, с запорными вентилями;
o Выполнен расчет 10 точек водопровода;
o Трубы системы водоснабжения – из сшитого полиэтилена Rehau;
o Теплоизоляция трубопроводов Энергофлекс, толщиной 9мм.
Внутренняя канализация.
o Предусмотрен безнапорный отвод стоков от санитарно-технических приборов;
o Количество точек канализации – 7 шт.;
o Теплоизоляция трубопроводов Энергофлекс, толщиной 13мм. .



















