Выполненные проекты
Проект отопления дома 180 м.кв. в Тульской области
Объект: частный дом площадью 180 кв.м. в КП "Твой Дом" Тульской области
Вариант отопления: «Комфортный»
Стоимость проекта отопления: 27 000 руб. (проект котельной – бесплатно)
Проект отопления, водоснабжения и канализации выполнен: 04.10.2012
Состав проекта отопления, водоснабжения и канализации дома в КП "Твой Дом" Тульской области:
1. Пояснительная записка. Общие данные по отоплению, водоснабжению и канализации дома в Тульской области.
2. Теплотехнический расчет отопления дома в КП "Твой Дом".
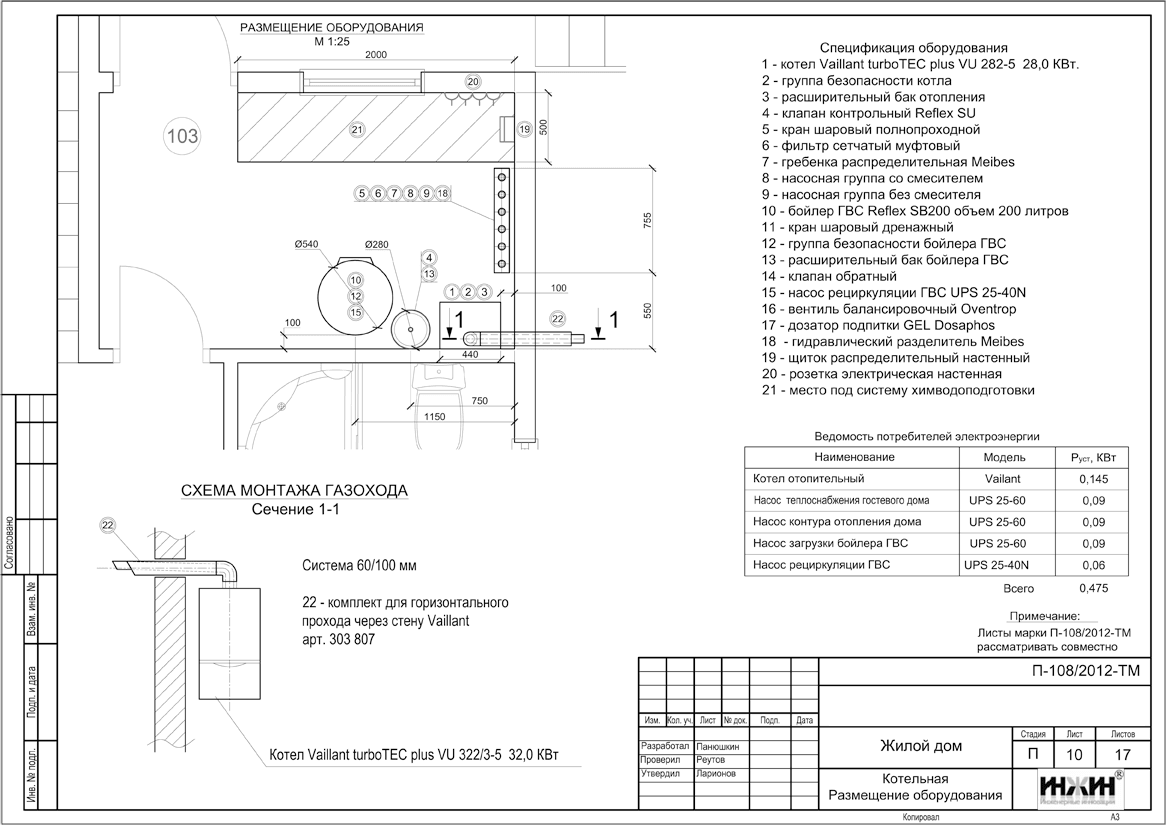
3. Тепломеханическая схема котельной с размещением оборудования.
4. Комплект чертежей радиаторного отопления дома в КП "Твой Дом" Тульской области.
5. Комплект рабочих чертежей внутреннего водопровода и канализации жилого дома в Тульской области.
6. Схема системы канализации (аксонометрия).
7. Спецификация материалов и оборудования.
Объем проекта отопления, водоснабжения и канализации: 34 листа.
Описание проекта отопления, водоснабжения и канализации дома в КП "Твой Дом" Тульской области.
Котельная дома в КП "Твой Дом" (проект котельной).
o На базе настенного газового котла Vaillant turboTEC plus VU INT мощностью 32 кВт с закрытой камерой сгорания;
o Контуры котельной – отопление дома, радиаторное отопление гостевого дома и горячее водоснабжение;
o Приготовление горячей воды при помощи бойлера Reflex SF200, объемом 200 литров;
o Расширительные баки отопления и водоснабжения Reflex (Германия);
o Насосы циркуляционные Grundfos;
o Трубы дымоходные Vaillant, пластиковые, коаксиальные, в исполнении «через стену»;
o Распределительная гребенка с насосно-смесительными узлами Meibes (Германия);
o Автоматика котельной – основной блок Vaillant calorMATIC 630/3.
Автоматизация котельной (вариант «Комфортный»).
o Автоматическое регулирование отопления по наружной температуре (погодное регулирование);
o Автоматическое поддержание заданной температуры в контурах отопления и горячего водоснабжения.
Отопление загородного дома в Тульской области (проект отопления).
o Отопление дома радиаторное, использованы панельные радиаторы Kermi с нижней подводкой;
o Схема радиаторного отопления двухтрубная, тройниковая, с принудительной циркуляцией теплоносителя;
o Температурный график отопления 80/60° С;
o Трубопроводы отопления – сшитый полиэтилен Rehau RAUTITAN flex (Германия).
Водяной теплый пол (проект теплого пола) дома в КП "Твой Дом".
Теплые полы проектом не предусмотрены.
Водяные полотенцесушители.
Источником теплоснабжения полотенцесушителей принят контур рециркуляции бытовой горячей воды. Модели полотенцесушителей в проекте не указывались и в тепловом расчете не учитывались.
Внутренний водопровод дома в КП "Твой Дом" Тульской области.
o Схема внутреннего водоснабжения – тройниковая;
o Трубопроводы системы водоснабжения – сшитый полиэтилен Rehau RAUTITAN flex (Германия);
o В системе горячего водоснабжения предусмотрена рециркуляция горячей воды.
Внутренняя канализация дома в Тульской области.
o Предусмотрен безнапорный отвод стоков от санитарно-технических приборов;
o Трубопроводы канализации – полипропилен Синикон (Россия).



















