Выполненные проекты
Проект отопления дома в КП Дарьино Южное
Объект: двухэтажный частный дом из керамзитобетонных блоков и бруса (2-ой этаж), площадью 136 м.кв., расположенный в КП "Дарьино Южное" Пушкинского района Московской области
Вариант отопления: «Комфортный»
Цена проекта отопления, канализации и водоснабжения: 22 680 руб. со скидкой 10%, проект котельной - бесплатно.
Проект котельной, отопления, водоснабжения и канализации выполнен: 17.06.2019
Состав проекта котельной, отопления, канализации и водоснабжения дома в КП "Дарьино Южное":
1. Пояснительная записка проекта, общие данные по системам отопления, канализации и водоснабжения дома 136 м.кв. в Московской области.
2. Тепломеханическая схема котельной с размещением оборудования в помещении 1-го этажа дома из керамзитобетонных блоков и дерева.
3. Комплект поэтажных чертежей радиаторного отопления дома в КП "Дарьино Южное".
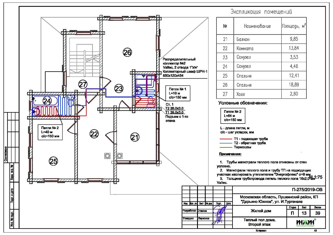
4. Комплект чертежей теплого пола на площади 60 м.кв.
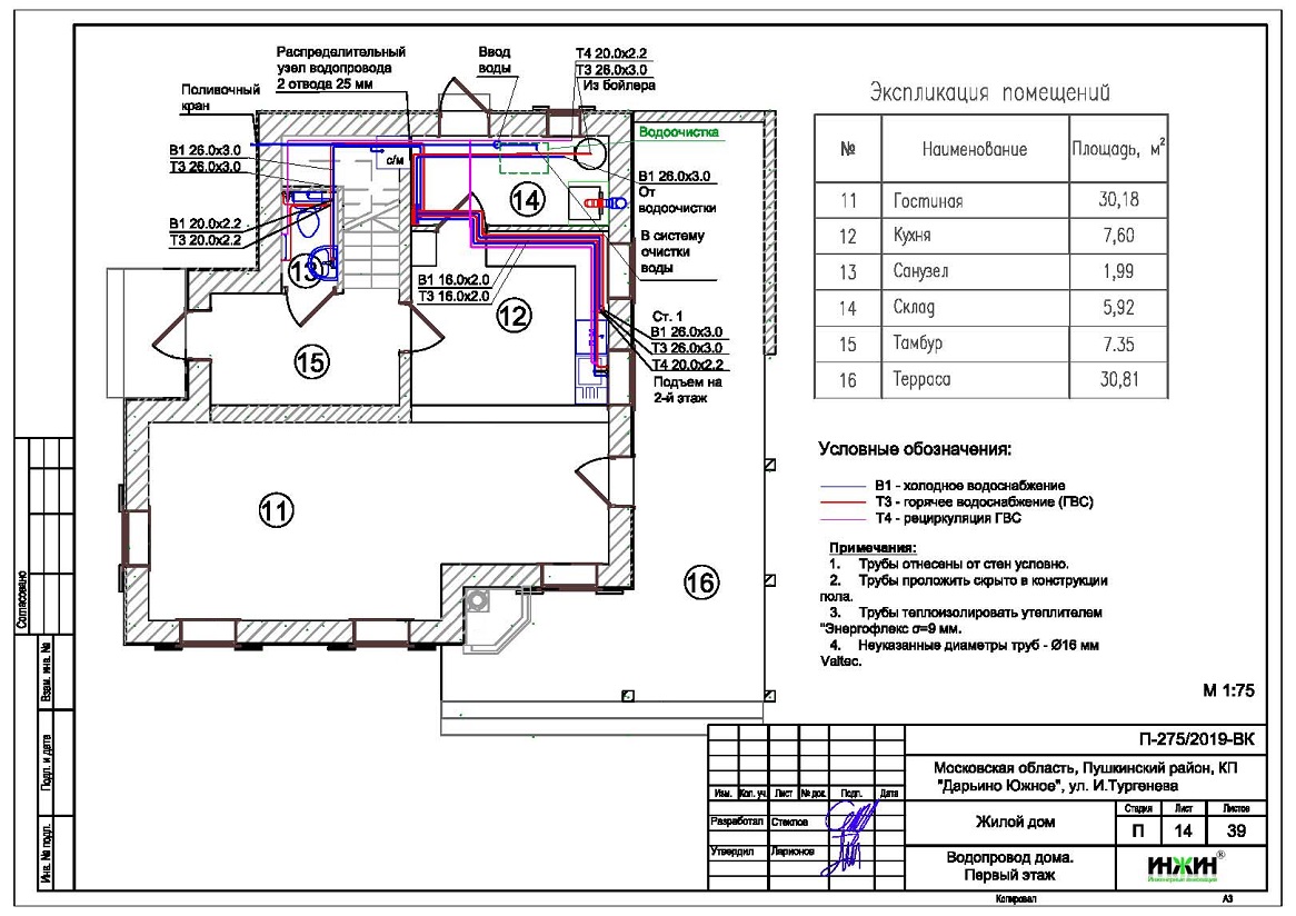
5. Комплект чертежей водоснабжения и канализации частного дома из керамзитобетонных блоков.
6. Типовые схемы системы отопления канализации и водоснабжения дома 136 м.кв.
7. Теплотехнический расчет отопления дома из керамзитобетонных блоков и бруса (2-ой этаж).
8. Спецификация материалов и оборудования по котельной, отоплению, канализации и водоснабжению дома в КП "Дарьино Южное".
Объем проекта отопления, канализации и водоснабжения кирпичного дома: 39 листов.
Описание проекта отопления, котельной, канализации и водоснабжения частного дома 136 м.кв. в КП "Дарьино Южное".
Котельная частного дома в КП "Дарьино Южное"(проект котельной бесплатно).
o Размещена в помещении 1-го этажа дома 136 м.кв.;
o Теплогенератор - основной, напольный газовый котел Vaillant, мощностью 24 кВт (в наличии), резервный, настенный электрический котел ZOTA, мощностью 6 кВт;
o Контуры теплоснабжения котельной – радиаторное отопление дома, теплый пол, резервный контур бытовки и горячее водоснабжение, для которого предусмотрен накопительный бойлер Vaillant, объемом 150 литров;
o Расширительные баки отопления и бойлера Flamco, объемом 18 и 12 литров;
o Циркуляционные насосы отопления и бойлера Grundfos, использованы энергоэффективные насосы UPM3 Hybrid (в составе модуля Kombimix), аналог насосов серии Alpha;
o Дымоудаление естественное, трубы однослойные, из нержавеющей стали Rosinox, диаметр 130 мм;
o Распределительный коллектор - настенный компактный модуль Meibes Kombimix;
o Автоматика котельной – встроена в основной котел.
Отопление дома в КП "Дарьино Южное" (проект отопления дома).
o Выполнен теплотехнический расчет отопления дома из керамзитобетонных блоков и бруса (2-ой этаж) (утепление стен не предусмотрено, утепление пола - плиты из пенополистирола 100мм, кровли - минеральная вата 100мм) с учетом теплопотерь через ограждающие конструкции при наружной температуре -28°С для Московской области (по СП 131.13330.2012), а также теплоотдачи помещений с теплым полом, расчетный расход тепла на отопление дома составил 16,29 кВт, удельные теплопотери 134,8 Вт/м.кв.;
o Подобраны приборы для отопления дома: стальные панельные радиаторы Kermi с нижним подключением;
o Схема радиаторного отопления дома двухтрубная, с принудительной циркуляцией теплоносителя и температурным графиком 80/60°С, в котельной предусмотрен распределительный узел отопления, по одному отводу на этаж;
o Трубы отопления из металлопластика Valtec;
o Теплоизоляция трубопроводов отопления Энергофлекс, толщиной 9мм;
o Теплоноситель в системе радиаторного отопления дома – подготовленная вода, предусмотрены средства защиты от образования накипи.
Водяной теплый пол дома в КП "Дарьино Южное" (проект теплого пола).
o Водяной теплый пол в доме предусмотрен на площади 60 м.кв., коллектор теплого пола Valtec на 6 отводов;
o Предусмотрен отдельный контур котельной для теплоснабжения водяного теплого пола дома;
o Трубопроводы теплого пола – сшитый полиэтилен Valtec PEX-EVOH;
o Регулирование температуры теплого пола - общее, контуром котельной.
Внутренний водопровод дома в КП "Дарьино Южное" (проект водоснабжения).
o Схема внутреннего водоснабжения дома – тройниковая с рециркуляцией горячей воды через водяные полотенцесушители, выполнен расчет 29-ти точек водоснабжения и полотенцесушителей, предусмотрен распределительный узел поэтажного водоснабжения с коллектором из нержавеющей стали Valtec VTc.510.SS, расположенный в котельной;
o Трубопроводы системы водоснабжения – из металлопластика Valtec;
o Теплоизоляция трубопроводов Энергофлекс Супер, толщиной 9мм;
o Для летнего водопровода предусмотрен наружный кран Meibes SEPP-Eis с защитой от замерзания.
Внутренняя канализация (проект канализации) дома в КП "Дарьино Южное".
o Безнапорная, отвод стоков от санитарно-технических приборов предусмотрен в септик;
o Произведен расчет 14-ти точек канализации;
o Канализационные трубы Синикон, раструбные, из полипропилена.



















