Выполненные проекты
Проект электрики дома 438 м.кв. в Марий Эл
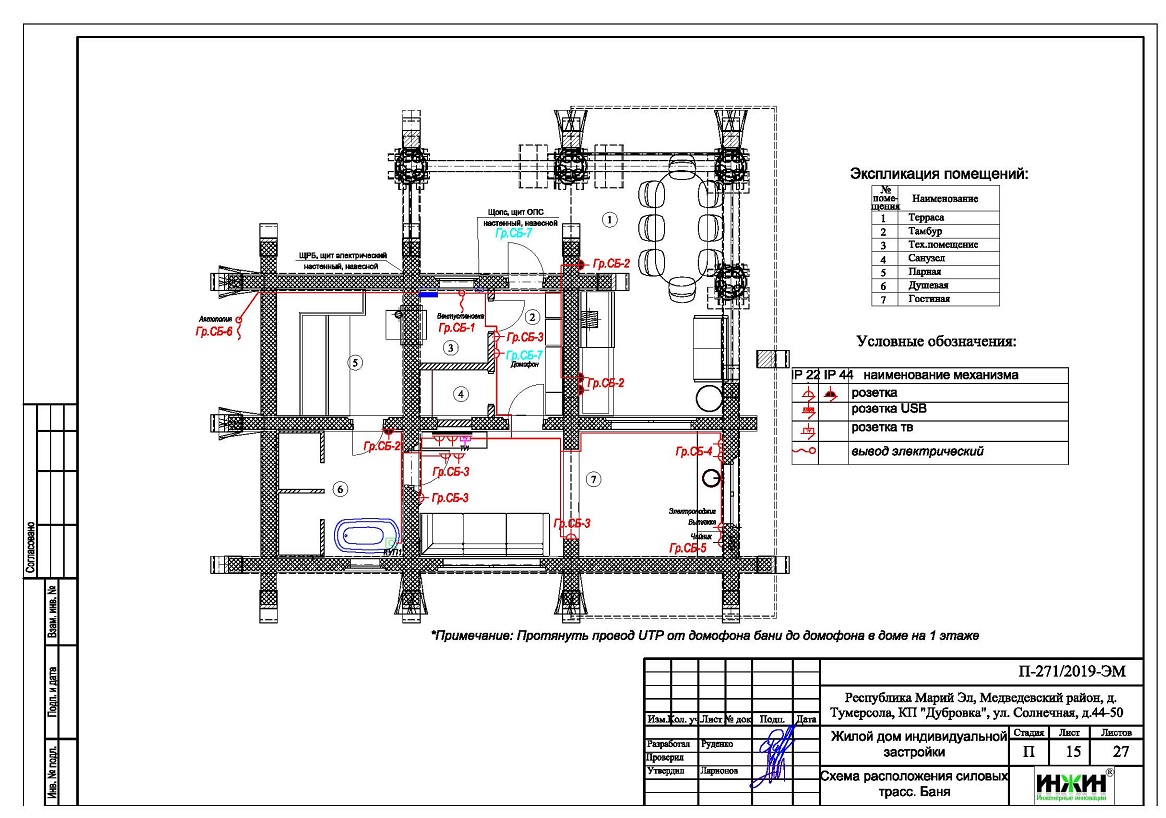
Объект: деревянный дом (из бревна) с баней и летним бассейном, общей площадью 438 м.кв., расположенный в КП "Дубровка", Медведевского района республики Марий Эл.
Цена (стоимость) проекта электрики (электропроводки): 37 449 руб. со скидкой 10%, проект слаботочных кабельных линий - бесплатно (дистанционное проектирование).
Проект электрики выполнен: 18.07.2019
Состав проекта электрики деревянного дома в Марий Эл:
1. Пояснительная записка. Общие данные по электроснабжению и освещению дома с баней в Марий Эл.
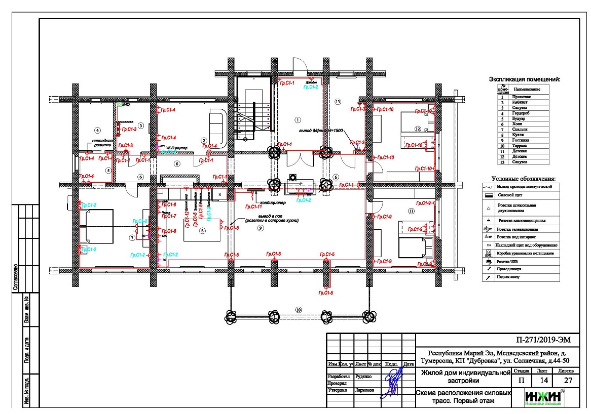
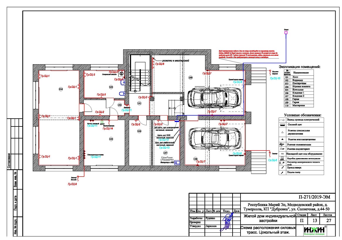
2. Однолинейные схемы вводного распределительного устройства и электрических распределительных щитов дома и бани 438 м.кв..
3. Чертежи электропроводки 1 и 2 этажей дома и бани в Марий Эл.
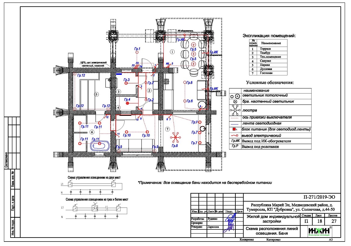
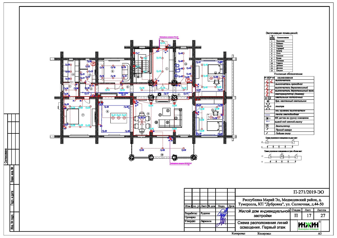
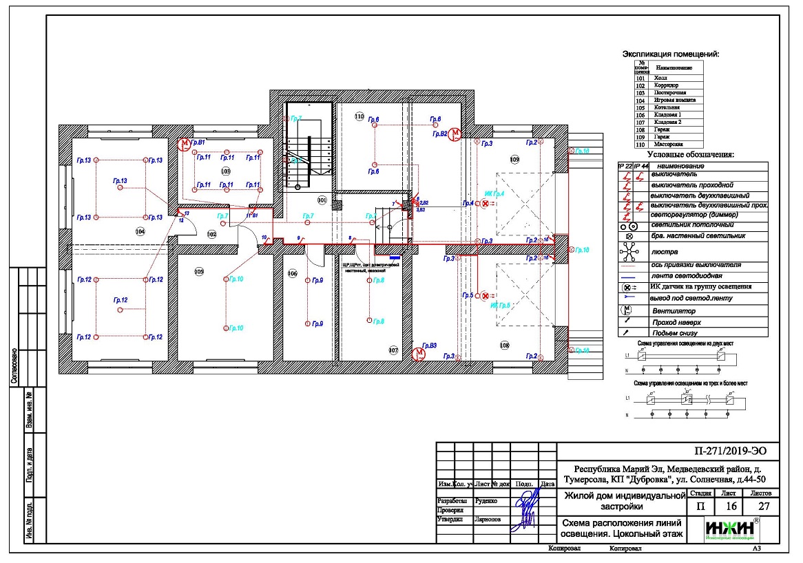
4. Чертежи групповых осветительных сетей дома и бани в КП "Дубровка".
5. Спецификация материалов и оборудования по электрике и электропроводке дома и бани в Марий Эл.
Объем проекта электрики дома с баней 438 м.кв.: 27 листов.
Проект электрики деревянного дома площадью 438 м.кв. в республике Марий Эл.
Расчетные показатели по электроснабжению и освещению частного дома с баней в Марий Эл.
o Расчетная электрическая мощность дома составила 21,84 кВт, с учетом коэффициента спроса 0,55, принятого согласно СП 256.1325800.2016;
o При расчете учтено силовое оборудование: газовый котел, летний бассейн, духовой шкаф.
Распределительные электрические щиты дома с баней площадью 438 м.кв. в КП "Дубровка".
o Проектом предусмотрено три распределительных электрических щита, расположенных на каждом этаже доме и в бане;
o Автоматические выключатели, дифференциальные автоматы, рубильники и УЗО в щитах – ABB, в количестве 52 шт. размещены в электрических распределительных щитах.
Силовая кабельная сеть (электропроводка) дома и бани в КП "Дубровка".
o Электропроводка дома предусмотрена с использованием кабелей ВВГ нг -LS с медными жилами в ПВХ-оболочке (не поддерживает горение);
o Общая протяженность линий электроснабжения и освещения – 2 870 метров;
o Электропроводка предусмотрена скрытым способом, в защитной гофрированной ПВХ-трубе (в цокольном этаже из ФБС-блоков) и металлорукаве в виниловой оболочке (на остальных этажах дома и бани);
o Запроектировано 198 точек подключения розеток и выключателей освещения в деревянном доме и бане.
Предусмотрен контур повторного заземления.






















