Выполненные проекты
Проект электрики дома в Тверской области
Объект: двухэтажный загородный дом площадью 122 м.кв. в СНТ "Алмаз" Зубцовского района Тверской области
Цена (стоимость) проекта электрики (электропроводки): 10 431 руб. со скидкой 10%, проект слаботочных кабельных линий - бесплатно.
Проект электрики выполнен: 20.12.2019
Состав проекта электрики дома в СНТ "Алмаз":
1. Пояснительная записка. Общие данные по электроснабжению и освещению частного дома в СНТ "Алмаз".
2. Однолинейные схемы вводного распределительного устройства и электрического распределительного щита дома 122 м.кв.
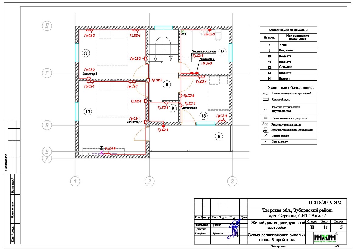
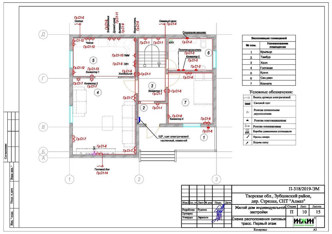
3. Чертежи электропроводки 1 и 2 этажей дома в СНТ "Алмаз".
4. Чертежи групповых осветительных сетей дома в СНТ "Алмаз".
5. Спецификация материалов и оборудования по электрике и электропроводке дома в СНТ "Алмаз".
Объем проекта электрики дома122 м.кв.: 15 листов.
Проект электрики дома площадью 122 м.кв. в СНТ "Алмаз"- подробное описание.
Расчетные показатели по электроснабжению и освещению дома в СНТ "Алмаз".
o Расчетная электрическая мощность дома составила 14,13 кВт, с учетом коэффициента спроса 0,5, принятого согласно СП 256.1325800.2016;
o При расчете учтено силовое оборудование: электрические конвекторы, скважинный насос, электрические полотенцесушители.
Распределительные электрические щиты дома площадью 122 м.кв.
o Проектом предусмотрен один распределительный электрический щит, расположенный в тамбуре;
o Автоматические выключатели, дифференциальные автоматы, рубильники и УЗО в щитах – ABB, в количестве 28 шт. размещены во пристраиваемом корпусе.
Силовая кабельная сеть (электропроводка) дома в СНТ "Алмаз".
o Электропроводка дома предусмотрена с использованием кабелей ВВГ нг -LS с медными жилами в ПВХ-оболочке (не поддерживает горение);
o Общая протяженность линий электроснабжения и освещения – 715 метров;
o Электропроводка предусмотрена открытым способом, с использованием кабель-каналов;
o Запроектировано 63 точки подключения розеток и выключателей освещения в доме;
o Предусмотрены слаботочные линии телевидения, общая протяженность - 40 метров..
Предусмотрено стабилизированное и резервное электропитание дома при помощи стабилизатора напряжения однофазного Штиль R2000 и дизельного генератора Mitsui Power ECO 5000 VA.



















