Выполненные проекты
Отопление деревянного дома 327 м.кв., проект
Объект: двухэтажный загородный дом из клеенного бруса, общей площадью 327 м.кв. в КП "Новорижский Эдем" Московской области
Вариант отопления: «Комфортный»
Цена проекта отопления, канализации и водоснабжения: 49 041 руб. со скидкой 10%, проект котельной - бесплатно.
Проект котельной, отопления, водоснабжения и канализации дома в КП "Новорижский Эдем" выполнен: 24.12.2019
Состав проекта котельной, отопления, канализации и водоснабжения дома в КП "Новорижский Эдем":
1. Пояснительная записка проекта, общие данные по системам отопления, канализации и водоснабжения дома 327 м.кв. в Московской области.
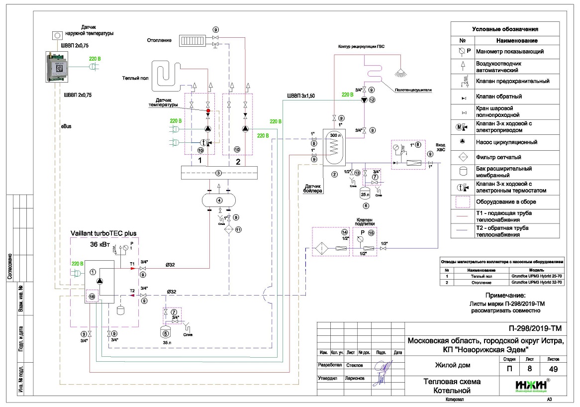
2. Тепломеханическая схема котельной с размещением оборудования в помещении 1-го этажа дома.
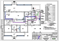
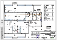
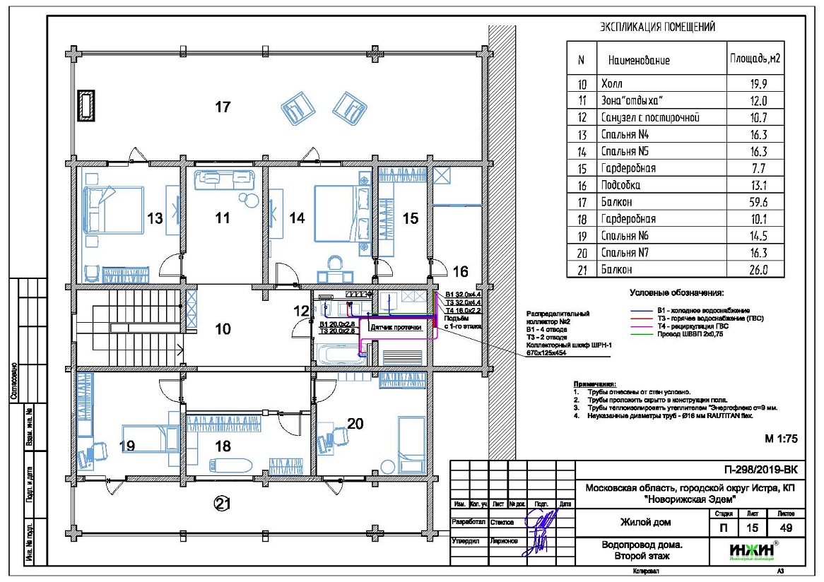
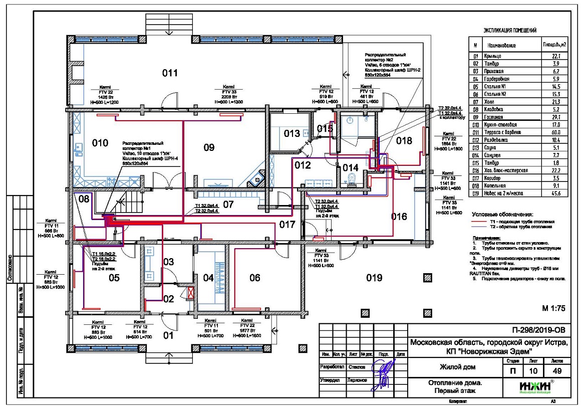
3. Комплект поэтажных чертежей радиаторного отопления дома в КП "Новорижский Эдем".
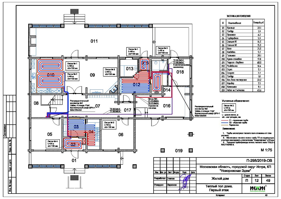
4. Комплект чертежей теплого пола дома на площади 68 м.кв.
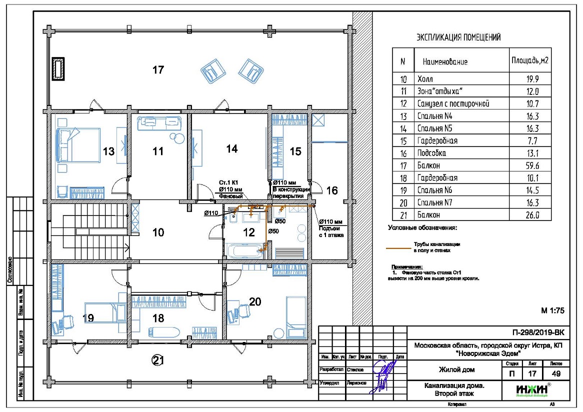
5. Комплект чертежей водоснабжения и канализации частного дома 327 м.кв.
6. Типовые схемы системы отопления канализации и водоснабжения дома из бруса 327 м.кв.
7. Теплотехнический расчет отопления деревянного дома 327 м.кв.
8. Спецификация материалов и оборудования по котельной, отоплению, канализации и водоснабжению дома в КП "Новорижский Эдем".
Объем проекта отопления, канализации и водоснабжения деревянного дома: 46 листов.
Описание проекта отопления, котельной, канализации и водоснабжения частного дома из бруса в КП "Новорижский Эдем".
Котельная частного дома в КП "Новорижский Эдем"(проект котельной бесплатно).
o Размещена в помещении 1-го этажа дома;
o Теплогенератор котельной - настенный газовый котел Vaillant, мощностью 36 кВт (с комплектом перенастройки для работы на сжиженном газе);
o Контуры теплоснабжения котельной – радиаторное отопление дома, теплый пол и горячее водоснабжение, для которого предусмотрен накопительный бойлер Vaillant, объемом 300 литров (подключение к котлу);
o Расширительные баки отопления и бойлера Flamco, объемом 35 и 25 литров;
o Циркуляционные насосы отопления, теплого пола и бойлера Grundfos, использованы энергоэффективные насосы UPM3 Hybrid (в составе насосных групп), аналог насосов серии Alpha;
o Дымоудаление газового котла принудительное, дымоход коаксиальный, комплект Vaillant для прохода через крышу, диаметр 80/125 мм;
o Распределительный коллектор - настенный Meibes с насосными группами;
o Автоматика котельной – встроена в котел с дополнительным GSM-модулем ZONT.
Автоматизация котельной, отопления и теплого пола (вариант «Комфортный»).
o Автоматическое регулирование отопления по наружной температуре (погодное регулирование, при помощи встроенной автоматики и модуля ZONT);
o Дистанционный контроль и управление работой газового котла отопления при помощи GSM-модуля и мобильного приложения ZONT.
Отопление дома в КП "Новорижский Эдем" (проект отопления деревянного дома).
o Выполнен теплотехнический расчет отопления дома из клеенного бруса(утеплитель кровли - минеральная вата 250мм, пола - пенополистирол 100мм) с учетом теплопотерь через ограждающие конструкции при наружной температуре -28°С для Московской области (по СП 131.13330.2012), а также теплоотдачи теплого пола (в помещениях, где он предусмотрен), расчетный расход тепла на отопление составил 28,53 кВт, удельные теплопотери 90,9 Вт/м.кв.;
o Подобраны приборы для отопления дома: стальные панельные радиаторы KERMI с нижним подключением (из пола);
o Схема радиаторного отопления дома двухтрубная, коллекторно-лучевая, с принудительной циркуляцией теплоносителя и температурным графиком 80/60°С, коллекторы отопления Rehau, на 6, 7 и 10 отводов;
o Трубы отопления из сшитого полиэтилена Rehau;
o Теплоизоляция трубопроводов отопления Энергофлекс, толщиной 9мм;
o Теплоноситель в системе радиаторного отопления дома – подготовленная вода, предусмотрены средства защиты от образования накипи.
Водяной теплый пол дома в КП "Новорижский Эдем"(проект теплого пола).
o Водяной теплый пол в доме предусмотрен на площади 68 м.кв., коллекторы теплого пола Valtec - на 4 отвода (2 шт.);
o Предусмотрен отдельный контур котельной для теплоснабжения водяного теплого пола (насосная группа);
o Трубопроводы теплого пола – сшитый полиэтилен Rehau, основание для укладки - плиты ENERGOFLOOR PIPELOCK (Энергофлекс);
o Регулирование температуры теплого пола - общее, контуром котельной.
Внутренний водопровод дома в КП "Новорижский Эдем" (проект водоснабжения).
o Схема внутреннего водоснабжения дома – коллекторно-лучевая с рециркуляцией горячей воды через тройники, выполнен расчет 28-и точек водоснабжения, предусмотрена система защиты от протечек воды "Аквасторож" с 3-мя датчиками и двумя электромеханическими кранами;
o Трубопроводы системы водоснабжения – из сшитого полиэтилена Rehau;
o Теплоизоляция трубопроводов Энергофлекс Супер, толщиной 9мм;
o Для летнего водопровода предусмотрено два наружных крана Meibes SEPP-Eis с защитой от замерзания.
Внутренняя канализация (проект канализации) дома в КП "Новорижский Эдем".
o Безнапорная, отвод стоков от санитарно-технических приборов предусмотрен в септик;
o Произведен расчет 15-ти точек бытовой канализации для дома, предусмотрено два противовакуумных клапана;
o Канализационные трубы Синикон, раструбные, из полипропилена, диаметром 50 и 110мм.

Для этого дома в КП "Новорижский Эдем" выполнен проект электрики.






















