Выполненные проекты
Проект электрики дома в КП "Новорижский Эдем"
Объект: двухэтажный дом из бруса, площадью 327 м.кв. в КП "Новорижский Эдем" Московской области
Цена (стоимость) проекта электрики (электропроводки): 27 959 руб. со скидкой 10%, проект слаботочных кабельных линий - бесплатно.
Проект электрики выполнен: 25.12.2019
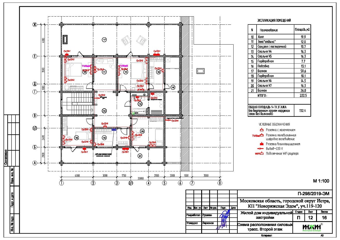
Состав проекта электрики дома в КП "Новорижский Эдем":
1. Пояснительная записка. Общие данные по электроснабжению и освещению частного дома в КП "Новорижский Эдем".
2. Однолинейные схемы вводного распределительного устройства и электрического распределительного щита дома 327 м.кв.
3. Чертежи электропроводки 1 и 2 этажей дома в КП "Новорижский Эдем".
4. Чертежи групповых осветительных сетей дома в КП "Новорижский Эдем".
5. Спецификация материалов и оборудования по электрике и электропроводке дома в КП "Новорижский Эдем".
Объем проекта электрики дома 327 м.кв.: 16 листов.
Проект электрики дома площадью 327 м.кв. в КП "Новорижский Эдем" - подробное описание.
Расчетные показатели по электроснабжению и освещению дома в КП "Новорижский Эдем".
o Расчетная электрическая мощность дома составила 21,33 кВт, с учетом коэффициента спроса 0,55, принятого согласно СП 256.1325800.2016;
o При расчете учтено силовое оборудование: газовый котел, скважинный насос, привод ворот, кондиционеры, электрические полотенцесушители, сауна и электрическая варочная поверхность.
Распределительные электрические щиты дома площадью 327 м.кв.
o Проектом предусмотрено два распределительных электрических щита, по одному на каждый этаж (расположенные в тамбуре и гардеробной 2 этажа);
o Автоматические выключатели, дифференциальные автоматы, рубильники и УЗО в щитах – ABB, в количестве 43 шт. размещены во встраиваемых корпусах.
Силовая кабельная сеть (электропроводка) дома в КП "Новорижский Эдем".
o Электропроводка дома предусмотрена с использованием кабелей ВВГ нг -LS с медными жилами в ПВХ-оболочке (не поддерживает горение);
o Общая протяженность линий электроснабжения и освещения – 1 380 метров;
o Электропроводка предусмотрена скрытым способом, в металлорукаве в виниловой оболочке (во всех конструкциях из дерева);
o Запроектировано 176 точек подключения розеток и выключателей освещения в доме;
o Предусмотрены слаботочные линии локальной вычислительной сети и телевидения, общая протяженность - 200 метров.
Предусмотрено стабилизированное и резервное электропитание дома при помощи стабилизатора напряжения трехфазного Lider PS 22W-30 и однофазного инвертора CyberPower CRS 5000 PRO.
Предусмотрено использование технологии удобства - дистанционного открывания въездных и гаражных ворот, калитки и включения групп освещения участка при помощи единого радиопульта.
Заказать проект электрики деревянного дома.

Для этого дома в КП "Новорижский Эдем" выполнен проект отопления, водоснабжения и канализации.
По этому проекту выполнен монтаж системы электроснабжения и освещения (электрики).



















