Выполненные проекты
Проект электрики дома 210 м.кв. в Софьино
Объект: одноэтажный дом из кирпича, площадью 210 м.кв. в дер. Софьино Московской области
Цена (стоимость) проекта электрики (электропроводки): 17 955 руб. со скидкой 10%, проект слаботочных кабельных линий - бесплатно.
Проект электрики выполнен: 20.01.2020
Состав проекта электрики дома в дер. Софьино:
1. Пояснительная записка. Общие данные по электроснабжению и освещению частного дома в дер. Софьино.
2. Однолинейная схема вводного распределительного устройства и электрического распределительного щита дома 210 м.кв.
3. Чертежи электропроводки дома в дер. Софьино.
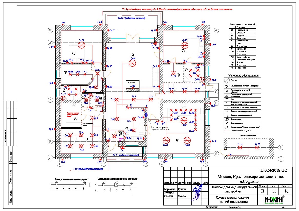
4. Чертежи групповых осветительных сетей дома в дер. Софьино.
5. Спецификация материалов и оборудования по электрике и электропроводке дома в дер. Софьино.
Объем проекта электрики дома 210 м.кв.: 16 листов.
Проект электрики дома площадью 210 м.кв. в дер. Софьино- подробное описание.
Расчетные показатели по электроснабжению и освещению дома в дер. Софьино.
o Расчетная электрическая мощность дома составила 14,96 кВт, с учетом коэффициента спроса 0,45, принятого согласно СП 256.1325800.2016;
o При расчете учтено силовое оборудование: газовый котел, электрический котел (резервный), скважинный насос, привод ворот, кондиционеры (4 шт.), электроснабжение беседки.
Распределительные электрические щиты дома площадью 210 м.кв.
o Проектом предусмотрено один распределительный электрический щит, расположенный в холле 1 этажа;
o Автоматические выключатели, дифференциальные автоматы, рубильники и УЗО в щитах – ABB, в количестве 37 шт. размещены во встраиваемом корпусе.
Силовая кабельная сеть (электропроводка) дома в дер. Софьино.
o Электропроводка дома предусмотрена с использованием кабелей ВВГ нг -LS с медными жилами в ПВХ-оболочке (не поддерживает горение);
o Общая протяженность линий электроснабжения и освещения – 1 570 метров;
o Электропроводка предусмотрена скрытым способом, в защитной ПВХ-трубе;
o Запроектировано 147 точек подключения розеток и выключателей освещения в доме;
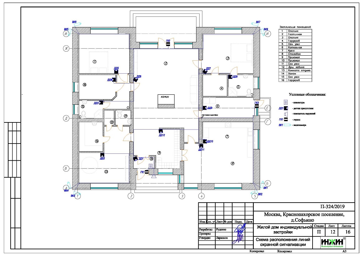
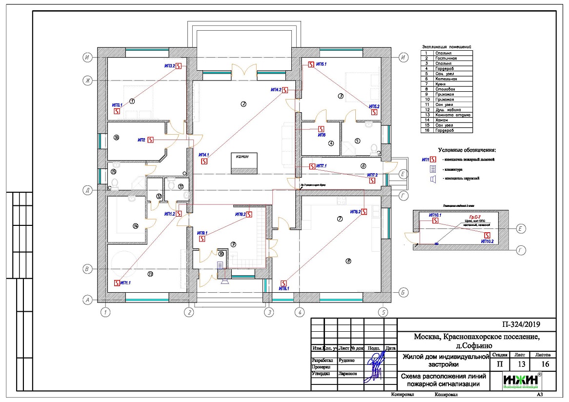
o Предусмотрены слаботочные линии локальной вычислительной сети и телевидения, общая протяженность - 1135 метров, а также системы видеонаблюдения - 350 метров.
Предусмотрено стабилизированное и резервное электропитание дома при помощи стабилизатора напряжения однофазного Lider и однофазного инвертора CyberPower CRS 5000 PRO.
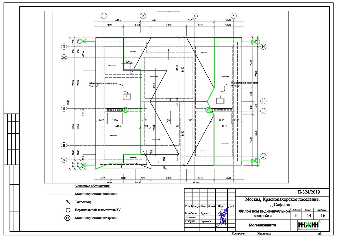
Предусмотрена система молниезащиты здания.



















