Выполненные проекты
Проект электрики дома площадью 300 м.кв.
Объект: загородный дом из кирпича площадью 300 м.кв., расположенный в дер. Большой Ивановское Московской области
Стоимость проекта электрики: 33 000 руб., проект аварийного и стабилизированного питания бесплатно.
Проект электроснабжения и освещения выполнен: 22.02.2013
Состав проекта электрики дома в дер. Большое Ивановское:
Пояснительная записка, общие данные по электроснабжению кирпичного дома 300 м.кв.
Однолинейные схемы и расчет вводного распределительного устройства и поэтажных распределительных щитов дома в Большом Ивановском.
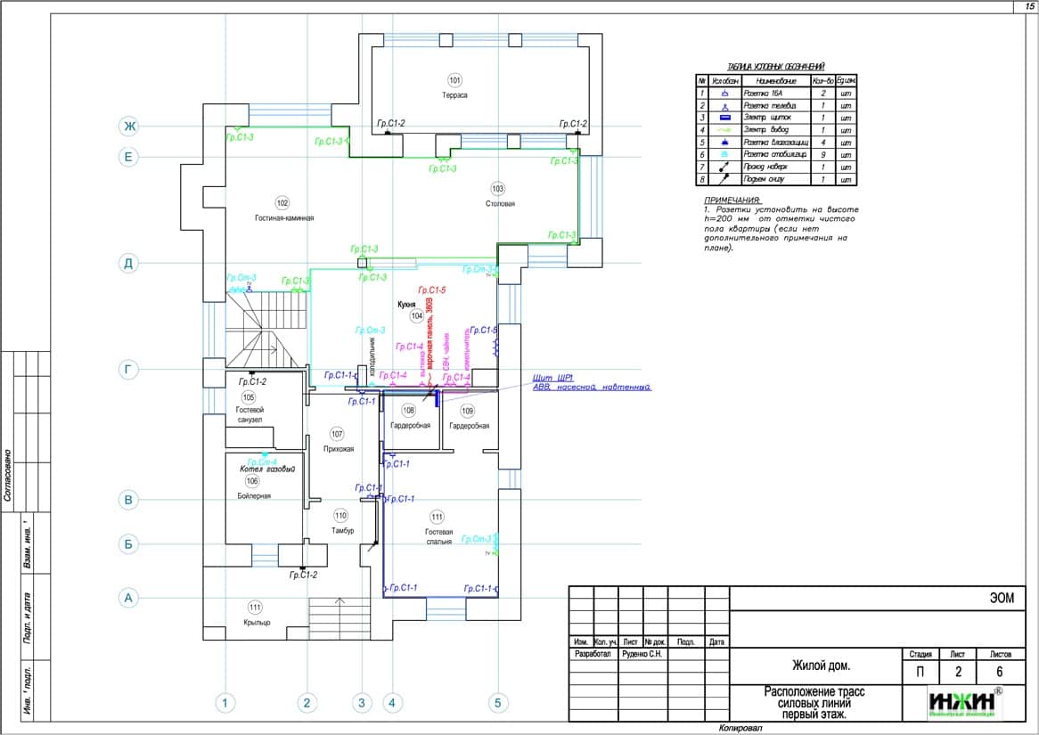
Поэтажные планы силовых электрических сетей (электропроводка).
Поэтажные планы групповых осветительных сетей.
Схема системы уравнивания потенциалов.
Спецификация материалов и оборудования по электроснабжению загородного дома из кирпича.
Объем проекта электрики дома в Большом Ивановском: 21 лист.
Основные технические решения проекта электроснабжения и освещения (электрики) дома площадью 300 м.кв., предусмотренные в соответствии с заданием Заказчика.
Электрические распределительные щиты (электрощиты).
o Проектом предусмотрено 3 электрических щита, оснащенных 63-мя автоматами;
o Автоматические выключатели, дифференциальные автоматы и УЗО в щитах - Schneider;
o Предусмотрен щит стабилизированного электропитания с 8-ю автоматами;
o Корпуса щитов - Legrand и ABB, встроенные и наружные.
Электропроводка (электрокабели).
o Проектом предусмотрено использование кабелей ВВГ нг -LS (Кольчугино) с медными жилами в ПВХ-оболочке;
o Общая протяженность линий электроснабжения и освещения – 6 850 метров;
o Прокладка силовых линий предусмотрена скрытым способом, в гофротрубе;
o Дополнительно предусмотрены телевизионные линии, кабель SAT 703, общая длина 300 метров.
Заземление.
Для защиты людей от поражения электрическим током при повреждении изоляции проектом предусмотрена реализация контура заземления.
Резервное и стабилизированное электропитание.
Проектом предусмотрен источник стабилизированного и резервного электропитания - инвертор CPS 7500 PRO (48V) с четырьмя аккумуляторами 200 а/ч (AGM) 12V. К инвертору подключены следующие потребители:
o Телефоны и спутниковое телевидение;
o Домофон;
o Аудио- и видеоаппаратура, телевизоры, домашний кинотеатр;
o Холодильник;
o Газовый котел и насосное оборудование;
o Скважный насос, КНС и септик;
o Вентиляционная установка;
o Освещение въездных ворот и периметра участка;
o Въездные ворота.
На вводе в здание проектом предусмотрена система уравнивания потенциалов путем объединения следующих проводящих частей: основного магистрального защитного проводника (4-я PEN жила питающего кабеля), основного заземляющего проводника от заземляющего устройства, стальных труб коммуникаций, металлических частей строительных конструкций, вентиляции и кондиционирования.




















