Выполненные проекты
Проект отопления и канализации таунхауса 337 м.кв.
Объект: таунхаус (блокированный дом) площадью 337 м.кв. а Московской области
Вариант отопления: «Комфортный»
Стоимость проекта отопления: 60 000 руб. (проект котельной бесплатно).
Проект отопления, водоснабжения и канализации таунхауса выполнен: 01.03.2013
Состав проекта отопления таунхауса:
1. Пояснительная записка. Общие данные по отоплению таунхауса.
2. Тепломеханическая схема котельной с размещением оборудования.
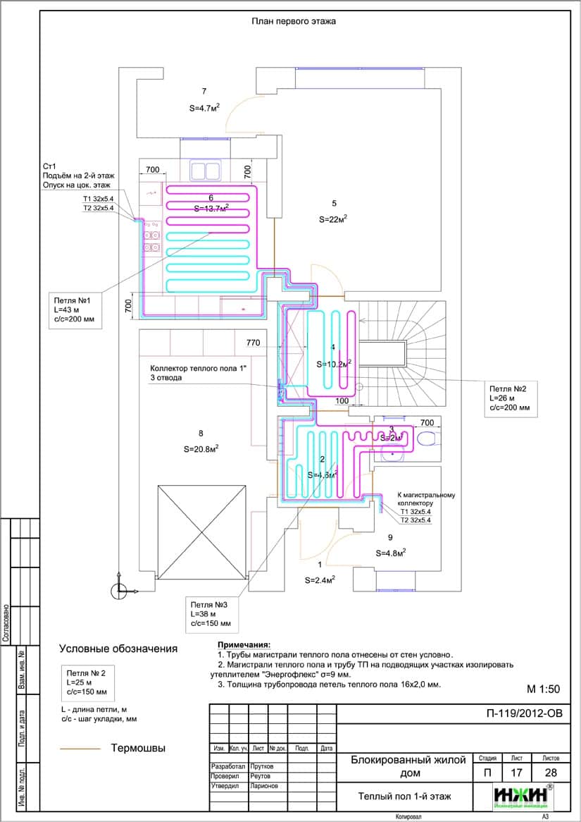
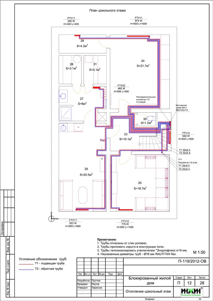
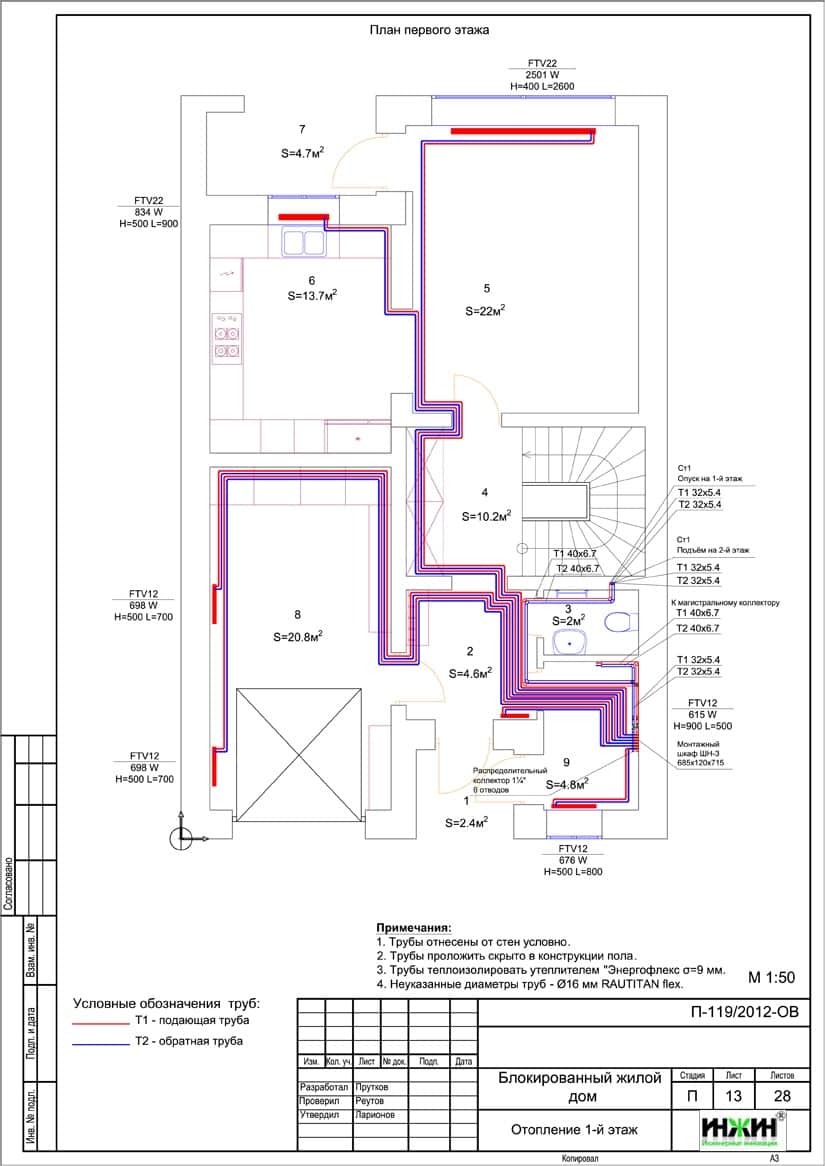
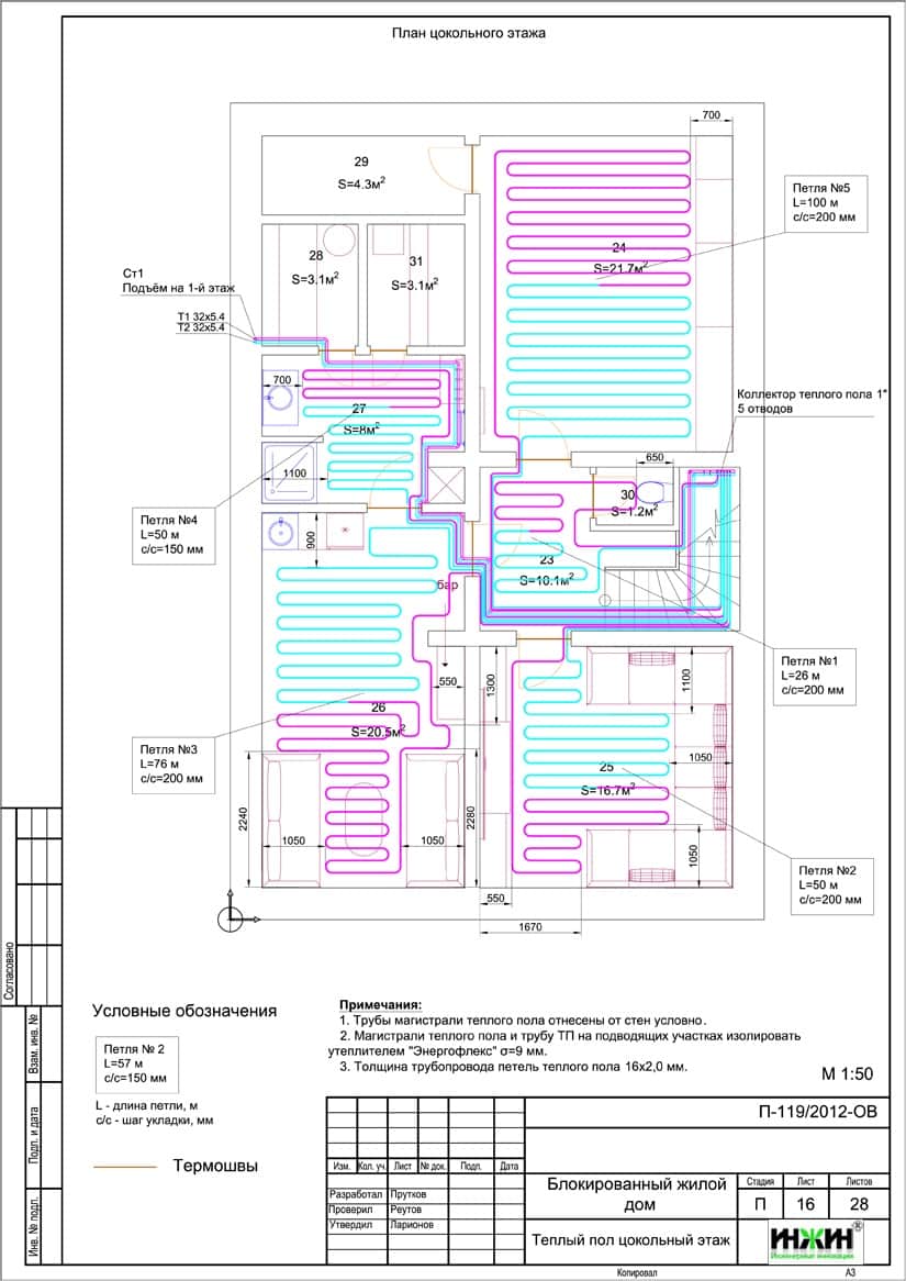
3. Комплект рабочих чертежей радиаторного отопления и теплого пола таунхауса.
4. Комплект рабочих чертежей внутреннего водопровода и канализации таунхауса.
5. Тепловой расчет отопления таунхауса.
6. Спецификация оборудования котельной, отопления, водопровода и канализации.
Объем проекта отопления таунхауса: 57 листов.
Описание проекта котельной, отопления, водоснабжения и канализации таунхауса в Московской области.
Котельная таунхауса.
o Котел – настенный газовый Thermona THERM 32CLN, мощностью 32 кВт, имеющийся на объекте;
o Контуры котельной – отопление дома, теплый пол, теплоснабжение хаммама, теплоснабжение бассейна (летнего) и горячее водоснабжение (контур бойлера);
o Приготовление горячей воды при помощи бойлера Reflex, объемом 300 литров;
o Расширительные баки отопления и водоснабжения Reflex;
o Насосы отопления и теплого пола оборудование Grundfos;
o Трубы дымоходные – выполнены на объекте;
o Распределительная гребенка с насосно-смесительными узлами Meibes;
o Автоматика котельной – встроена в котел. Регулирование температуры контуров теплого пола и горячего водоснабжения ручное.
Автоматизация котельной (вариант «Комфортный»).
o Автоматическое регулирование отопления по наружной температуре (погодное регулирование);
o Автоматическое поддержание заданной температуры в доме;
o Автоматическое поддержание температуры теплоносителя в контурах теплоснабжения.
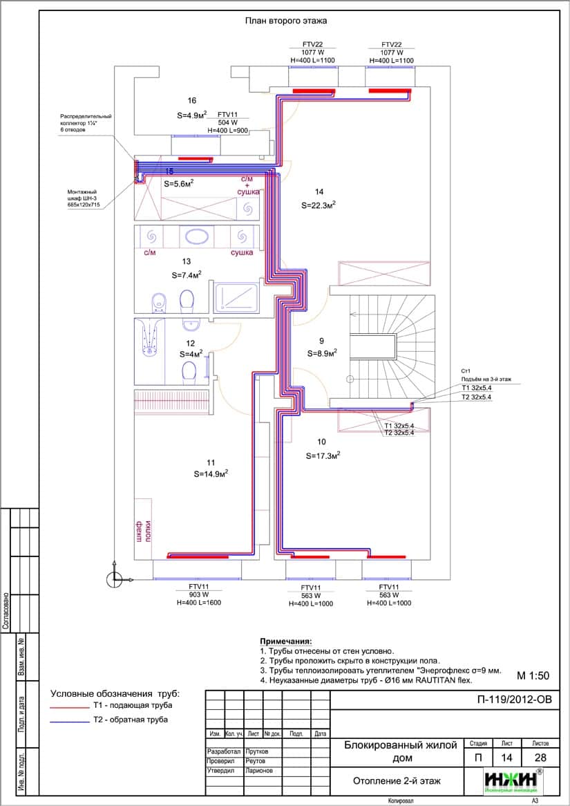
Система отопления таунхауса.
o Отопление запроектировано на базе стальных панельных конвекторов Kermi FKV с нижним подключением;
o Схема радиаторного отопления коллекторно-лучевая, с принудительной циркуляцией теплоносителя;
o Запроектирована скрытая прокладка трубопроводов отопления в стяжке пола;
o Температурный график отопления таунхауса 80/60° С;
o Трубопроводы отопления – сшитый полиэтилен Rehau.
Система теплых полов.
Теплые полы проектом предусмотрены на площади 132 м.кв.
Трубопроводы теплого пола - сшитый полиэтилен Rehau.
Управление теплым полом – общее, контуром котельной.
Внутренний водопровод.
o Схема внутреннего водоснабжения – тройниковая тупиковая;
o Трубопроводы системы водоснабжения – армированный полипропилен Valtec;
o В системе водоснабжения предусмотрена рециркуляция горячей воды.
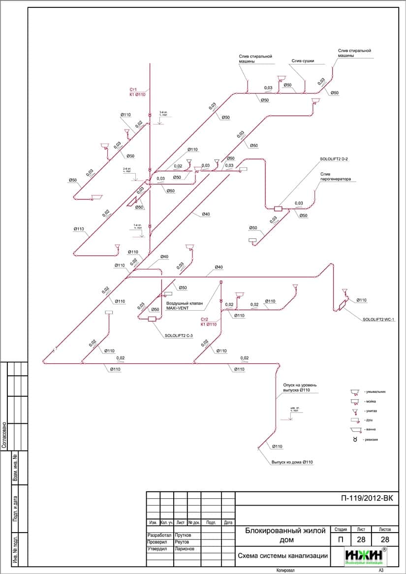
Внутренняя канализация.
o Предусмотрен безнапорный отвод стоков от санитарно-технических приборов 1-3 этажей;
o В цокольном этаже отвод стоков предусмотрен напорным способом, с использованием 3-х КНС Grundfos Sololift;
o Трубопроводы канализации – раструбные полипропиленовые Синикон (Россия).



















