Выполненные проекты
Проект электрики дома площадью 1 068 м.кв.
Объект: частный дом из кирпича площадью 1 068 м.кв., расположенный в КП "Летова Роща" Московской области
Стоимость проекта электрики: 117 480 руб.
Проект электроснабжения и освещения (электрики) выполнен: 07.03.2013
Состав проекта электрики дома в КП "Летова Роща":
Пояснительная записка. Общие данные по электроснабжению и освещению дома из кирпича.
Однолинейные схемы вводного распределительного устройства и поэтажных распределительных щитов.
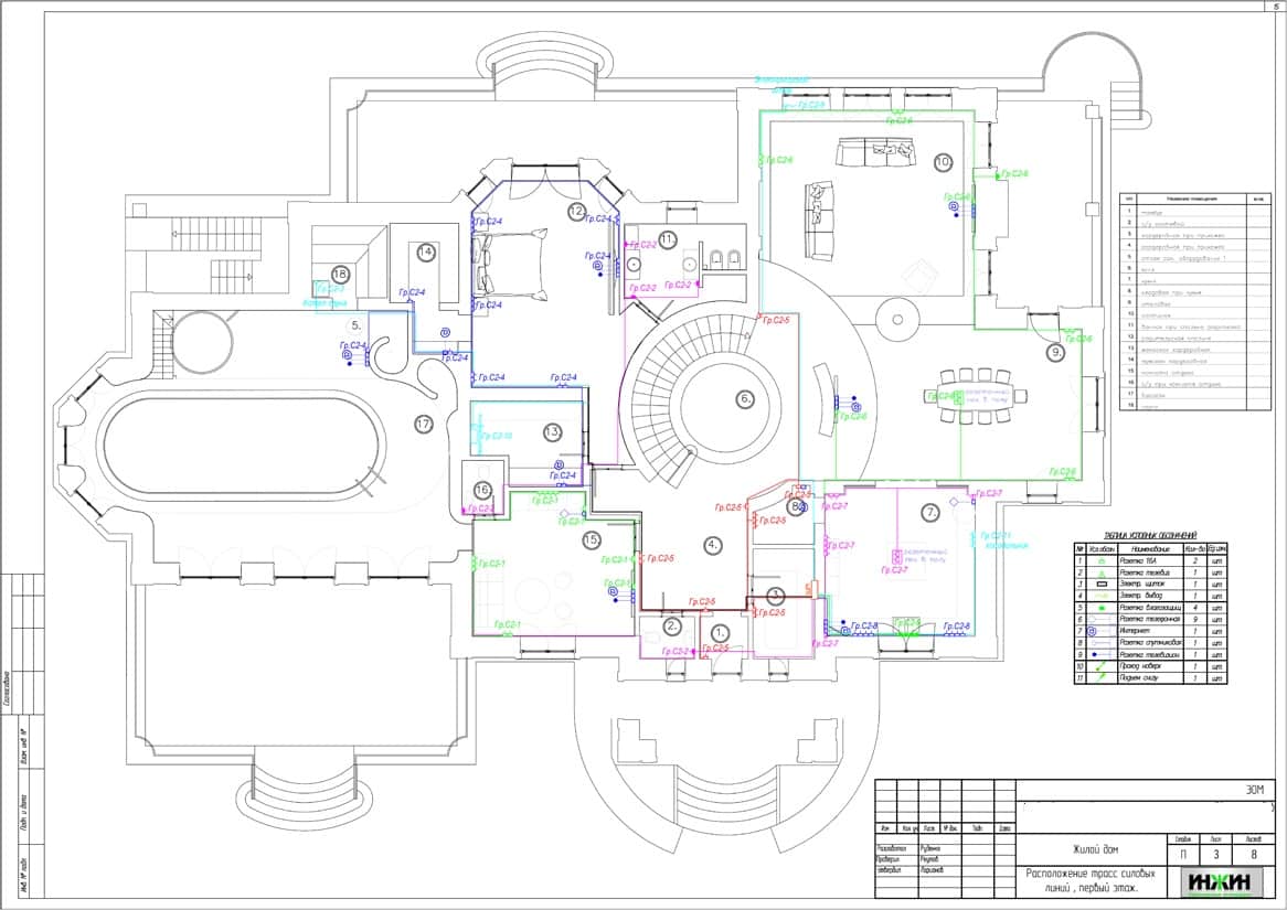
Поэтажные планы силовых электрических сетей.
Поэтажные планы групповых осветительных сетей.
Схема системы уравнивания потенциалов.
Спецификация материалов и оборудования по электрике кирпичного дома.
Объем проекта электрики: 56 листов.
Описание проекта электроснабжения и освещения (электрики) частного дома в КП "Летова Роща".
Электрощиты (электрические распределительные щиты).
o Проектом предусмотрено 9 щитов, оснащенных 117-ю автоматами;
o Автоматические выключатели, дифференциальные автоматы и УЗО в щитах - Legrand;
o Корпуса электрических щитов - Legrand и ABB, встраиваемые.
Электропроводка - кабельные сети.
o Проектом предусмотрено использование кабелей NYM (Севкабель) с медными жилами в ПВХ-оболочке;
o Общая протяженность линий электроснабжения и освещения – 7 660 метров;
o Прокладка силовых линий предусмотрена скрытым способом, в гофротрубе.
Заземление.
Для защиты людей от поражения электрическим током при повреждении изоляции проектом предусмотрена реализация контура заземления.
Резервное электропитание.
Проектом предусмотрен источник резервного электропитания, к которому подключены:
o Система охранно-пожарной сигнализации;
o Телефоны и спутниковое телевидение;
o Домофон;
o Аудио- и видеоаппаратура, телевизоры, домашний кинотеатр;
o Холодильник;
o Канализационные напорные станции (КНС);
o Скважинный насос;
o Въездные и гаражные ворота;
o Газовые котлы и насосное оборудование.
На вводе в здание проектом предусмотрена система уравнивания потенциалов путем объединения следующих проводящих частей: основного магистрального защитного проводника (4-я PEN жила питающего кабеля), основного заземляющего проводника от заземляющего устройства, стальных труб коммуникаций, металлических частей строительных конструкций, вентиляции и кондиционирования.



















