Выполненные проекты
Электрика дома-шале 310 м.кв. в пос. Кратово, проект
Объект: дом из керамических блоков и бревна общей площадью 310 м.кв. в пос. Кратово Раменского района Московской области
Цена (стоимость) проекта электрики (электропроводки): 26 505 руб. со скидкой 10%, проект слаботочных кабельных линий - бесплатно.
Проект электрики выполнен: 02.09.2020
Состав проекта электрики дома в пос. Кратово:
1. Пояснительная записка. Общие данные по электроснабжению и освещению частного дома в пос. Кратово.
2. Однолинейные схемы вводного распределительного устройства и электрического распределительного щита дома 310 м.кв.
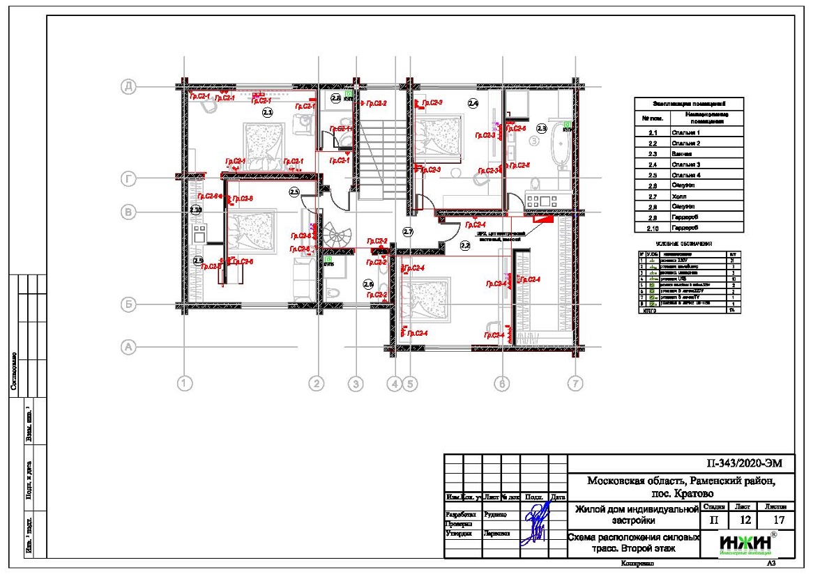
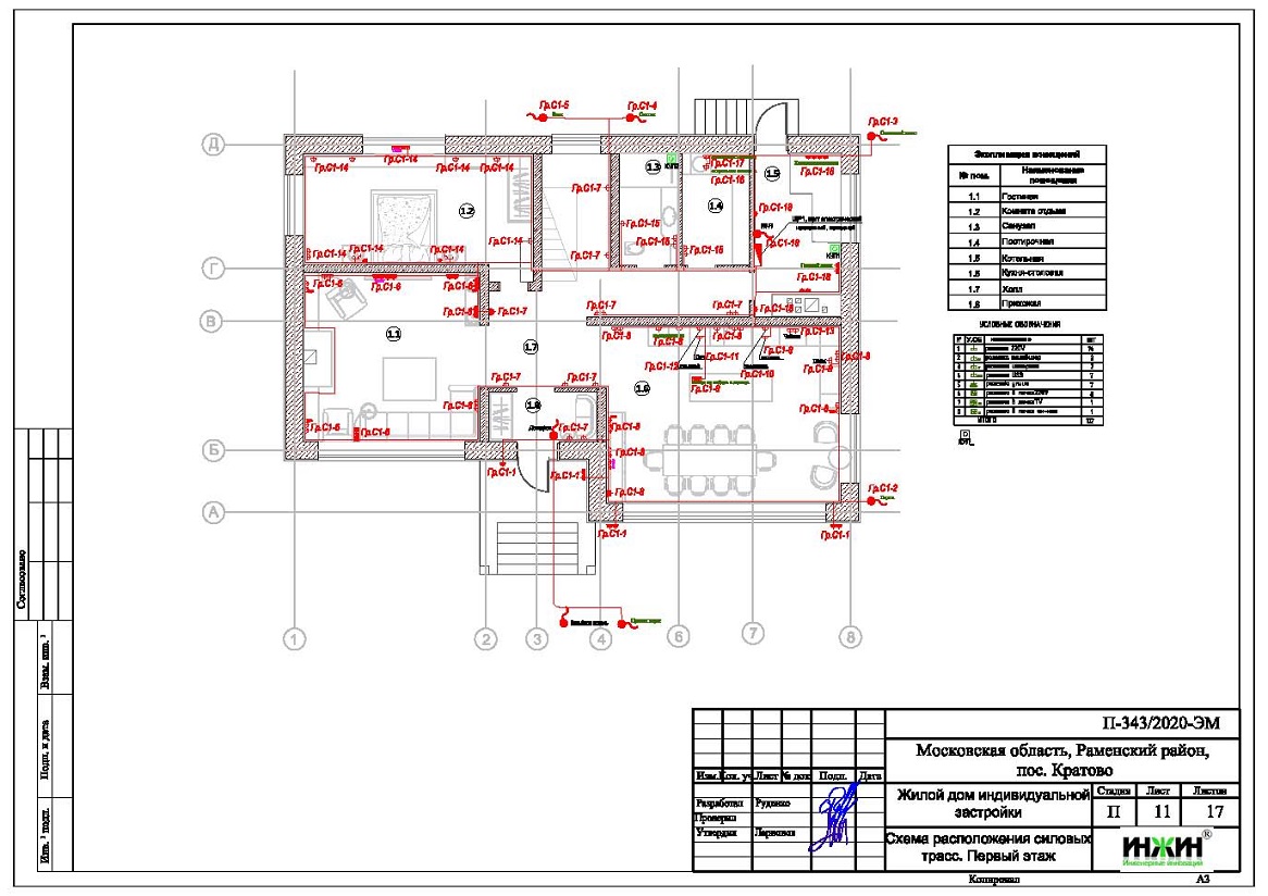
3. Чертежи электропроводки дома в пос. Кратово.
4. Чертежи групповых осветительных сетей дома в пос. Кратово.
5. Спецификация материалов и оборудования по электрике и электропроводке дома в пос. Кратово.
Объем проекта электрики дома-шале 310 м.кв.: 17 листов.
Проект электрики дома-шале площадью 310 м.кв. в пос. Кратово- подробное описание.
Расчетные показатели по электроснабжению и освещению дома в пос. Кратово.
o Расчетная электрическая мощность дома составила 15,71 кВт, с учетом коэффициента спроса 0,5, принятого согласно СП 256.1325800.2016;
o При расчете учтено силовое оборудование: септик, газовый котел, скважинный насос.
Распределительные электрические щиты дома площадью 310 м.кв.
o Проектом предусмотрено два распределительных электрический щита, размещенных по одному на каждом этаже дома;
o Автоматические выключатели, дифференциальные автоматы, рубильники и УЗО в щитах – ABB, в количестве 41 шт. размещены в пристраиваемых корпусах.
Силовая кабельная сеть (электропроводка) дома в пос. Кратово.
o Электропроводка дома и бани предусмотрена с использованием кабелей ВВГ нг -LS с медными жилами в ПВХ-оболочке (не поддерживает горение);
o Общая протяженность линий электроснабжения и освещения – 1616 метров, вводные кабельные линии - бронированные кабели 120 метров;
o Электропроводка предусмотрена скрытым способом, в металлорукаве в виниловой оболочке;
o Запроектировано 263 точки подключения розеток и выключателей освещения в доме;
o Предусмотрены слаботочные линии локальной вычислительной сети и телевидения, общая протяженность - 605 метров, а также видеодомофон с использованием провода КВК-П-2Х0,75 ММ (40 метров).
Предусмотрено резервное электропитание - однофазный бензиновый генератор мощностью 10 кВт (по выбору Заказчика).



















