Выполненные проекты
Проект электрики дома площадью 210 м.кв.
Проект электроснабжения и освещения выполнен: 26.03.2013
Объект: частный дом индивидуальной застройки площадью 210 кв.м. в Московской области
Стоимость проекта электрики: 23 100 руб., проект аварийного и стабилизированного питания бесплатно.
Состав проекта электроснабжения и освещения:
Пояснительная записка. Общие данные по электроснабжению.
Однолинейные схемы вводного распределительного устройства и поэтажных распределительных щитов.
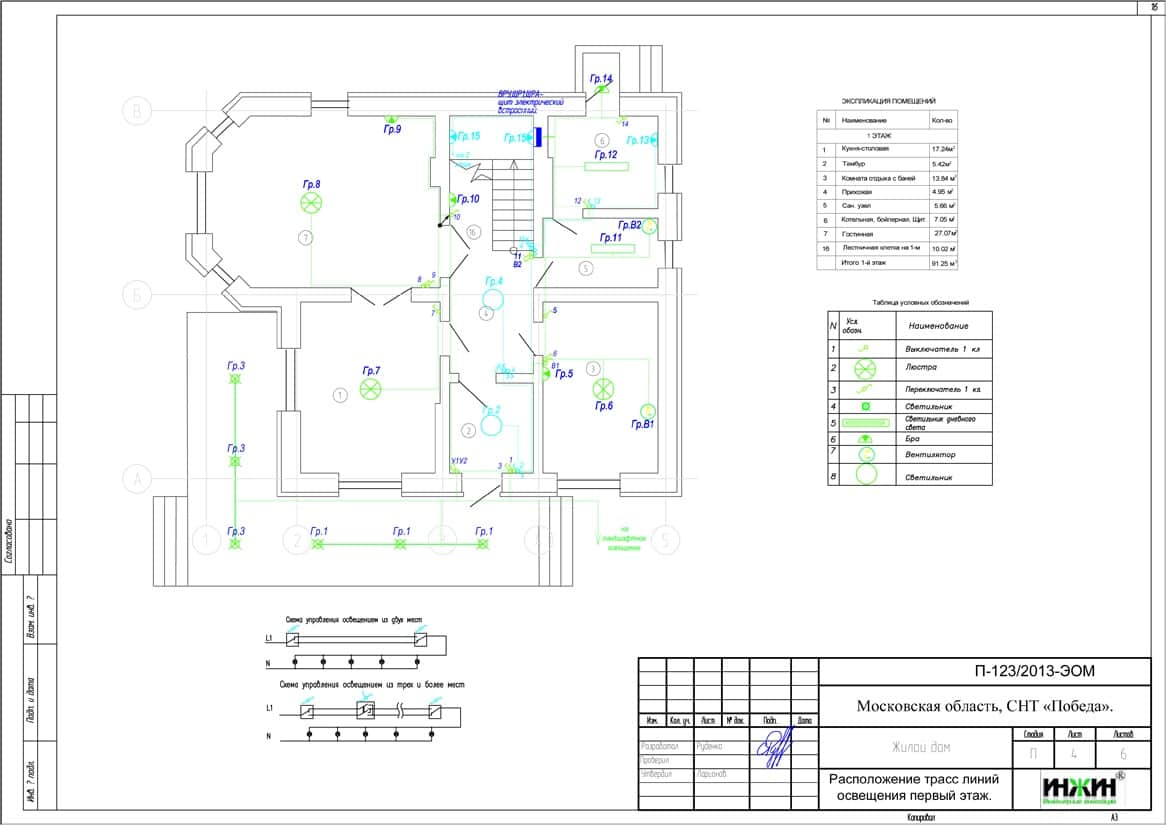
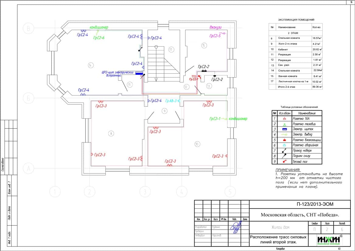
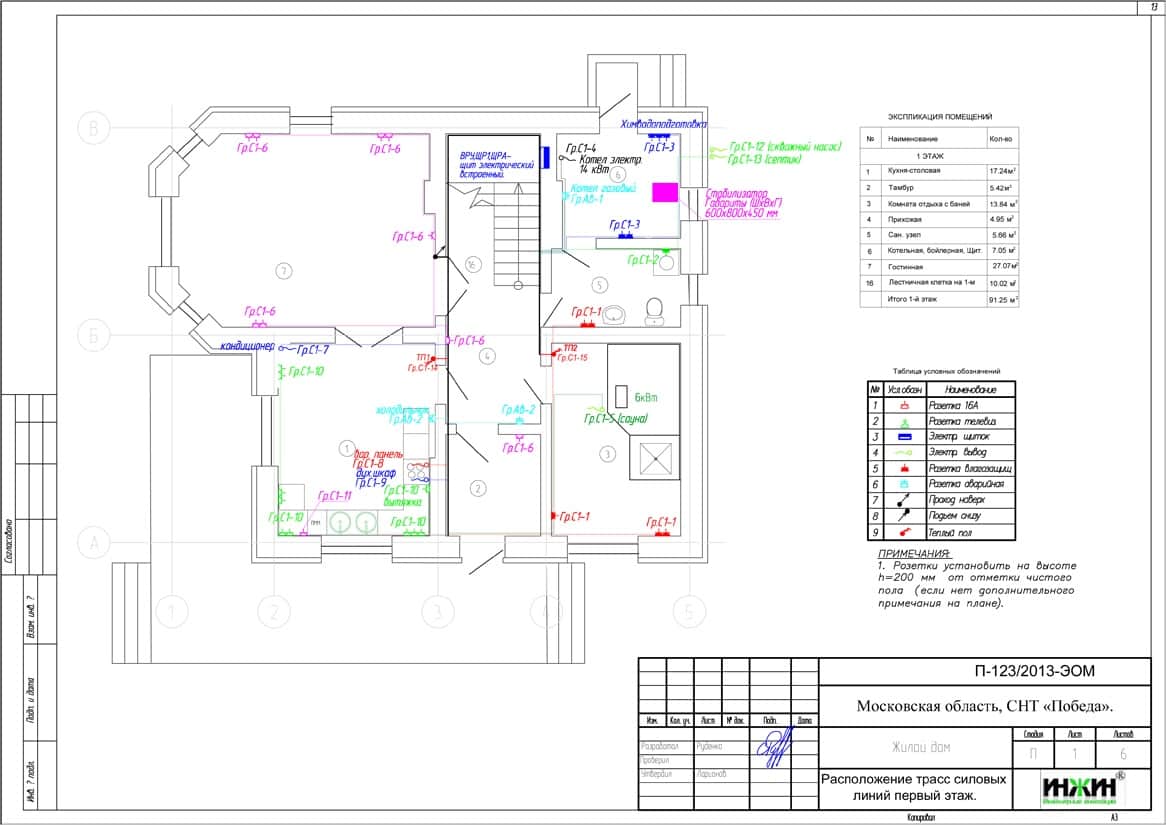
Поэтажные планы силовых электрических сетей.
Поэтажные планы групповых осветительных сетей.
Схема системы уравнивания потенциалов.
Спецификация материалов и оборудования по электрике.
Объем проекта электроснабжения: 22 листа.
Основные технические решения проекта электроснабжения и освещения (электрики), в соответствии с заданием Заказчика.
Электрощиты.
o Проектом предусмотрено 3 щита, оснащенных 53-мя автоматами;
o Автоматические выключатели, дифференциальные автоматы и УЗО в щитах - Hager;
o Предусмотрен щит стабилизированного электропитания с 6-ю автоматами;
o Корпуса щитов - Hager и ABB.
Электропроводка.
o Проектом предусмотрено использование кабелей ВВГ нг -LS (Конкорд) с медными жилами в ПВХ-оболочке;
o Общая протяженность линий электроснабжения и освещения – 2 840 метров;
o Прокладка силовых электрокабелей предусмотрена скрытым способом, в гофротрубе.
На вводе в здание проектом предусмотрена система уравнивания потенциалов путем объединения следующих проводящих частей: основного магистрального защитного проводника (4-я PEN жила питающего кабеля), основного заземляющего проводника от заземляющего устройства, стальных труб коммуникаций, металлических частей строительных конструкций, вентиляции и кондиционирования.



















