Выполненные проекты
Проект отопления загородного дома 210 м.кв.
Объект: частный двухэтажный жилой дом из кирпича площадью 210 кв.м. в Московской области
Вариант отопления: «Базовый»
Стоимость проекта отопления: 31 500 руб. (проект котельной – бесплатно)
Проект отопления, водоснабжения и канализации выполнен: 26.03.2013
Состав проекта отопления двухэтажного дома:
1. Пояснительная записка. Общие данные по отоплению дома из кирпича.
2.Теплотехнический расчет отопления дома из кирпича.
3. Тепломеханическая схема котельной с размещением оборудования.
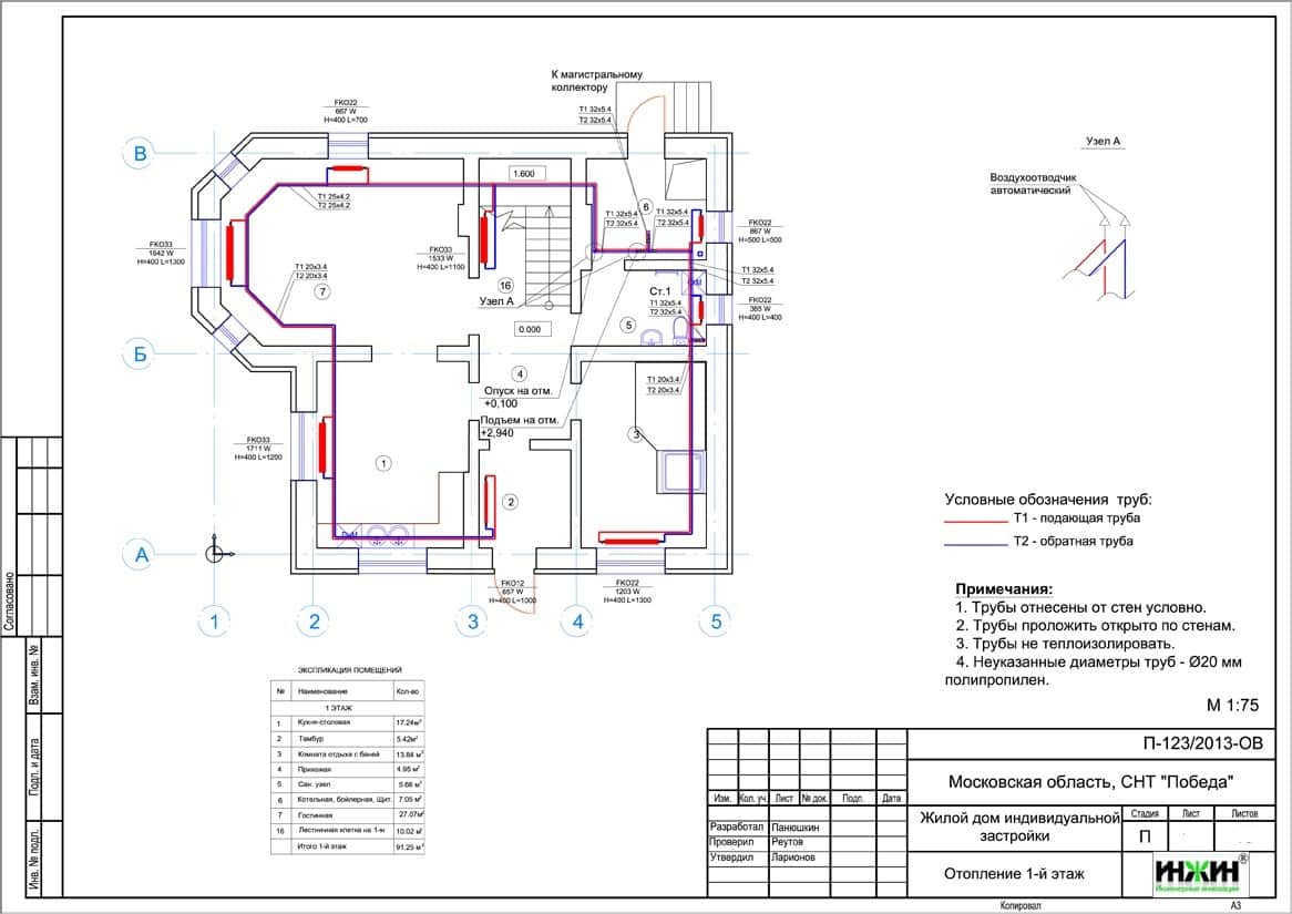
4. Комплект чертежей радиаторного отопления жилого дома.
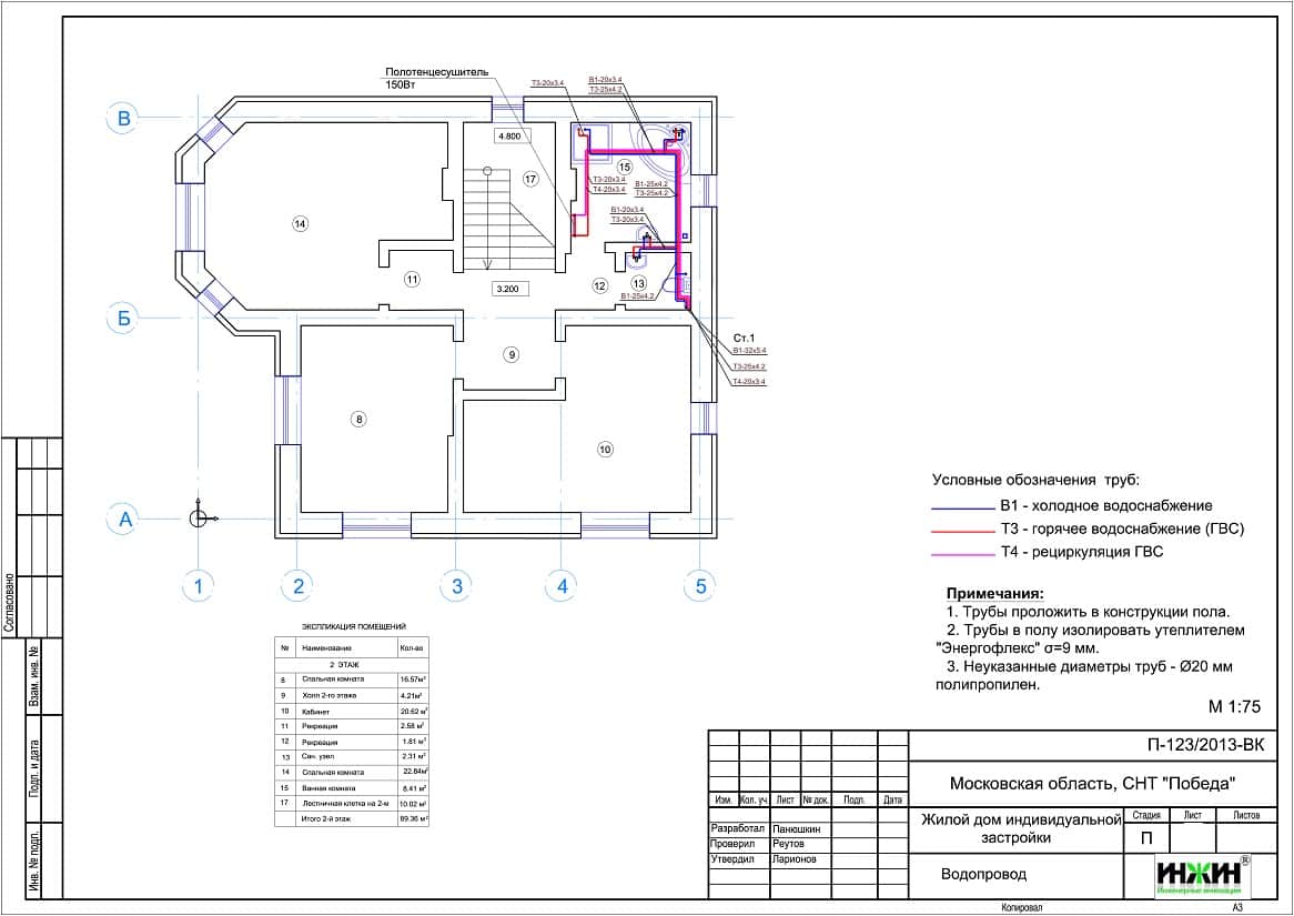
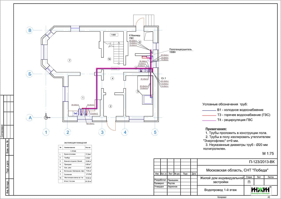
5. Комплект чертежей внутреннего водопровода и канализации жилого дома.
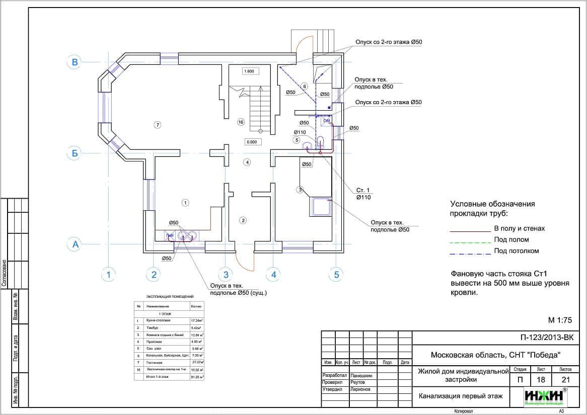
6. Схема системы канализации (аксонометрия).
7. Спецификация материалов и оборудования по системе отопления дома из кирпича.
Объем проекта отопления: 43 листа.
Описание проекта отопления, водоснабжения и канализации двухэтажного дома из кирпича.
Котельная (проект котельной бесплатно).
o Основной котел - настенный электрический Vaillant eloBLOCK VE21 мощностью 21 кВт, резервный - настенный газовый Vaillant turboTEC plus VU мощностью 24 кВт;
o Контуры котельной – отопление дома и горячее водоснабжение;
o Приготовление горячей воды при помощи бойлера Reflex SF150, объемом 150 литров;
o Расширительные баки отопления и водоснабжения Reflex;
o Насосы отопления и водоснабжения Grundfos;
o Трубы дымоходные – выполнены на объекте;
o Распределительная гребенка с насосно-смесительными узлами Meibes;
o Автоматика котельной – основной блок Vaillant calorMATIC 630/3.
Автоматизация котельной.
o Автоматическое регулирование отопления по наружной температуре (погодное регулирование);
o Автоматическое поддержание заданной температуры в контуре отопления и горячего водоснабжения.
Система отопления дома из кирпича.
o Отопление дома радиаторное, использованы панельные радиаторы Kermi с боковой подводкой;
o Схема радиаторного отопления двухтрубная, тройниковая, с принудительной циркуляцией теплоносителя;
o Температурный график отопления 80/60° С;
o Трубопроводы отопления – армированный полипропилен Valtec.
Система теплых полов.
Водяные теплые полы проектом не предусмотрены. В тепловом расчете учтена теплоотдача электрических теплых полов.
Система полотенцесушителей.
Источником теплоснабжения полотенцесушителей принят контур рециркуляции бытовой горячей воды. Модели полотенцесушителей в проекте не указывались, в тепловом расчете учитывались теплоотдача одного полотенцесушителя 150 Вт.
Внутренний водопровод.
o Схема внутреннего водоснабжения – тройниковая;
o Трубопроводы системы водоснабжения – армированный полипропилен Valtec;
o В системе горячего водоснабжения предусмотрена рециркуляция горячей воды.
Внутренняя канализация.
o Предусмотрен безнапорный отвод стоков от санитарно-технических приборов;
o Трубопроводы канализации – полипропилен Синикон (Россия).



















