Выполненные проекты
Проект отопления частного дома 245 м.кв.
Объект: жилой дом индивидуальной застройки площадью 245 кв.м. в г. Щелково Московской области
Вариант отопления: «Базовый»
Цена проекта отопления: 22 500 руб. (проект котельной – бесплатно)
Проект отопления выполнен: 02.04.2013
Состав проекта отопления дома в Щелково:
1. Пояснительная записка. Общие данные по отоплению дома.
2. Теплотехнический расчет отопления.
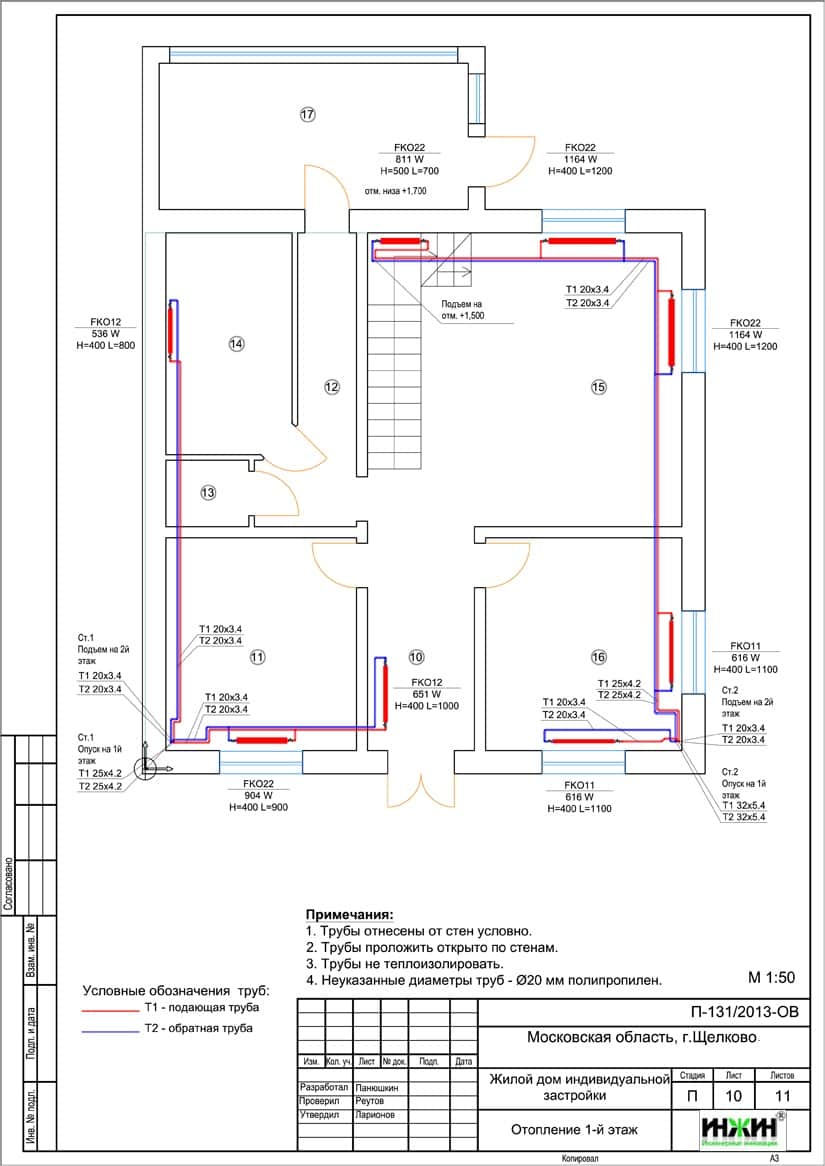
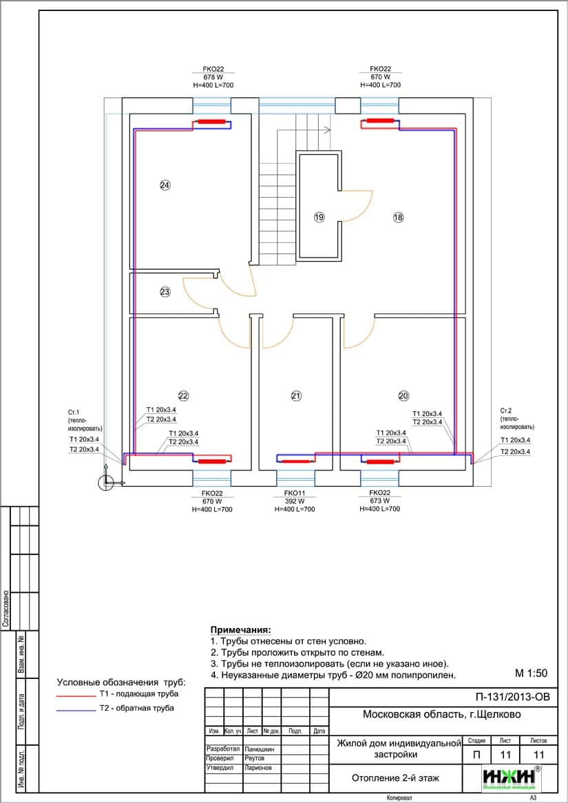
3. Тепломеханическая схема котельной с размещением оборудования.
4. Комплект чертежей радиаторного отопления жилого дома.
5. Спецификация материалов и оборудования по системы отопления.
Объем проекта отопления: 31 лист.
Описание проекта отопления частного дома в Щелково.
Котельная (проект котельной бесплатно).
o На базе настенного газового котла Vaillant turboTEC plus VU мощностью 32 кВт;
o Контуры котельной – отопление дома и горячее водоснабжение;
o Приготовление горячей воды при помощи бойлера Reflex SF150, объемом 150 литров;
o Расширительный бак отопления встроен в котел;
o Насос отопления встроен в котел;
o Трубы дымоходные – коаксиальные «через стену»;
o Распределительная гребенка в котельной не предусмотрена, подключение бойлера и контура отопления непосредственно к котлу;
o Автоматика котельной – встроена в котел.
Система отопления.
o Отопление дома радиаторное, использованы панельные радиаторы Kermi с боковой подводкой;
o Схема радиаторного отопления двухтрубная, тройниковая, с принудительной циркуляцией теплоносителя;
o Температурный график отопления 80/60° С;
o Трубопроводы отопления – армированный полипропилен Valtec. Способ прокладки – открыто по стенам.
Система теплых полов.
Водяные теплые полы проектом не предусмотрены.
Система полотенцесушителей.
Источником теплоснабжения полотенцесушителей принят контур рециркуляции бытовой горячей воды. Модели полотенцесушителей в проекте не указывались, в тепловом расчете учитывались теплоотдача одного полотенцесушителя 150 Вт.
















