Выполненные проекты
Проект электрики деревянного дома площадью 220 м.кв.
Объект: деревянный дом индивидуальной застройки площадью 220 кв.м. в Московской области
Стоимость проекта электрики: 24 200 руб., проект аварийного и стабилизированного питания бесплатно.
Проект электроснабжения и освещения выполнен: 24.06.2013
Состав проекта электрики:
Пояснительная записка. Общие данные по электроснабжению и освещению дома.
Однолинейные схемы вводного распределительного устройства и поэтажных распределительных щитов.
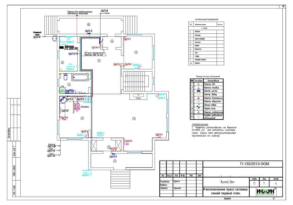
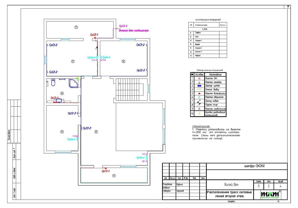
Поэтажные планы силовых электрических сетей.
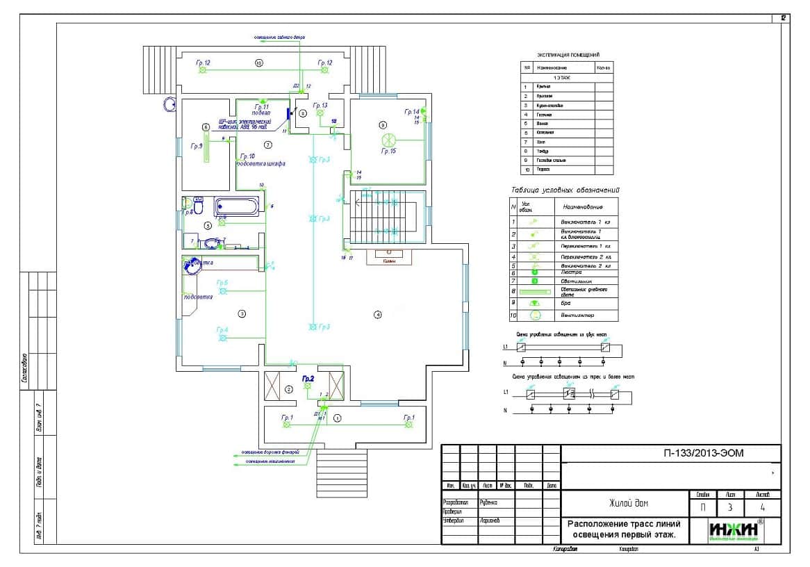
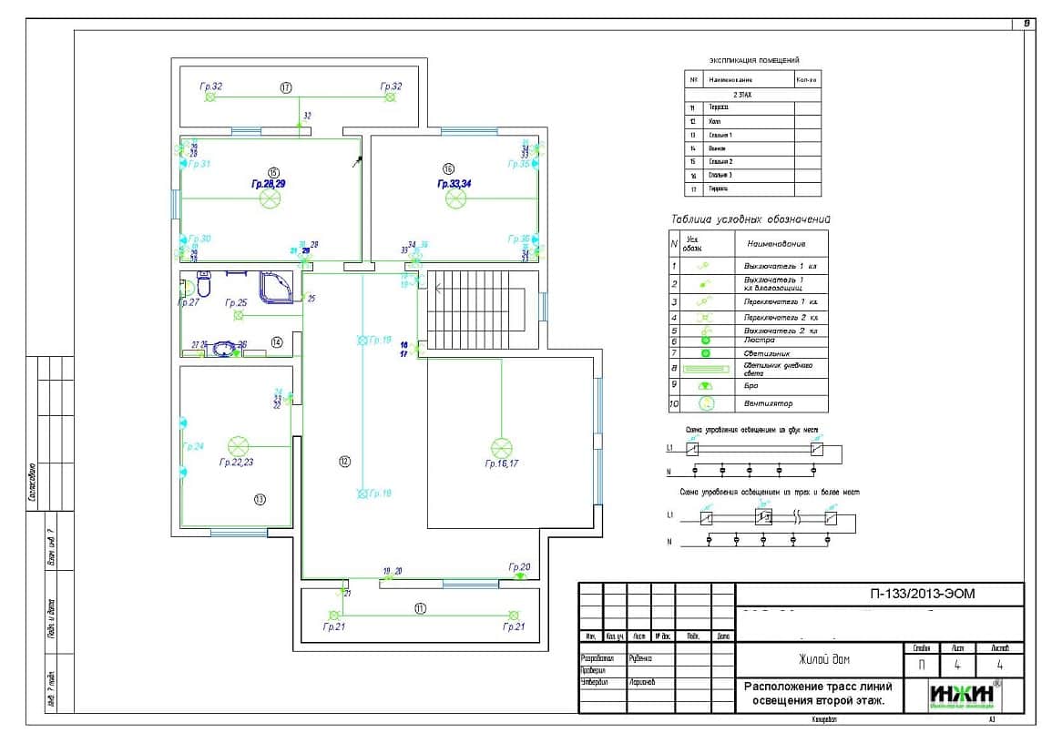
Поэтажные планы групповых осветительных сетей.
Схема системы уравнивания потенциалов.
Спецификация материалов и оборудования по электрике.
Объем проекта электрики: 17 листов.
Проект электрики деревянного дома - описание технических решений.
Электрический распределительный щит.
o Проектом предусмотрено 1 щит, оснащенных 41-м автоматом (включая группы стабилизированного питания);
o Автоматические выключатели, дифференциальные автоматы и УЗО в щитах - Hager;
o Предусмотрен щит стабилизированного электропитания с 6-ю автоматами;
o Корпуса щитов - ABB.
Электропроводка (проект электропроводки).
o Проектом предусмотрено использование кабелей ВВГ нг -LS (Конкорд) с медными жилами в ПВХ-оболочке;
o Общая протяженность линий электроснабжения и освещения – 2 835 метров;
o Прокладка силовых линий предусмотрена скрытым способом, в гофротрубе.
Стабилизированное электропитание.
Проектом предусмотрено стабилизированное электропитание, к которому подключены:
o Спутниковое телевидение;
o Домофон;
o Группы освещения, определенные Заказчиком;
o Холодильник;
o Газовый котел.
Резервное электропитание.
Проектом предусмотрено аварийное электропитание, к которому подключены все потребители стабилизированного электропитания.
На вводе в здание проектом предусмотрена система уравнивания потенциалов путем объединения следующих проводящих частей: основного магистрального защитного проводника (4-я PEN жила питающего кабеля), основного заземляющего проводника от заземляющего устройства, стальных труб коммуникаций, металлических частей строительных конструкций, вентиляции и кондиционирования.



















