Выполненные проекты
Проект электрики дома площадью дома 160 м.кв.
Объект: деревянный дом площадью 160 кв.м. в КП "Святогор" Серпуховского района Московской области
Стоимость проекта электрики: 17 600 руб.
Проект электроснабжения и освещения: выполнен 30.05.2013
Состав проекта электрики деревянного дома в КП "Святогор":
Пояснительная записка. Общие данные по электроснабжению и освещению.
Однолинейные схемы вводного распределительного устройства и поэтажных распределительных щитов.
Поэтажные планы силовых электрических сетей (электропроводка).
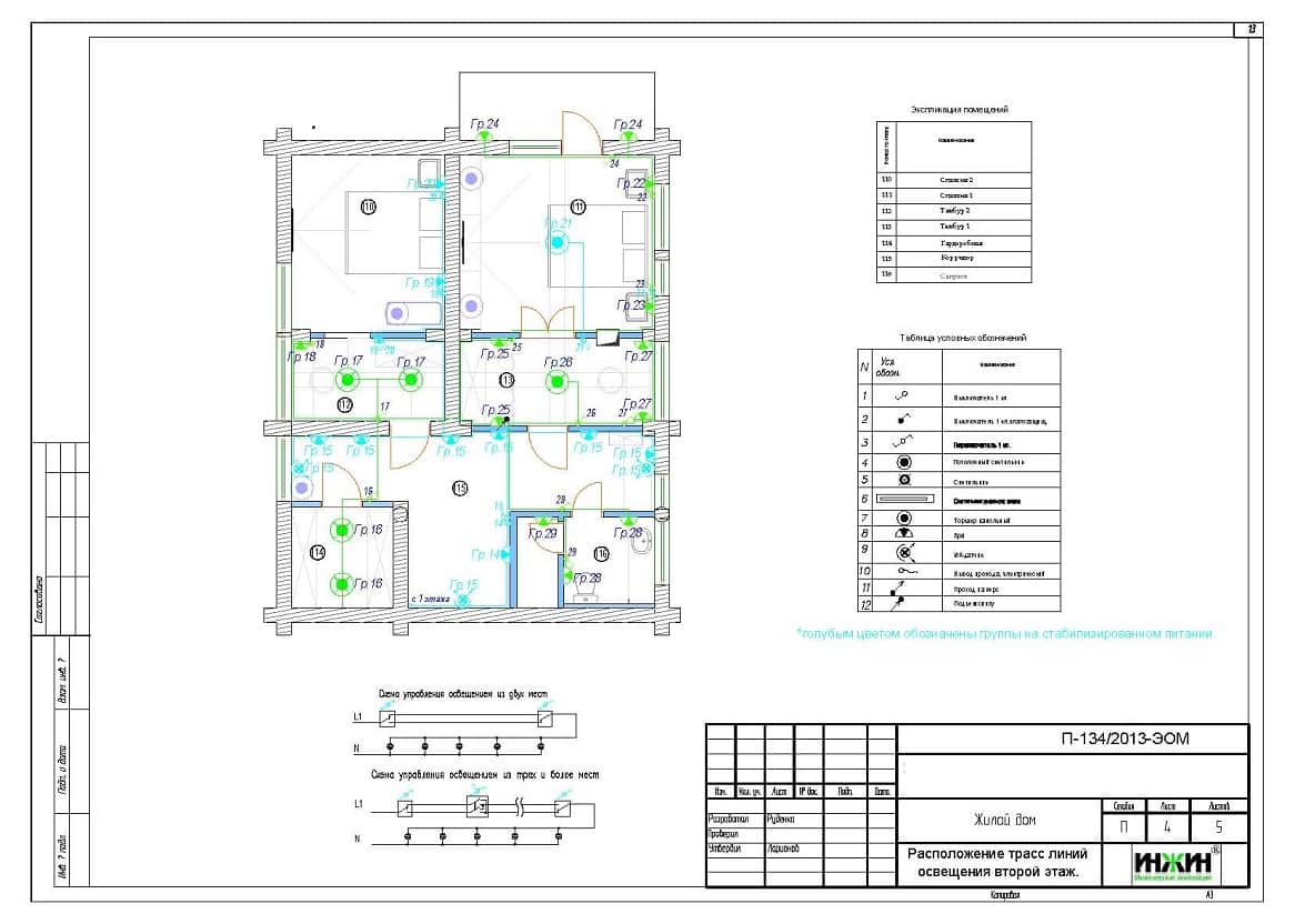
Поэтажные планы групповых осветительных сетей (система освещения).
Схема системы уравнивания потенциалов.
Спецификация материалов и оборудования по электрике дома из бревна.
Объем проекта электрики: 16 листов.
Описание технических решений проекта электрики деревянного дома в КП "Святогор".
Электрические распределительные щиты.
o Проектом предусмотрено 2 щита, оснащенных 30-ю автоматами;
o Автоматические выключатели, дифференциальные автоматы и УЗО в щитах - Hager;
o Предусмотрен щит стабилизированного электропитания с 9-ю автоматами;
o Корпуса щитов - Hager и ABB.
Электропроводка (проект электрических кабельных сетей).
o Проектом предусмотрено использование кабелей ВВГ нг -LS (Конкорд) с медными жилами в ПВХ-оболочке;
o Общая протяженность линий электроснабжения и освещения – 2 950 метров;
o Прокладка силовых линий предусмотрена скрытым способом, в пластиковой гофротрубе.
Заземление.
Для защиты людей от поражения электрическим током при повреждении изоляции проектом предусмотрена реализация контура заземления.
Стабилизированное электропитание.
Проектом предусмотрено стабилизированное электропитание, к которому подключены:
o Телефон и спутниковый ресивер;
o Телевизоры;
o Домофон;
o Группы света;
o Холодильник;
o Газовый котел.
По этому проекту выполнен монтаж системы электроснабжения и освещения.
Для этого дома выполнен проект отопления.
В этом доме выполнен монтаж отопления, водоснабжения и канализации. 


















