Выполненные проекты
Проект электрики дома в Нижнем Новгороде
Объект: двухэтажный дом из газобетона, площадью 155 м.кв., расположенный в г. Нижний Новгород
Цена (стоимость) проекта электрики (электропроводки): 18 554 руб. со скидкой 10%, проект слаботочных кабельных линий - бесплатно.
Проект электрики выполнен: 08.08.2022
Состав проекта электрики дома в Нижнем Новгороде:
1. Пояснительная записка. Общие данные по электроснабжению и освещению частного дома в Нижнем Новгороде.
2. Однолинейные схемы вводного распределительного устройства и электрического распределительного щита дома 155 м.кв.
3. Чертежи электропроводки дома в Нижнем Новгороде.
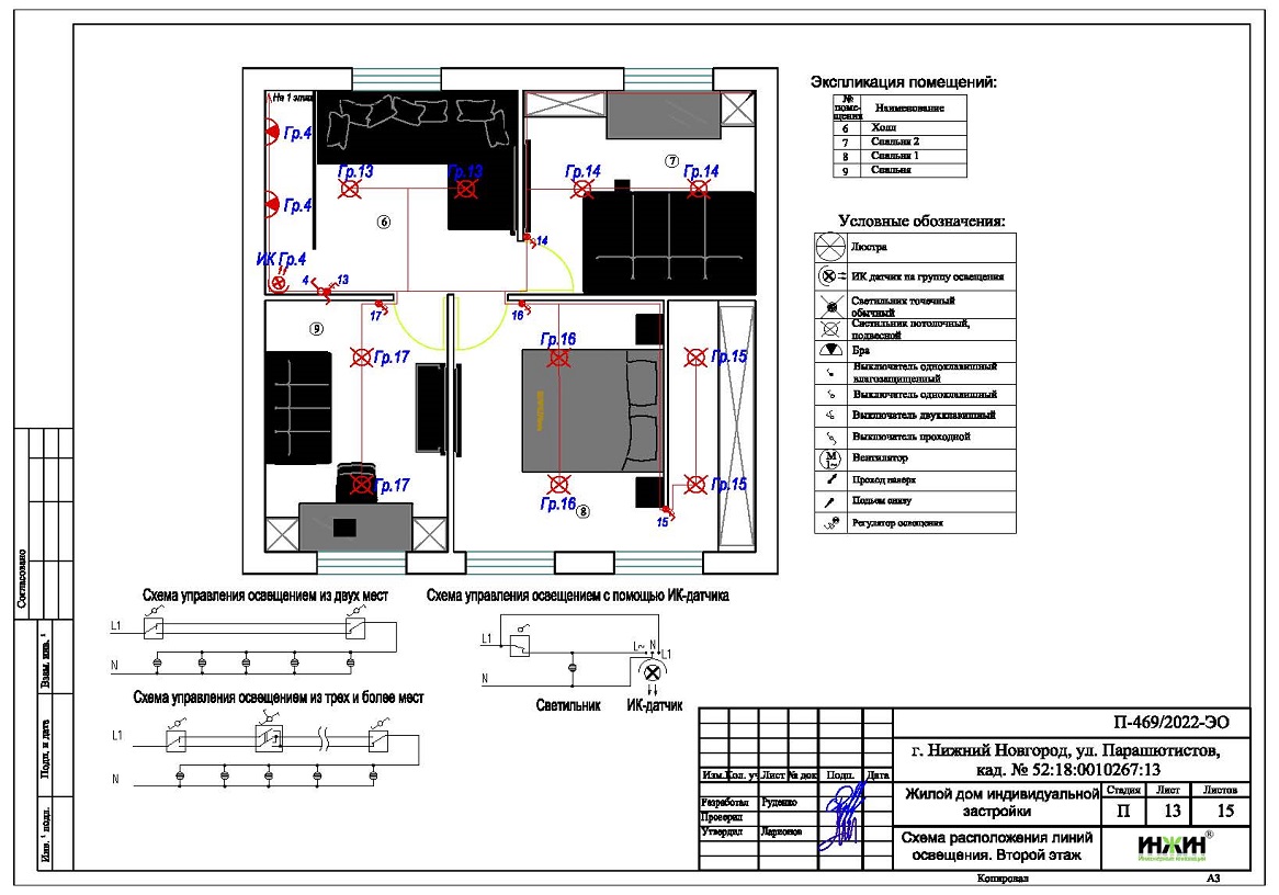
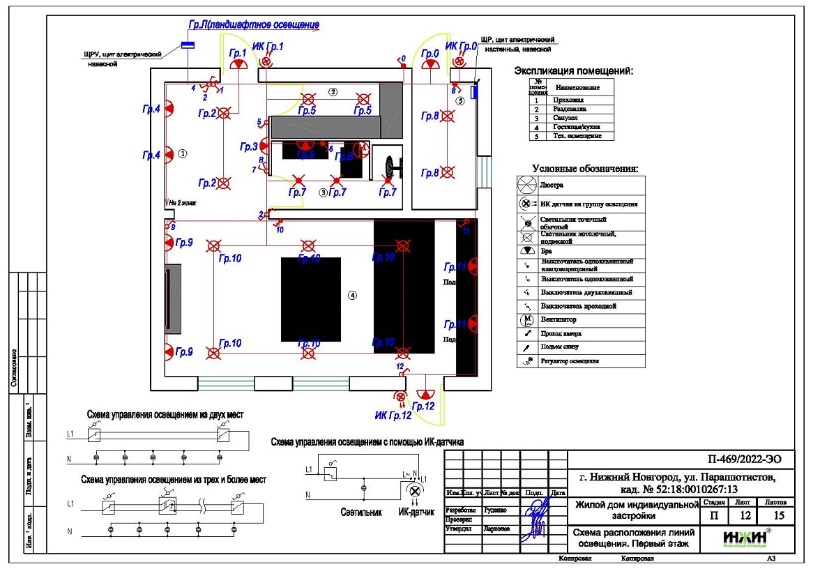
4. Чертежи групповых осветительных сетей дома в Нижнем Новгороде.
5. Спецификация материалов и оборудования по электрике и электропроводке дома в Нижнем Новгороде.
Объем проекта электрики дома 155 м.кв.: 15 листов.
Проект электрики дома площадью 150 м.кв. в Нижнем Новгороде- подробное описание.
Расчетные показатели по электроснабжению и освещению дома в Нижнем Новгороде.
o Расчетная электрическая мощность дома составила 18,06 кВт, с учетом коэффициента спроса 0,65, принятого согласно СП 256.1325800.2016;
o При расчете учтено силовое оборудование: кондиционеры, газовый котел, водоочистка, скважинный насос, вентиляционная установка.
Распределительные электрические щиты дома площадью 155 м.кв.
o Проектом предусмотрен распределительный электрический щит, размещенный в техническом помещении;
o Автоматические выключатели, дифференциальные автоматы, рубильники и УЗО в щите – ABB, в количестве 38 шт. размещены во встраиваемом корпусе.
Силовая кабельная сеть (электропроводка) дома в Нижнем Новгороде.
o Электропроводка дома предусмотрена с использованием кабелей ВВГнг с медными жилами в ПВХ-оболочке (не поддерживает горение);
o Общая протяженность линий электроснабжения и освещения – 990 метров, вводные кабельные линии - бронированные кабели (ВБбШв) 145 метров;
o Электропроводка предусмотрена скрытым способом, в гофрированной ПВХ-трубе;
o Запроектировано 97 точек подключения розеток и выключателей освещения в доме;
o Предусмотрены слаботочные линии локальной вычислительной сети протяженностью 110 метров.



















