Выполненные проекты
Проект электрики дома из бруса площадью 247 м.кв.
Объект: частный дом площадью 247 кв.м. в Московской области.
Стоимость проекта электрики: 27 170 руб., проект резервного и стабилизированного питания бесплатно.
Проект электроснабжения и освещения выполнен: 27.09.2013
Состав проекта электрики:
Пояснительная записка. Общие данные по системе электроснабжения частного дома.
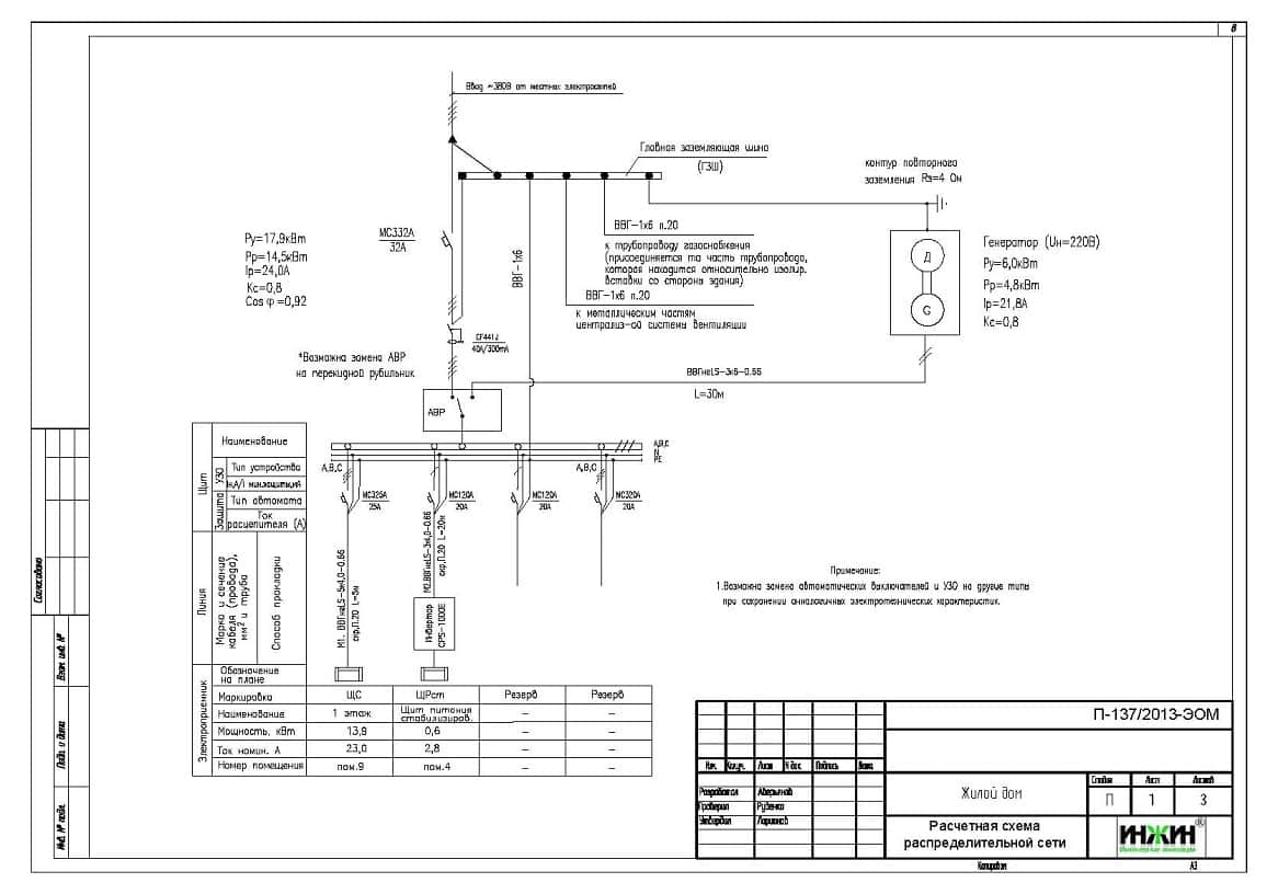
Однолинейные схемы вводного распределительного устройства и поэтажных распределительных щитов.
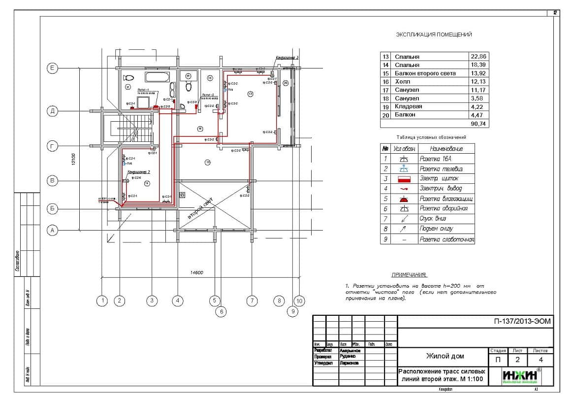
Поэтажные планы силовых электрических сетей.
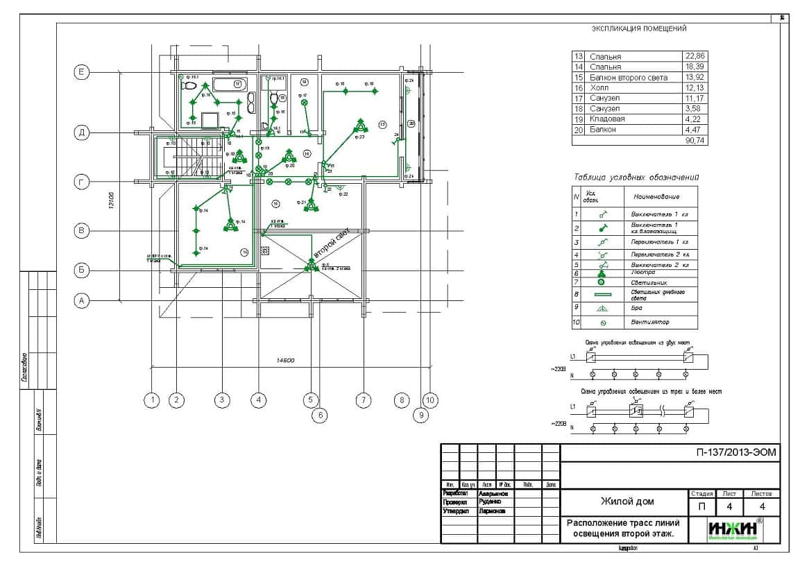
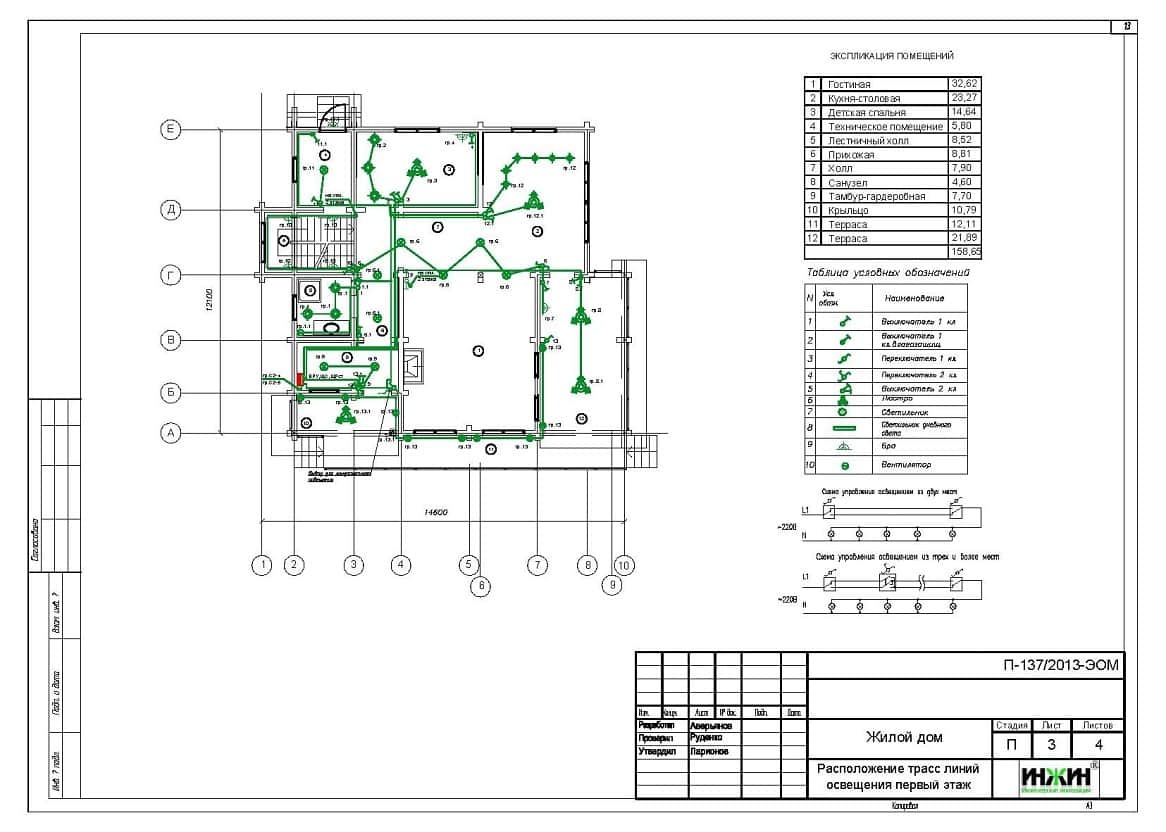
Поэтажные планы групповых осветительных сетей.
Схема системы уравнивания потенциалов.
Спецификация материалов и оборудования по системам электроснабжения и освещения.
Объем проекта электрики: 16 листов.
Основные технические решения проекта электроснабжения и освещения (электрики), в соответствии с заданием Заказчика.
Электрощит.
o Проектом предусмотрен 1 щит, оснащенный 31-им автоматом (включая группы стабилизированного питания);
o Автоматические выключатели, дифференциальные автоматы и УЗО в щитах - Hager;
o Предусмотрена группа стабилизированного электропитания с 5-ю автоматами;
o Корпус щита - Hager.
Электропроводка (кабельная сеть).
o Проектом предусмотрено использование кабелей ВВГ нг -LS (Конкорд) с медными жилами в ПВХ-оболочке;
o Общая протяженность линий электроснабжения и освещения – 2 530 метров;
o Прокладка силовых линий предусмотрена скрытым способом, в ПВХ-гофротрубе.
Стабилизированное электропитание.
Проектом предусмотрено стабилизированное электропитание, к которому подключено оборудование котельной.
Резервное электропитание.
Проектом предусмотрено резервное электропитание (бензогенератор), к которому подключены группы дежурного освещения и розеток.
На вводе в здание проектом предусмотрена система уравнивания потенциалов, а также контур повторного заземления.
По этому проекту выполнен монтаж системы электроснабжения и освещения (электрики).
Для этого дома выполнен проект отопления, водоснабжения и канализации.
Заказать проект электрики деревянного дома в нашей компанииЗаказать проект электрики деревянного дома в нашей компании.


















