Выполненные проекты
Проект отопления деревянного дома 247 м.кв.
Объект: загородный дом из дерева (брус) площадью 247 кв.м. в пос. Пестовское Московской области
Вариант отопления: «Комфортный»
Проект отопления, водоснабжения и канализации выполнен: 19.09.2013
Цена проекта отопления, водоснабжения и канализации: 39 050 руб. (проект котельной – бесплатно)
Состав проекта отопления, водоснабжения и канализации.
Пояснительная записка. Общие данные по системам отопления, водоснабжения и канализации.
Теплотехнический расчет отопления.
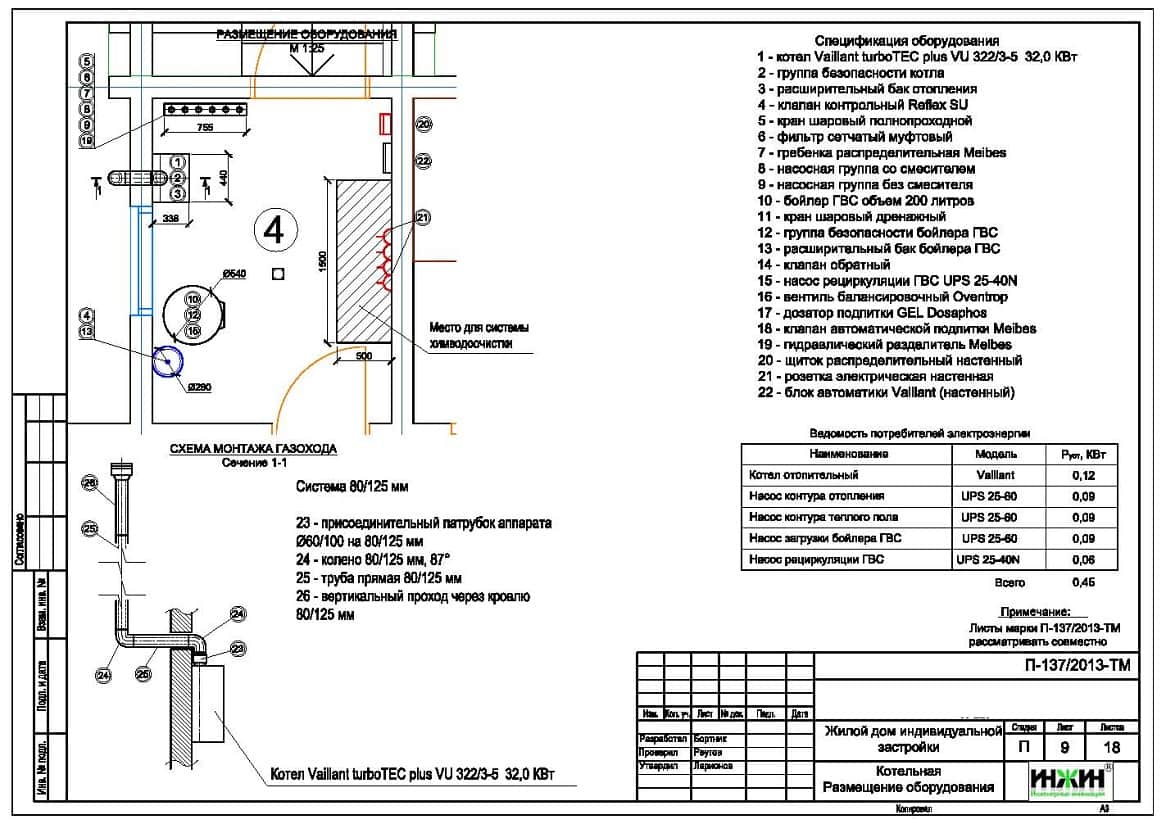
Тепломеханическая схема котельной с размещением оборудования.
Комплект чертежей радиаторного отопления жилого дома.
Комплект чертежей водяного теплого пола.
Комплект чертежей внутреннего водопровода и канализации жилого дома.
Схема системы канализации (аксонометрия).
Спецификация материалов и оборудования по системам отопления, водоснабжения и канализации.
Объем проекта отопления, водоснабжения и канализации: 37 листов.
Основные проектные решения, в соответствие с заданием Заказчика.
Котельная (проект котельной бесплатно).
На базе настенного газового котла Vaillant turboTEC plus VU INT мощностью 32 кВт с закрытой камерой сгорания;
Контуры котельной – отопление дома, водяной теплый пол и горячее водоснабжение (бойлер);
Приготовление горячей воды при помощи бойлера Reflex SF200, объемом 200 литров;
Расширительные баки отопления и водоснабжения Reflex;
Насосное оборудование для отопления, теплого пола и рециркуляции горячей воды Grundfos;
Трубы дымоходные Vaillant, пластиковые, коаксиальные, в исполнении «через стену»;
Распределительная гребенка с насосно-смесительными узлами Meibes;
Автоматика котельной – основной блок Vaillant calorMATIC 630/3, задатчик-регулятор температуры в помещении Vaillant VR 90/3.
Автоматизация (вариант «Комфортный»).
Автоматическое регулирование отопления по наружной температуре (погодное регулирование) и температуре в помещении;
Автоматическое поддержание заданной температуры в контурах отопления, теплого пола и горячего водоснабжения.
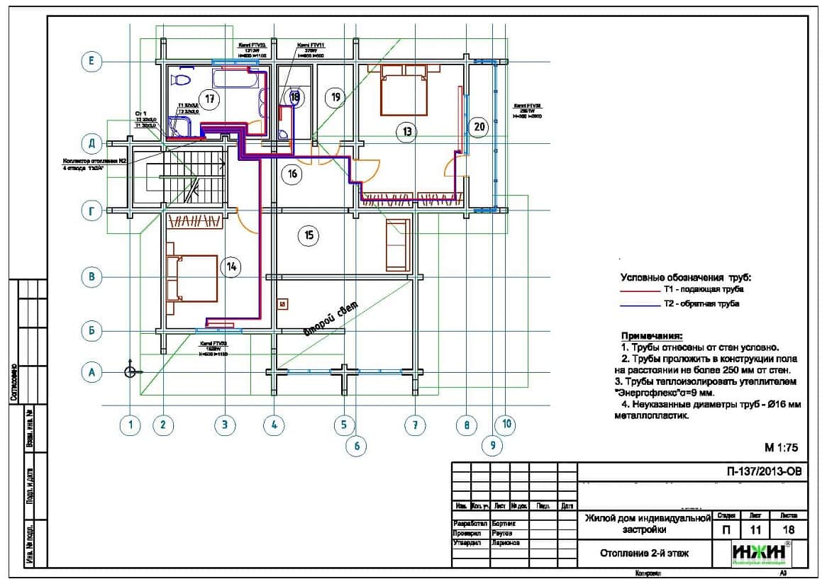
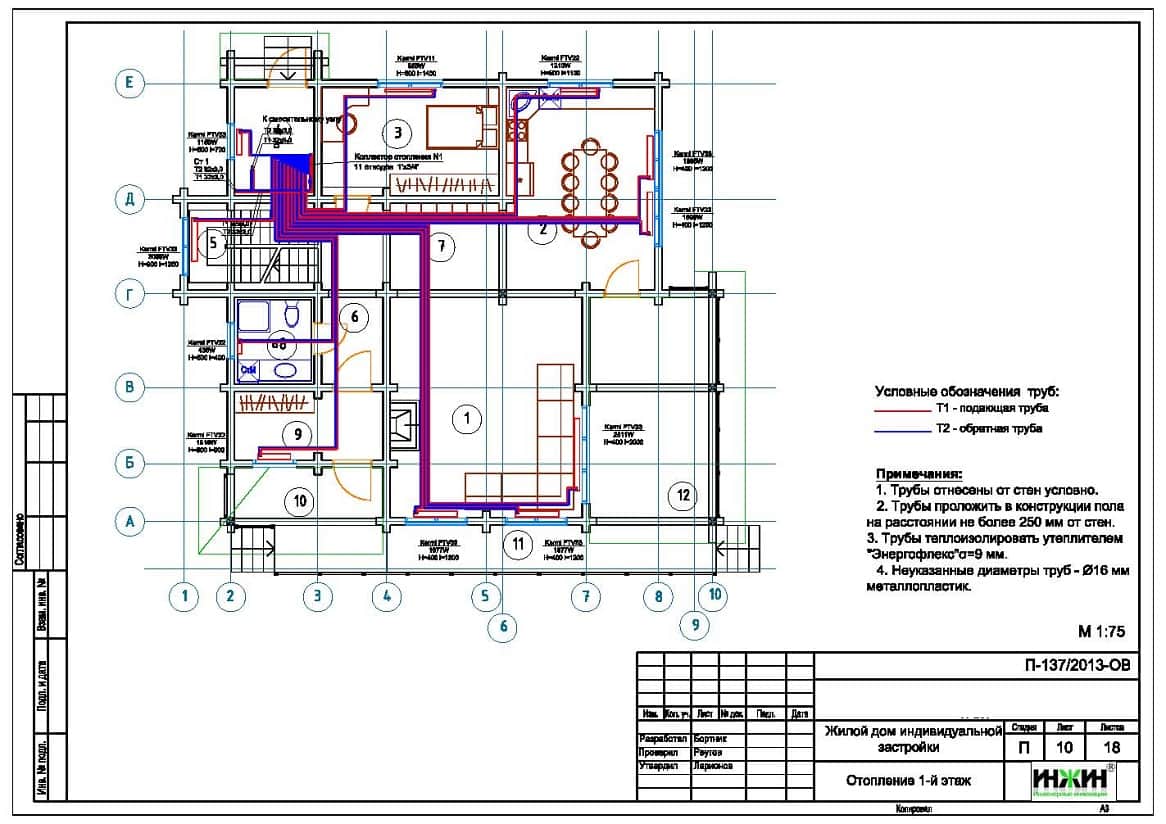
Система отопления (проект радиаторного отопления).
Отопление дома радиаторное, использованы панельные радиаторы Kermi с нижней подводкой;
Схема радиаторного отопления двухтрубная, коллекторно-лучевая, с принудительной циркуляцией теплоносителя;
Температурный график отопления 80/60°С;
Трубопроводы отопления – металлопластик Valtec.
Водяной теплый пол (проект теплого пола).
Водяной теплый пол спроектирован на площади 100 м.кв.
Теплоснабжение теплого пола запроектировано отдельным контуром котельной.
Трубопроводы теплого пола - металлопластик Valtec.
Основание теплого пола – маты из ламинированного пенополистирола «Формат FT40/20L».
Регулирование температуры теплого пола – общее, контуром котельной.
Система полотенцесушителей.
Источником теплоснабжения полотенцесушителей принят контур рециркуляции бытовой горячей воды. Модели полотенцесушителей в проекте не указывались, в тепловом расчете учитывалась теплоотдача 150 Вт от каждого полотенцесушителя.
Внутренний водопровод.
Схема внутреннего водоснабжения – тройниковая;
Трубопроводы системы водоснабжения – полипропилен армированный Valtec PP-ALUX;
В системе горячего водоснабжения предусмотрена рециркуляция горячей воды.
Внутренняя канализация.
Предусмотрен безнапорный отвод стоков от санитарно-технических приборов;
Трубопроводы канализации – полипропилен Синикон (Россия).
По этому проекту выполнен монтаж отопления, водоснабжения и канализации.
Для этого дома выполнен проект электрики.
Заказать проект отопления для деревянного дома.



















